
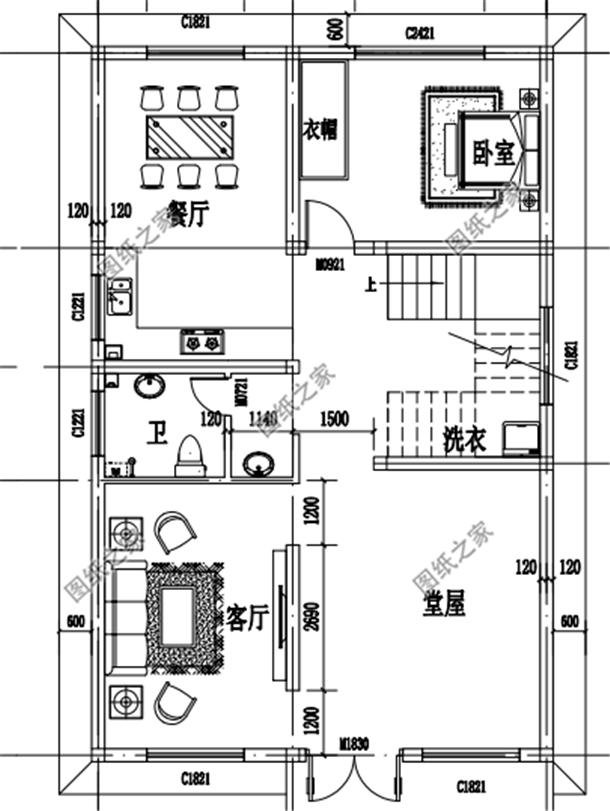
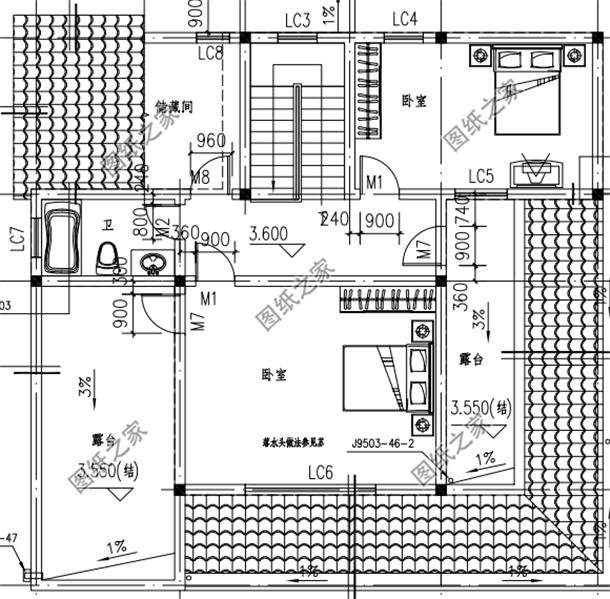
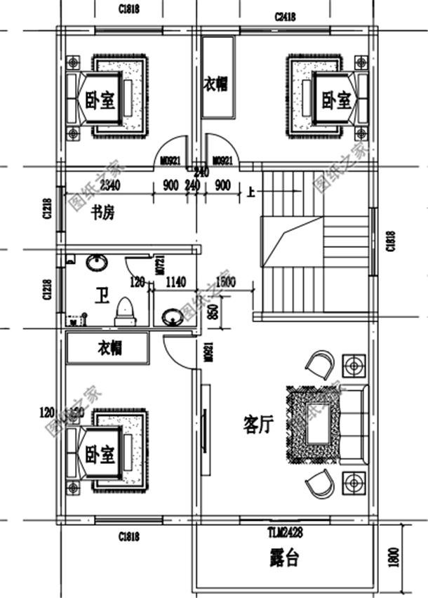
戶型一:160平米就是一層半別墅施工圖紙圖紙介紹:本戶型為歐式一層半(二層)別墅設計圖,帶露臺,外觀時尚,紅墻藍頂很適合農村自建,戶型布局合理、功能齊全。 ![]() 占地面積:13.14m*12.84m,160平方米左右; 建筑層高:一層半(二層); 建筑高度:9.32米(含屋頂); 設計功能: 一層房屋戶型:客廳、廚房、餐廳、儲藏間、衛生間、臥室x3(其中右側2個臥室帶衣帽間); 二層房屋戶型:臥室x2、儲藏間、衛生間、大露臺、小露臺; ![]() ![]() 戶型二:洋氣農村二層小樓別墅設計圖圖紙介紹:高端洋氣二層小樓房別墅設計圖,帶車庫設計方案,一層設有車庫,一進門就是客廳,增加室內空間立體感。二樓有大露臺設計,延伸空間,同時能夠晾曬東西,也可以賞景、度過休閑的時間。 ![]() 占地面積:16.6m*13.5m,193平方米左右; 建筑層高:二層; 建筑高度:9.4米(含屋頂); 設計功能: 一層戶型:客廳、廚房、餐廳、柴火灶、臥室(帶衛生間)、臥室x2、洗衣間、衛生間、車庫; 二層戶型:客廳上空、客廳、健身房、書房、臥室(帶衛生間)、衣帽間、臥室、衛生間、露臺; ![]() ![]() 戶型三:占地100平米三層自建房屋設計圖圖紙介紹:占地100平米三層自建房屋自建別墅設計圖,布局合理,功能齊全。色彩搭配極佳,尤其是紅色的屋頂搭配,朝氣蓬勃。大大的露臺能讓業主更好的感受大自然和煦的陽光。 ![]() 占地面積:8.3m×13m,一層占地110平方米左右; 建筑層高:三層; 建筑高度:12.6米(含屋頂); 設計功能: 一 層:客廳、廚房、餐廳、臥室、衛生間、堂屋、洗衣房; 二 層:客廳、、臥室x3、書房、衛生間、陽臺; 三 層:臥室x3、書房、衛生間、大露臺; ![]() ![]() ![]() 以上就是三套2020農村新款中式別墅圖,能夠有一棟自己的房子,生活在農村,那簡直就是人 間仙境啊。
圖紙之家-專注農村別墅/自建房設計18年,集合國內200余位經驗豐富的設計師,被評為口碑最好的農村建筑設計公司! |

二開間小戶型設計三層農村自建房方案,經濟型適合小宅基地建房
占地:107.02平方米
鄉村三層別墅施工圖紙帶效果圖,田園別墅設計圖紙推薦
占地:178平方米
帶堂屋設計一層5間平房新農村自建別墅效果圖全套施工圖
占地:198.41平方米
260平方米仿歐式二層別墅設計圖紙及效果圖,22X12米
占地:260平方米
農村兩層新中式別墅圖紙設計圖,外觀圖片大氣,21萬左右
占地:108平方米
13.5米乘11米兩層半別墅設計圖,中式與現代相融合
占地:148.5平方米
120平方米農村經典二層房屋設計圖紙,造型精致好看
占地:121平方米
小型農村二層自建樓房設計圖,面寬10米小占地經濟
占地:78.54平方米
2026新款四層樓房設計圖,占地120平方米左右,客廳中空
占地:120平方米
230平方米新農村二層自建別墅設計圖紙帶外觀圖,20X11米
占地:227平方米
私人二層中式四合院別墅建筑設計圖,新農村經濟實用戶型
占地:145平方米
面寬13米帶堂屋三層農村別墅圖,新中式大氣風格
占地:151.58平方米
30萬以下的經典二層新農村別墅設計圖紙及效果圖,簡單大氣
占地:170平方米
120平方房子設計圖,農村120平建房設計圖推薦
占地:122平方米
農村三層樓房設計圖紙及效果圖,經典自建圖紙
占地:201平方米
新中式別墅一層自建房設計,戶型實用緊湊
占地:170.54平方米
精致時尚一層雙拼別墅設計圖,造價實惠,起居互不打擾
占地:369.54平方米
農村一層養老別墅設計圖,14.8x17.9米,戶型對稱,實用布局
占地:193平方米
五十萬二層半鄉村別墅,客廳挑空設計,占地200平米左右
占地:200平方米
全網都在抄的二層別墅!爆款12米面寬設計戶型太實用
占地:139.51平方米
推薦:10套新農村自建房設計圖,2026年最新設計
閱讀次數:4825737次
100套鄉村別墅圖片大全,2026年最新設計
閱讀次數:2492203次
6款農村蓋一層平房的設計圖,10萬元就能建起來
閱讀次數:1852637次
這11個一層農村自建房別墅火爆了朋友圈!我最喜歡戶型十!你呢
閱讀次數:750268次
農村6萬元建一層小別墅圖,你敢相信嗎
閱讀次數:567686次
農村5萬塊就能自建房,6套普通房子設計圖分享,你沒看錯!
閱讀次數:419410次
8套農村漂亮三間平房圖片,非常適合在農村修建!
閱讀次數:411197次
農村自建房化糞池怎么做?附方案及施工過程
閱讀次數:391783次
農村一層三間平房設計圖,告別土氣養老房,讓人忍不住點贊
閱讀次數:350581次
新農村二層樓房圖片造價12萬,挑一套回家建房吧!
閱讀次數:349126次
