
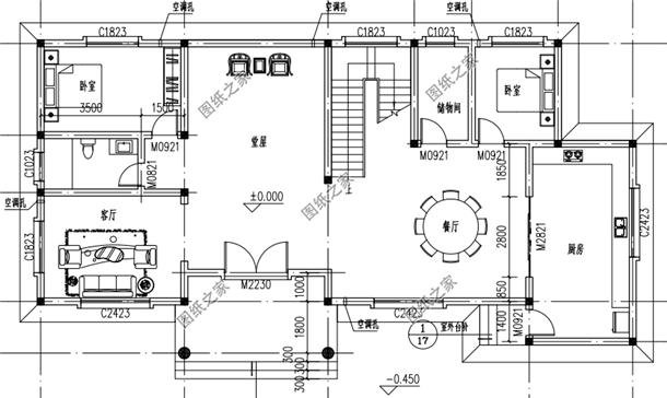
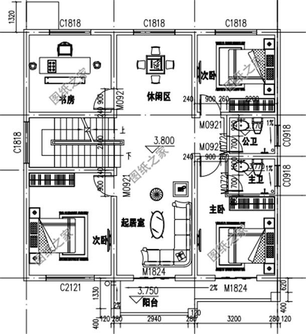
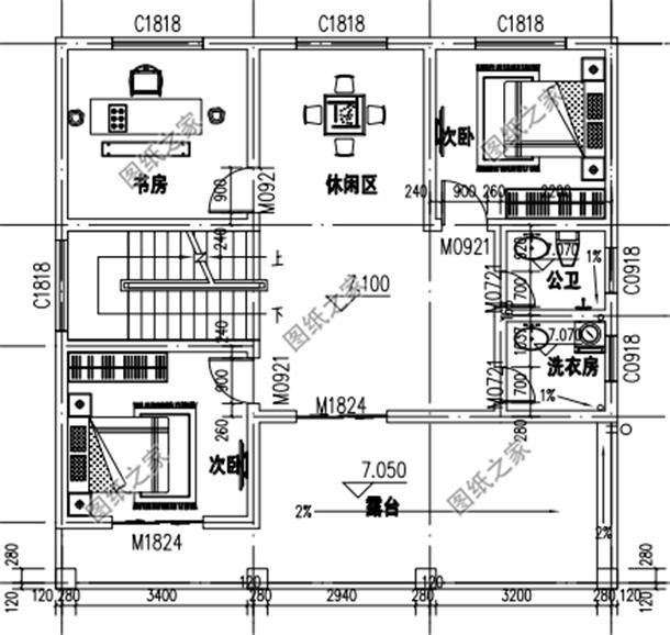
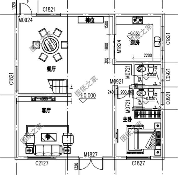
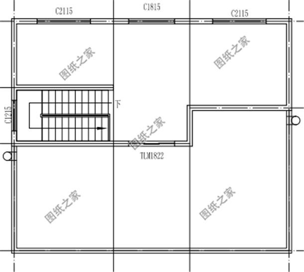
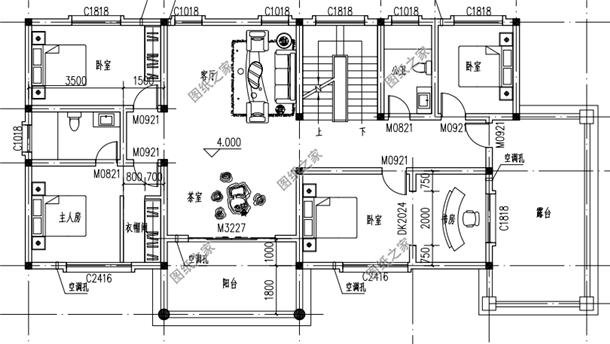
農村別墅戶型圖一:農村三層樓房設計圖,帶露臺圖紙介紹:農村三層樓房設計圖,帶露臺,占地190平方米。別墅整體造型,采用了簡歐式傳統建筑的設計,給人視覺上營造和諧的美感,集古典韻味與現代生活習慣于一體,帶來極高的生活享受。 ![]() 占地面積:20.6m*12.6m,一層占地190平方米左右; 建筑層高:三層; 建筑高度:13.35米(含屋頂); 設計功能: 一 層:堂屋、客廳、廚房、餐廳、臥室、儲藏室、臥室、衛生間; 二 層:客廳、茶室、臥室(帶書房)、臥室(帶衛生間)、臥室、衛生間、露臺、陽臺; 三 層:臥室x2、衛生間、大露臺; ![]() ![]() ![]() 農村別墅戶型圖二:120平米三層別墅自建房屋設計圖圖紙介紹:120平方米新農村三層別墅房屋設計圖,這款簡歐式風格農村別墅,配色明亮簡潔,造型優美。低調沉穩的風格是農村建房朋友所青睞的,素雅清新,淺黃色的的真石漆幾乎覆蓋全屋。 ![]() 占地面積:10.9m*10.7m,121平方米左右; 建筑層高:三層; 建筑高度:12.95米(含屋頂); 設計功能: 一層戶型:神位、客廳、餐廳、廚房、臥室(帶衛生間)、衛生間; 二層戶型:起居室、休閑區、書房、臥室(帶衛生間)、臥室x2、衛生間、陽臺; 三層戶型:休閑區、書房、洗衣房、臥室x2、衛生間、露臺; ![]() ![]() ![]() 農村別墅戶型圖三:100平米三層樓房設計圖圖紙介紹:100平方三層樓房設計圖,戶型設計簡約時尚,三層設計一個整體的大空間,業主可以自行隔斷,靈活使用有限的空間。外立面采用淺黃色搭配屋頂灰色,清新優雅。 ![]() 占地面積:10.8m*9.0m,一層占地100平方米左右; 建筑層高:三層; 建筑高度:12.6米(含屋頂); 設計功能: 一 層:客廳、廚房、餐廳、臥室(衛生間)、衛生間、儲藏間; 二 層:起居室、臥室(帶衛生間、露臺)、臥室×2、衣帽間、衛生間、露臺; 三 層:大露臺、房間功能自定義; ![]() ![]() ![]() 以上就是農村自建房三層樓外觀效果圖,造型美觀,屋里布局也很棒,要是在村里建上一棟,我們離好日子就不遠啦。
圖紙之家-專注農村別墅/自建房設計18年,集合國內200余位經驗豐富的設計師,被評為口碑最好的農村建筑設計公司! |

三層別墅設計施工圖紙(含外觀效果圖)帶大露臺
占地:160平方米
超好看的現代簡約別墅設計圖,占地100平米,城里一套房都不換
占地:102.21平方米
最好看大氣的豪華三層樓房設計圖,客廳中空,旋轉樓梯
占地:340平方米
農村三層私人住宅設計圖紙及效果圖,帶車庫,帶露臺
占地:150平方米
精致簡歐一層別墅設計圖,經典大氣百看不厭
占地:139.57平方米
四開間一層半別墅設計圖,帶閣樓設計的戶型方案
占地:190.7平方米
五間兩層農村自建房設計圖,大門居中真氣派,空間寬敞生活質量
占地:219.94平方米
精致時尚一層雙拼別墅設計圖,造價實惠,起居互不打擾
占地:369.54平方米
小型中式一層三合院別墅設計圖,小宅基地照樣建合院
占地:119.73平方米
100平內的三層豪華歐式別墅房屋設計圖紙 ,簡歐風格
占地:94平方米左右
給爸媽建養老房?100 平人字坡一層房太合適!簡約低調還實用
占地:102.6平方米
新農村兄弟合建三層雙拼房屋設計方案圖,開間18米有全套圖紙
占地:237.21平方米
面寬11米現代風二層小別墅,平屋頂設計,緊跟潮流時尚前衛
占地:94.43平方米
200平方米別墅設計圖紙(含效果圖),農村別墅方案精選
占地:200.26平方米
占地180平豪華三層農村別墅自建房設計圖,歐式與現代相融合
占地:183.706平方米
平屋頂二層自建房帶商鋪別墅設計圖紙及外觀圖
占地:225平方米
12米面寬一層農村別墅設計圖,實用又舒適
占地:110.41平方米
最漂亮的農村二層小樓圖,平屋頂的設計對于農村來說尤為便利
占地:170平方米
兩層三間農村房屋設計圖,新農村住宅方案推薦
占地:155平方米
2026新款農村三層雙拼自建房設計圖,占地150平米左右
占地:150平方米
推薦:10套新農村自建房設計圖,2026年最新設計
閱讀次數:4825737次
100套鄉村別墅圖片大全,2026年最新設計
閱讀次數:2492203次
6款農村蓋一層平房的設計圖,10萬元就能建起來
閱讀次數:1852637次
這11個一層農村自建房別墅火爆了朋友圈!我最喜歡戶型十!你呢
閱讀次數:750268次
農村6萬元建一層小別墅圖,你敢相信嗎
閱讀次數:567686次
農村5萬塊就能自建房,6套普通房子設計圖分享,你沒看錯!
閱讀次數:419410次
8套農村漂亮三間平房圖片,非常適合在農村修建!
閱讀次數:411197次
農村自建房化糞池怎么做?附方案及施工過程
閱讀次數:391783次
農村一層三間平房設計圖,告別土氣養老房,讓人忍不住點贊
閱讀次數:350581次
新農村二層樓房圖片造價12萬,挑一套回家建房吧!
閱讀次數:349126次
