
|
很多家里都是帶著老人一起住,所以人口可能比較多,那么如果建個一層或者二層的小別墅,可能住起來不舒適,倒不如建一棟三層的小別墅,一大家子人住在一起舒適又安心。今天分享三款農村30萬左右別墅圖,各種款式都有,還有帶地下室設計的,總有一款是你喜歡的,要建房的朋友可以考慮一下。
方案一:農村三層別墅設計圖,占地138平米,造價30來萬
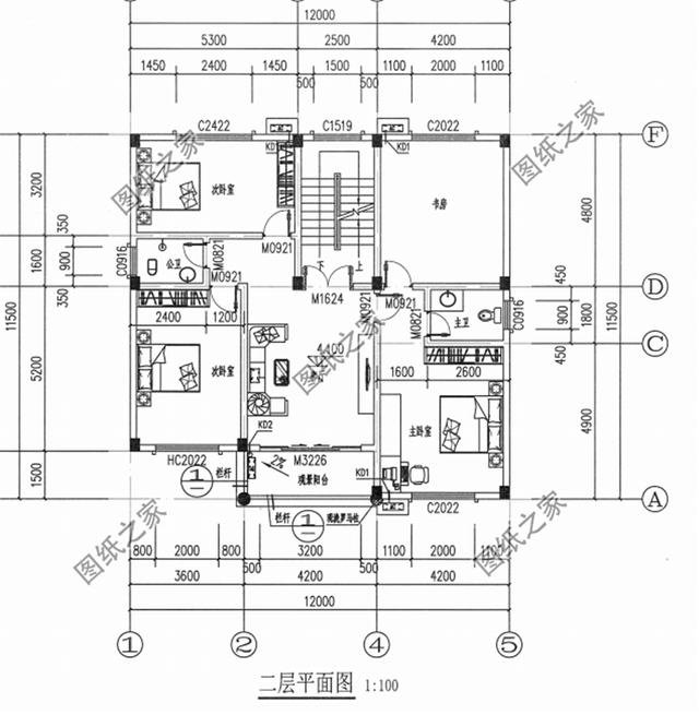
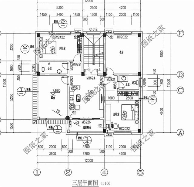
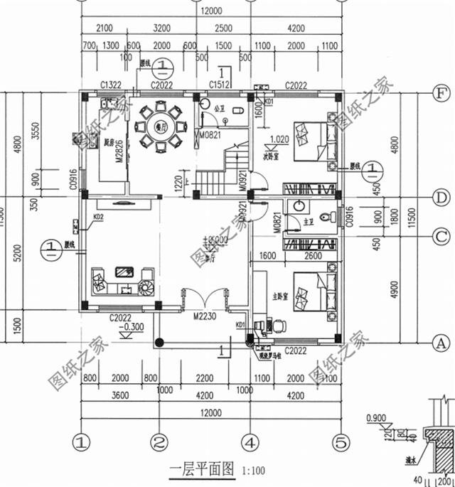
![]() ![]() ![]() ![]() 圖紙介紹:本戶型造價30萬左右,外觀大氣、戶型實用,符合農村人的審美觀,二樓、三樓設計出2個書房,為了考慮到孩子的學習、主人的辦公需求,如果不需要2個書房,還可以作為其他功能。 占地面積:12.00m*11.5m,138平方米左右; 建筑層高:三層; 建筑高度:13.9米(含屋頂); 設計功能: 一 層:客廳、廚房、餐廳、臥室(帶衛生間)、臥室、衛生間; 二 層:客廳、臥室(帶衛生間)、臥室x2、書房、衛生間、陽臺; 三 層:客廳、臥室(帶衛生間)、臥室、書房、大露臺、陽臺;
方案二:農村帶地下室三層別墅設計圖
![]() ![]() ![]() ![]() ![]() 圖紙介紹:這款獨棟復式三層別墅,外墻裝飾采用淡黃色、灰綠色面磚,屋頂斜瓦采用紅色西瓦。一樓有入戶門廳,二樓有陽臺、三樓均有露臺。外觀時尚簡約很多農村朋友表示非常喜歡。 占地面積:14.14m*9.64m,134平方米左右; 建筑層高:三層; 建筑高度:12.6米(含屋頂); 設計功能: 地下室:功能自理; 一層戶型:門廳、客廳、餐廳、廚房、臥室(帶衛生間)、衛生間; 二層戶型:客廳上空、起居室、臥室、臥室(帶衛生間)、臥室(帶衣帽間)、衛生間、陽臺; 三層戶型:客廳、臥室x2、臥室(帶衛生間)、衛生間、露臺;
方案三:獨棟歐式三層別墅設計圖,戶型實用,外觀大氣
![]() ![]() ![]() ![]() 圖紙介紹:這款別墅外觀大氣豪華,占地13×13米,一層有復式客廳、主臥帶內衛、廚房、公共衛生間、餐廳。二樓小陽臺的設計使生活更加豐富。三樓雙主臥的設計,方便兩代人的居住,屋頂花園可以用來晾曬衣服、農作物。 占地面積:13m*13m,144.75平方米左右; 建筑層高:三層; 建筑高度:13米(含屋頂); 設計功能: 一層戶型:客廳、廚房、餐廳、儲物間、臥室(衛生間)、衛生間; 二層戶型:客廳上空、起居室、臥室(衛生間、衣帽間)、臥室、衛生間、陽臺; 三層戶型:娛樂區、臥室(衛生間)x2、臥室、衛生間、露臺; 這三款別墅外觀漂亮,內部功能合理,怎么看怎么讓人喜歡,看上哪一款可以留言告訴小編。
圖紙之家-專注農村別墅/自建房設計18年,集合國內200余位經驗豐富的設計師,被評為口碑最好的農村建筑設計公司! |

135平方米新農村三層別墅設計圖紙,外觀效果圖很漂亮
占地:134平方米
180平方現代風三層別墅設計圖,經典大氣,百看不厭
占地:180.48平方米
三層兄弟雙拼別墅設計圖,外觀大氣漂亮,顏色搭配協調,一層為
占地:270平方米
100-140平多戶型二層經典新農村小別墅設計建筑圖紙
占地:多種戶型
農村自建一層房子設計圖,大開間小進深,20米x10米
占地:188平方米
人字坡房屋一層別墅設計圖,簡約低調超實用,、
占地:101.17平方米
架空層設計的農村自建房別墅設計圖,既做車庫又做儲物間,太實
占地:230.62平方米
140平方米新農村二層自建平屋頂房屋設計圖紙帶外觀效果圖
占地:140平方米左右
爆款農村兄弟雙拼自建房設計圖,占地不大舒適宜居
占地:147.2平方米
外觀造型對稱的二層別墅設計圖,老虎窗+挑空客廳
占地:175.2平方米
新中式農村50萬三層別墅款式圖,占地面積160平米左右
占地:150平方米
160平小開間大進深農村三層別墅設計圖紙
占地:158.73平方米
豪華新中式兩層半農村別墅設計圖,繁華之外,心之所向
占地:290.4平方米
預算30萬三層樓房設計圖含效果圖,戶型經典
占地:125平方米
帶獨立廚房的二層自建房設計圖,大戶型方案
占地:233平方米
開間4米多的農村三層別墅設計圖,一開間三層自建房
占地:66.65平方米
雙拼二層大別墅設計圖,大面寬小進深,讓兄弟永遠不分家
占地:207.15平方米
100平左右農村一層平房小洋樓建筑設計圖紙,14米×8米
占地:98平方米
簡單實用的二層雙拼別墅設計圖,總占地150平米左右,雙拼房屋
占地:150平方米MB
推薦:10套新農村自建房設計圖,2026年最新設計
閱讀次數:4825737次
100套鄉村別墅圖片大全,2026年最新設計
閱讀次數:2492203次
6款農村蓋一層平房的設計圖,10萬元就能建起來
閱讀次數:1852637次
這11個一層農村自建房別墅火爆了朋友圈!我最喜歡戶型十!你呢
閱讀次數:750268次
農村6萬元建一層小別墅圖,你敢相信嗎
閱讀次數:567686次
農村5萬塊就能自建房,6套普通房子設計圖分享,你沒看錯!
閱讀次數:419410次
8套農村漂亮三間平房圖片,非常適合在農村修建!
閱讀次數:411197次
農村自建房化糞池怎么做?附方案及施工過程
閱讀次數:391783次
農村一層三間平房設計圖,告別土氣養老房,讓人忍不住點贊
閱讀次數:350581次
新農村二層樓房圖片造價12萬,挑一套回家建房吧!
閱讀次數:349126次
