
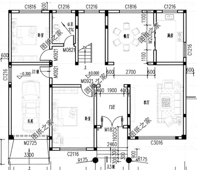
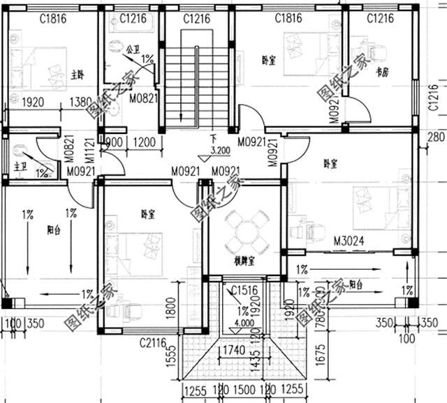
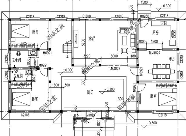
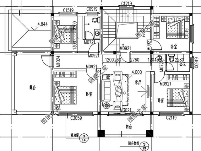
戶型一:農村二層樓簡單大氣的樓房設計圖紙農村二層樓簡單大氣的樓房設計圖紙,帶車庫,帶露臺,結構比較簡單,時尚又實惠。外觀上屋頂采用藍色瓦,主墻外面采用黃色面磚搭配米白色欄桿,色彩明亮,簡單大氣。 ![]() 占地面積:16.0m*11.6m,占地面積156平方米左右; 建筑層高:二層; 建筑高度:9.8米(含屋頂); 設計功能: ![]() 一層戶型:客廳、餐廳、廚房、衛生間、臥室、車庫、伙房、雜物間; ![]() 二層戶型:客廳、臥室(帶衛生間)、臥室x3、衛生間、陽臺、大露臺; 戶型二:160平方現代新農村四合院兩層別墅施工圖占地157平方米左右二層現代中式四合院自建房,在別墅的二層也設有露臺,也可以讓住在二樓的戶主方便養花,晾曬被褥等。 ![]() 占地面積:19.16m*10.5m,157平方米; 建筑層高:二層; 建筑高度:9.2米(含屋頂); 設計功能: ![]() 一層戶型: 臥室X2,衛生間,臥室(帶衛生間),客廳,院子,廚房,餐廳; ![]() 二層戶型: 書房,衛生間,儲藏間,涼亭,院子上空,臥室X3,客廳,露臺; 戶型三:農村二層半別墅圖片本方案為農村二層半別墅設計圖,帶閣樓,帶車庫,帶室內露臺,外觀時尚、漂亮,內部布局非常合理。 ![]() 占地面積:14.34m*11.34m,160平方米左右; 建筑層高:二層半(帶閣樓); 建筑高度:8.90米(含屋頂); 設計功能: ![]() 一層戶型設計:門廳、客廳、廚房、餐廳、衛生間、臥室x2、車庫; ![]() 二層戶型設計:主臥(帶衛生間)、臥室x3(其中一個臥室可以做書房,書房可以做衣帽間)、棋牌室、書房、衛生間、露臺、陽臺; 三層戶型設計:閣樓;
以上就是農村建房圖紙設計圖的分享,這幾款大家還滿意嘛,覺得怎么樣,可以提出來,我們會改進的。 圖紙之家-專注農村別墅/自建房設計18年,集合國內200余位經驗豐富的設計師,被評為口碑最好的農村建筑設計公司! |

高端三層別墅設計圖紙,客廳中空,帶地下室,設置多個套間
占地:220平方米
120平米三層30萬別墅圖片大全及全套施工圖,外觀簡潔大方
占地:120平方米
漂亮時尚二層樓房設計圖紙,經濟實用,戶型通透
占地:150平方米
獨棟別墅設計戶型圖帶外觀效果圖,雙向樓梯設計
占地:155平方米
100平方米實用二層半小別墅設計圖紙(帶閣樓層),住著安逸
占地:100平方米左右
新中式農村三層樓房設計圖紙,全套圖紙設計,線條錯落有致
占地:130平方米
120平米農村40萬三層別墅自建房款式,簡歐風格
占地:120平方米
農村三層帶電梯小別墅設計施工圖,120平方米左右12.2x10.8米
占地:123平方米
三層新中式別墅設計圖,面寬12米經典漂亮
占地:154.93平方米
80平方米鄉村一層半帶閣樓自建別墅設計圖,帶車庫
占地:80平方米
新農村二層客廳挑高樓房設計圖,外觀歐式風格
占地:178平方米
挑空客廳戶型歐式二層別墅設計圖紙,高端大氣帶車庫
占地:236.09平方米
130平方米湖南二層復式自建房屋設計圖紙12x11米
占地:128平方米
一層帶商鋪的四層樓房別墅設計圖紙和效果圖,房屋戶型圖
占地:133平方米
經典四合院別墅設計圖,復式挑空客廳讓四合院更高端
占地:175平方米左右
鄉村高檔四層豪華別墅自建房設計圖,一層不帶餐廳廚房戶型
占地:147平方米
帶地下室的一層別墅設計圖,農村自建房比較合適
占地:206平方米
帶開放式車庫二層農村自建別墅設計方案,造價僅15萬
占地:89.412平方米
簡簡單單的二層樓房的設計圖,24萬就能搞定
占地:120平方米
面寬8米的新農村三層自建房設計圖平屋頂,全套cad圖紙+效果圖
占地:115平方米
推薦:10套新農村自建房設計圖,2026年最新設計
閱讀次數:4825737次
100套鄉村別墅圖片大全,2026年最新設計
閱讀次數:2492203次
6款農村蓋一層平房的設計圖,10萬元就能建起來
閱讀次數:1852637次
這11個一層農村自建房別墅火爆了朋友圈!我最喜歡戶型十!你呢
閱讀次數:750268次
農村6萬元建一層小別墅圖,你敢相信嗎
閱讀次數:567686次
農村5萬塊就能自建房,6套普通房子設計圖分享,你沒看錯!
閱讀次數:419410次
8套農村漂亮三間平房圖片,非常適合在農村修建!
閱讀次數:411197次
農村自建房化糞池怎么做?附方案及施工過程
閱讀次數:391783次
農村一層三間平房設計圖,告別土氣養老房,讓人忍不住點贊
閱讀次數:350581次
新農村二層樓房圖片造價12萬,挑一套回家建房吧!
閱讀次數:349126次
