
|
回農村建房子,在大多數農村地區已經成了定局,家家戶戶都開始在老家蓋房子,喜歡什么樣的就可以建什么樣的,完全不用擔心建的不好看。今天小編推薦三款占地150平米三層樓房設計圖,家庭人口多的朋友們可以參考,外觀大氣,雖然占地不是很大,但是對于一般家庭來說足夠了。
戶型一:農村三層自建樓房設計圖,占地150平米左右,帶地下室設計
![]() 圖紙介紹:這款三層別墅占地150平米左右,帶地下室設計,外觀非常的大氣,室內布局功能合理,適合農村建造。 占地面積:13.3m*11.46m,一層占地150平方米左右; 建筑層高:三層; 建筑高度:12.8米(含屋頂); 設計功能: 地下室:儲藏間、酒窖、KTV娛樂室、健身大廳; 一 層:客廳、廚房、餐廳、臥室×2、衛生間; 二 層:客廳、臥室x3、衛生間; 三 層:休閑區、臥室x2、衛生間、大露臺×2; ![]() ![]() ![]() ![]() 戶型二:農村歐式三層別墅設計圖,客廳中空,帶旋轉樓梯
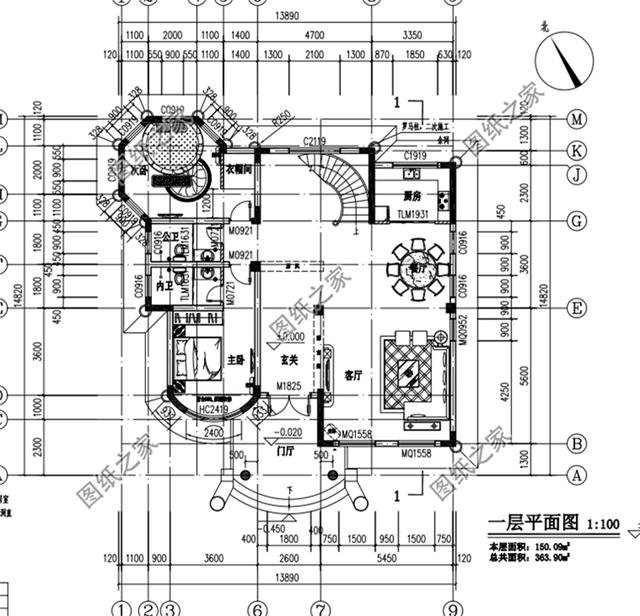
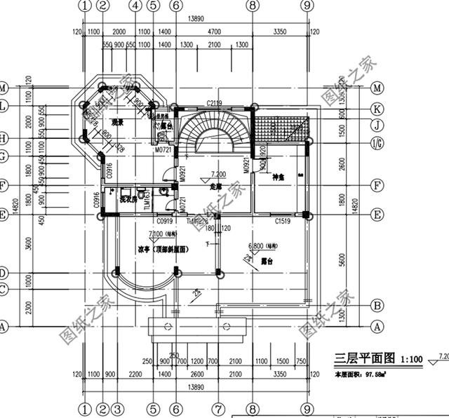
![]() 圖紙介紹:本戶型占地150平米左右,客廳中空,旋轉樓梯的設計增加了室內的高級感,二樓有娛樂廳,三樓有景觀臺,可以作為休閑區域,滿足日常生活的所有需要。 占地面積:13.8m*14.8m,一層占地150平方米左右; 建筑層高:三層; 建筑高度:14.5米(含屋頂); 設計功能: 一 層:玄關、客廳、廚房、餐廳、主臥(含衛生間)、次臥、衛生間; 二 層:客廳上空、主臥室(帶衣帽間,衛生間)、次臥×2、衛生間、娛樂廳; 三 層:景觀臺、洗衣房、走廊、神龕、涼亭、露臺; ![]() ![]() ![]() 戶型三:面寬13米農村三層別墅設計圖,帶堂屋設計
![]() 圖紙介紹:本戶型占地150平方米左右,面寬13米,外觀是簡約又質樸的新中式風格別墅,一樓餐廳很大,來親戚朋友絕對可以坐的下;小客廳帶有陽臺,精致大方,可做小型客廳,給了二樓一個獨立空間,為家人提供休閑娛樂場所,三層露臺空間大,可以晾曬大量的農作物,十分方便。 占地面積:13.2m*12.6m,151.58平方米左右; 建筑層高:三層; 建筑高度:12.956米(含屋頂); 設計功能: 一層戶型:堂屋、客廳、廚房、餐廳、棋牌室、父母房(帶衣帽間、衛生間)、衛生間; 二層戶型:客廳上空、小客廳、臥室x2、臥室(帶衣帽間、衛生間)、衛生間、露臺; 三層戶型:健身房、陽光房、臥室、臥室(帶衣帽間、衛生間)、衛生間、露臺; ![]() ![]() ![]() 這三款別墅占地方正,戶型大氣,大家覺得怎么樣呢?
圖紙之家-專注農村別墅/自建房設計18年,集合國內200余位經驗豐富的設計師,被評為口碑最好的農村建筑設計公司! |

農村大戶型中式二層四合院別墅設計圖含外觀效果圖,戶型經典、
占地:464平方米
農村四間兩層樓房設計圖,外觀時尚,戶型實用
占地:180平方米
130平方米農村兩層別墅圖紙及效果圖12X11米
占地:133平方米
農村三層樓房設計圖及圖片,客廳挑空,優化室內采光
占地:140平方米
140平三層別墅房屋設計圖,含外觀圖片,外觀現代時尚
占地:143平方米
開間9到10米簡約別墅設計圖紙帶效果圖,全套別墅設計方案
占地:122平方米
造價40萬內三層別墅房屋設計方案,設計圖+外觀效果圖
占地:150平方米
時尚耐看現代二層農村別墅設計圖,14米×11米,年輕人建房的不二
占地:138.125平方米
面寬18米二層新中式別墅圖紙設計,復式戶型,帶堂屋
占地:269.83平方米
一層農村自建房設計圖,造型美觀大氣,占地150平
占地:153.415平方米
新農村自建二層樓房戶型設計圖,簡單大氣,外觀漂亮精致
占地:多種戶型
經典三層小別墅設計圖紙(效果圖+全套cad建筑圖),新農村自建
占地:120平方米
農村三間二層別墅設計圖,外觀簡約左右對稱
占地:170.06平方米
最新三層農村別墅設計圖紙,推薦農村自建
占地:106平方米
二層農村小別墅設計圖,造價經濟實惠,參考價30萬以內
占地:140平方米
農村三層房屋設計圖紙,三層農村住宅設計效果圖,11米*10米
占地:100平方米
歐式三層樓房設計圖,客廳中空,旋轉樓梯,帶土灶房
占地:206平方米
180平方米新農村三層別墅設計圖紙,效果圖+全套cad施工圖
占地:180平方米
簡單實用二層雙拼樓房設計圖,造價30萬左右
占地:180平方米
30萬造價三層別墅建筑設計圖紙,戶型利用率高
占地:130平方米
推薦:10套新農村自建房設計圖,2026年最新設計
閱讀次數:4825737次
100套鄉村別墅圖片大全,2026年最新設計
閱讀次數:2492203次
6款農村蓋一層平房的設計圖,10萬元就能建起來
閱讀次數:1852637次
這11個一層農村自建房別墅火爆了朋友圈!我最喜歡戶型十!你呢
閱讀次數:750268次
農村6萬元建一層小別墅圖,你敢相信嗎
閱讀次數:567686次
農村5萬塊就能自建房,6套普通房子設計圖分享,你沒看錯!
閱讀次數:419410次
8套農村漂亮三間平房圖片,非常適合在農村修建!
閱讀次數:411197次
農村自建房化糞池怎么做?附方案及施工過程
閱讀次數:391783次
農村一層三間平房設計圖,告別土氣養老房,讓人忍不住點贊
閱讀次數:350581次
新農村二層樓房圖片造價12萬,挑一套回家建房吧!
閱讀次數:349126次
