
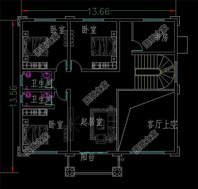
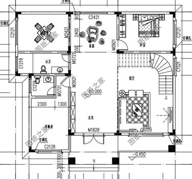
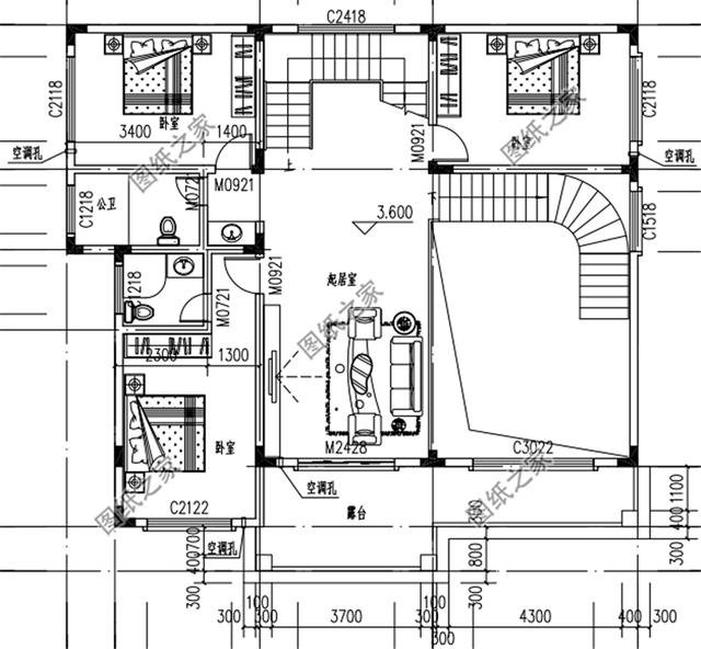
第一款: 農村現代風格兩層小樓圖現代風格兩層小樓圖,清新優雅,符合農村的生活習慣。 ![]() 占地面積:14m*13.35m,161平方米左右; 建筑層高:二層; 建筑高度:9.91米(含屋頂); 建筑結構:磚混結構; 設計功能: 一層戶型:玄關、神位、客廳、廚房、餐廳、臥室x2、衛生間; 二層戶型:娛樂廳、書房、兒童房、臥室x3、衛生間、陽臺; ![]() ![]() 第二款:新農村兩層半小洋樓房設計圖典型的歐式風格小別墅,外觀時尚大氣,外墻采用了真石漆處理墻面,室內一二層分別設置了客廳,窗戶也是大落地窗,屋頂的紅瓦洋氣十足。 ![]() 占地面積:13.66m*13.56m,166.8平方米; 建筑層高:三層; 建筑結構:磚混結構; 建筑高度:12.905米(含屋頂); 設計功能: 一層戶型:堂屋、客廳、餐廳、廚房、臥室x2、衛生間; 二層戶型:客廳上空、起居室、臥室(帶衛生間)、臥室X2、書房、衛生間、陽臺; 三層戶型:臥室X2、衛生間、露臺、陽臺; ![]() ![]() ![]() 第三款:農村160平米農村三層樓房設計圖160平方米農村三層樓房設計圖,客廳中空,別墅外觀精美極了,配色也新穎。 ![]() 占地面積:14.2m*13.6m,一層占地160平方米左右; 建筑層高:三層; 建筑高度:12.5米(含屋頂); 設計功能: 一 層:客廳、臥室、棋牌室、茶座、練歌房(帶衛生間)、衛生間; 二 層:客廳上空、臥室(帶衛生間)、臥室x2、衛生間、露臺; 三 層:起居室、臥室x2、娛樂室、衛生間、大露臺; ![]() ![]() ![]() 以上就是幾款占地160平米自建房設計圖,在這幾款里面,你最喜歡哪一套呢?
圖紙之家-專注農村別墅/自建房設計18年,集合國內200余位經驗豐富的設計師,被評為口碑最好的農村建筑設計公司! |

造價30萬的三層簡歐新農村別墅設計施工圖紙及效果圖
占地:133平方米
二層半大客廳復式別墅房屋設計圖,客廳寬闊明亮
占地:125平方米
占地200平農村二層自建房設計方案戶型,陽面臥室多
占地:208平方米
農村四間一層房屋設計圖,160平方米,用來養老正合適!
占地:160平方米
四層復式別墅設計方案,外觀氣派布局實用,舒適宜居美極了!
占地:204.64平方米
四間兩層實用簡約的住房設計圖,毛坯24萬,農村建正合適
占地:159.48平方米
30萬左右的新農村自建三層別墅施工設計圖紙及效果圖
占地:148平方米
新農村住宅設計圖集,三層房屋設計圖紙展示
占地:110平方米
中式二層對稱別墅設計圖,帶地下室設計,整體造價經濟
占地:171.6平方米
鄉村別墅現代風平屋頂四層自建房設計圖,簡約時尚
占地:144.7平方米
新農村三拼別墅三戶連體別墅設計圖,設計新穎美觀
占地:380平方米
帶車庫新農村二層四間別墅設計效果圖帶全套建筑施工圖,217平方
占地:217.21平方米
185平米自建三層別墅房屋施工設計圖紙及效果圖
占地:187平方米
大氣自建三層雙拼別墅戶型圖方案,完美的戶型就是它
占地:287平方米
一層農村自建房別墅設計圖,簡潔時尚的設計,給父母建養老房
占地:144平方米
最新設計的三層農村別墅圖紙,帶車庫,帶露臺,占地150平米左右
占地:150平方米
90平農村自建房二層新款,占地不大但很實用,
占地:88平方米
戶型獨特的、二層臥室挑高的別墅房屋設計圖,外觀簡歐風格
占地:250平方米
小型中式一層三合院別墅設計圖,小宅基地照樣建合院
占地:119.73平方米
農村兩層新中式自建房屋設計圖,受歡迎的帶小配房戶型
占地:多戶型可選
推薦:10套新農村自建房設計圖,2026年最新設計
閱讀次數:4825737次
100套鄉村別墅圖片大全,2026年最新設計
閱讀次數:2492203次
6款農村蓋一層平房的設計圖,10萬元就能建起來
閱讀次數:1852637次
這11個一層農村自建房別墅火爆了朋友圈!我最喜歡戶型十!你呢
閱讀次數:750268次
農村6萬元建一層小別墅圖,你敢相信嗎
閱讀次數:567686次
農村5萬塊就能自建房,6套普通房子設計圖分享,你沒看錯!
閱讀次數:419410次
8套農村漂亮三間平房圖片,非常適合在農村修建!
閱讀次數:411197次
農村自建房化糞池怎么做?附方案及施工過程
閱讀次數:391783次
農村一層三間平房設計圖,告別土氣養老房,讓人忍不住點贊
閱讀次數:350581次
新農村二層樓房圖片造價12萬,挑一套回家建房吧!
閱讀次數:349126次
