
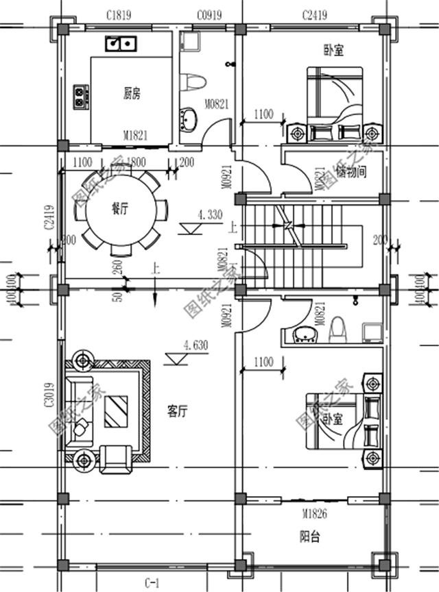
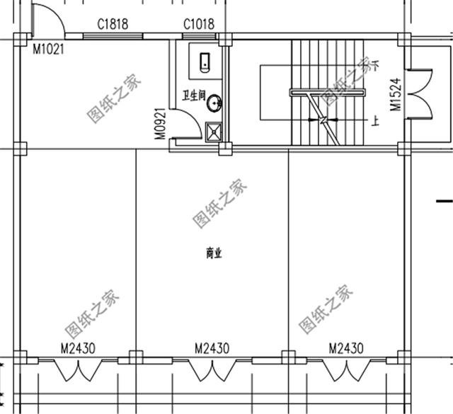
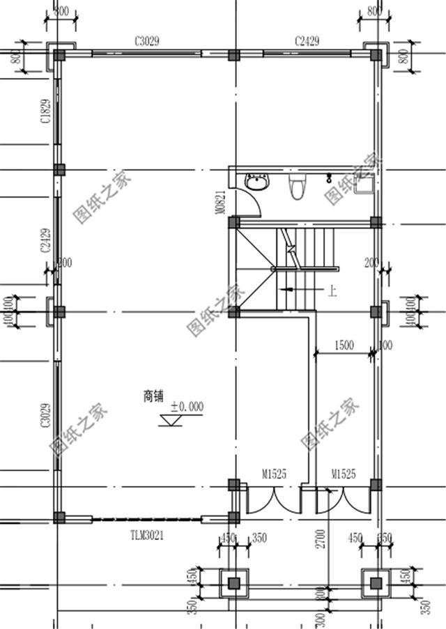
戶型一:三層農村小別墅設計圖![]() 三層農村小別墅設計圖,一層帶商鋪,占地110平米,經濟實用,在城里買不上房,不夠首付,但是卻能在農村建一套三層的小別墅。 占地面積:11.6m*9.6m,一層110建筑平方米; 建筑層高:三層; 建筑高度:14.4米(含屋頂); ![]() ![]() ![]() 設計功能: 一層戶型設計:商鋪、衛生間; 二層戶型設計:客廳、餐廳、廚房、臥室(帶衛生間)、臥室×2、衛生間; 三層戶型設計:臥室×3、衛生間×2、娛樂區; 戶型二:一層帶商鋪的四層樓房別墅設計圖紙和效果圖![]() ![]() 9x13米一層帶商鋪臨街戶型自建別墅樓房,房屋設計圖紙,挑空復式帶大露臺。一層作為商鋪帶公衛,設計南向樓梯進入生活區。二層布局為基本的生活配置包括廚房餐廳等,室外設以陽臺;三層有三室一廳一衛,配有一個外置陽臺。四層設計了兩室一廳一衛,配以亭子和露臺。帶商鋪的房子,不論是租出去,還是自己用來做點小生意都是合適的。 占地面積:9.0m*13.0m,133平方米; 建筑層高:四層; 建筑高度:16.82米(含屋頂); ![]() ![]() ![]() ![]() 設計功能: 一層戶型: 商鋪,衛生間; 二層戶型:客廳,臥室(帶衛生間,陽臺),廚房,餐廳,衛生間,臥室,儲物間; 三層戶型:客廳上空,臥室(帶陽臺),起居室,臥室,衛生間,兒童房; 四層戶型:露臺,亭子,起居室,臥室X2,衛生間;
以上就是帶商鋪的農村自建房圖片,建一棟不是正好,賺錢居住兩不誤,你心動了嘛?
圖紙之家-專注農村別墅/自建房設計18年,集合國內200余位經驗豐富的設計師,被評為口碑最好的農村建筑設計公司! |

130多平方米新農村三層別墅建筑設計圖及效果圖
占地:133平方米左右
三層農村自建房別墅設計圖紙,大廳中空,外觀高端大氣
占地:230平方米
農村20萬元二層小樓房設計圖,經典新農村自建房戶型
占地:120平方米
二層自建房屋設計圖,帶小院,帶地下室,外觀現代、時尚,內部
占地:200平米
徽派120平新農村住宅設計方案,帶外觀效果圖
占地:120平方米
共用中堂雙拼兄弟三層別墅設計圖,簡歐式風格
占地:230平方米
面寬不到10米的小戶型自建房戶型圖,全套設計圖紙可施工
占地:123.2平方米左右
小戶型二層四合院別墅設計圖,含外觀效果圖,小宅基地選擇
占地:134平方米
鄉村兩層半別墅設計圖,一層160平,主體30萬左右
占地:168平方米左右
簡約偏現代三層別墅設計圖紙及效果圖,鄉村蓋房推薦方案
占地:130平方米左右
占地百平三層歐式別墅設計圖,回到家鄉建一棟,大氣美觀有內涵
占地:99.94平方米
最好看的農村三層樓房設計圖,占地113平米,小平米大格局
占地:110平方米
美式田園二層別墅設計方案圖,全套設計圖+效果圖
占地:235平方米
全新農村簡歐風格三層房屋別墅效果圖,110和210兩個戶型,帶電梯
占地:多種戶型
50萬左右農村三層別墅設計圖紙,帶大露臺,外觀大氣
占地:150平方米
歐式二層別墅平面圖,全套cad設計圖紙和外觀效果圖
占地:202平方米
中式古風別墅設計圖,一層三合院設計,經濟舒適,時尚與傳統的
占地:275.7平方米
140平方米農村三層復式房屋設計施工圖,開放式廚房
占地:143平方米
中國最美的四合院別墅設計圖方案,復式挑空客廳戶型
占地:343.57平方米
130平左右三層樓房設計圖,新農村住宅自建推薦
占地:128平方米
推薦:10套新農村自建房設計圖,2026年最新設計
閱讀次數:4825737次
100套鄉村別墅圖片大全,2026年最新設計
閱讀次數:2492203次
6款農村蓋一層平房的設計圖,10萬元就能建起來
閱讀次數:1852637次
這11個一層農村自建房別墅火爆了朋友圈!我最喜歡戶型十!你呢
閱讀次數:750268次
農村6萬元建一層小別墅圖,你敢相信嗎
閱讀次數:567686次
農村5萬塊就能自建房,6套普通房子設計圖分享,你沒看錯!
閱讀次數:419410次
8套農村漂亮三間平房圖片,非常適合在農村修建!
閱讀次數:411197次
農村自建房化糞池怎么做?附方案及施工過程
閱讀次數:391783次
農村一層三間平房設計圖,告別土氣養老房,讓人忍不住點贊
閱讀次數:350581次
新農村二層樓房圖片造價12萬,挑一套回家建房吧!
閱讀次數:349126次
