
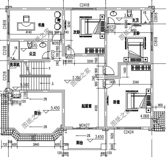
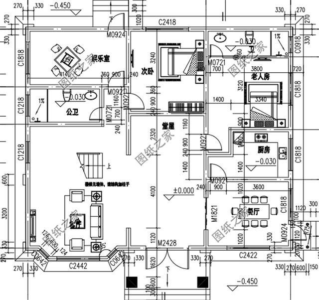
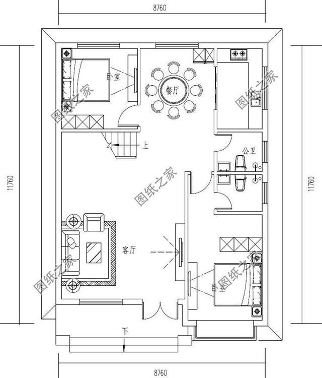
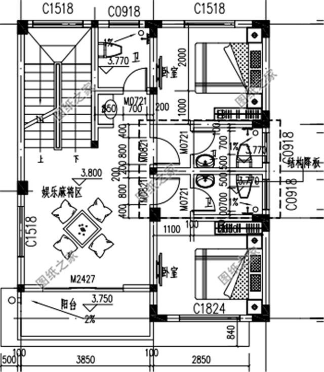
別墅一:歐式二層別墅cad施工圖紙,含效果圖![]() 歐式二層農村小別墅,外觀時尚又大氣,大大的玻璃落地窗,讓簡單的外觀多了一些時尚感。屋頂大露臺造型讓整個外觀 占地面積:14.72m*12.28m,189平方米; 建筑層高:二層; 建筑高度:9.1米(含屋頂); ![]() ![]() 設計功能: 一層戶型:娛樂室,公衛,客廳,堂屋,次臥,廚房,餐廳,老人房(帶衛生間); 二層戶型:書房,公衛,次臥X2,主臥(帶衛生間),起居室,露臺,陽臺; 別墅二:農村三層自建房圖,小戶型設計方案圖![]() 農村三層自建房設計圖,占地60多平米,布局合理,不浪費每一寸空間,舒適安逸。占地面積小,所以造價也不是很貴,15萬左右就可以建一棟。 占地面積:7.3m*8.8m,一層占地63平方米左右; 建筑層高:三層; 建筑高度:11.1米(含屋頂); ![]() ![]() ![]() 設計功能: 一 層:客廳、廚房、餐廳、臥室、衛生間; 二 層:娛樂區、臥室(帶衛生間)×2、衛生間、陽臺; 三 層:臥室(帶衛生間)、大露臺; 別墅三:小開間三層新中式小別墅設計圖![]() 小開間三層新中式小別墅,這棟別墅簡潔大方,戶型方正,沒有過多的棱角,也沒有花哨的裝飾,是一棟難得的高端別墅。 占地面積:8.76m*11.76m,103.176平方米左右; 建筑層高:三層; 建筑高度:13.167米(含屋頂); ![]() ![]() ![]() 設計功能: 一層戶型:客廳、餐廳、衛生間、臥室(帶衛生間)、臥室; 二層戶型:客廳、衣帽間、臥室x2、臥室(帶衛生間、衣帽間)、衛生間、陽臺; 三層戶型:臥室(帶衛生間、衣帽間)、臥室x2、書房、露臺; 看完了小編給大家分享的別墅設計圖,還擔心建不出好房子嘛?
圖紙之家-專注農村別墅/自建房設計18年,集合國內200余位經驗豐富的設計師,被評為口碑最好的農村建筑設計公司! |

三層平屋頂別墅房屋設計圖及外觀效果圖
占地:150平方米
80平方米鄉村一層半帶閣樓自建別墅設計圖,帶車庫
占地:80平方米
210平左右三層(兩層半)雙拼新農村別墅設計圖紙及外觀效果圖
占地:206.712平方米
百余平三層豪華別墅設計圖,高品位穩重耐看,全村都羨慕的豪華
占地:108.95平方米
165平方米農村帶陽光房的二層小別墅設計圖紙帶外觀圖18.16米*9.
占地:166平方米
160平方米經典鄉村二層房屋設計圖紙
占地:160平方米
大氣的美式三層別墅設計圖,外觀效果圖氣派、美觀
占地:148平方米
三層奢華歐式別墅圖片及全套設計圖,帶地下室和車庫
占地:208平方米左右
實用三層新農村住宅設計圖,鄉村別墅設計圖(含外觀效果圖)
占地:102.34平方米
經典三層雙拼樓房設計圖,經典外觀,經典戶型
占地:225平方米
現代風格三拼別墅設計圖紙,三兄弟回村自建房戶型
占地:324平方米
南方北方新農村房屋設計圖紙(含效果圖),三層住宅設計圖紙
占地:164平方米
農村18萬元二層小樓圖紙,漂亮實用的農村二層樓房設計圖
占地:140平方米
農村蓋房三層自建別墅設計圖紙,11米乘12米戶型方案
占地:132.55平方米
農村中式兩層雙拼別墅房屋設計圖,含效果圖片
占地:200平方米
新農村全套四層別墅設計圖紙占地面積:190平方米造價預算:42萬
占地:190平方米
最新歐式三層別墅設計圖紙,超漂亮,預算30到40萬
占地:160平方米
歐式新農村自建三層建筑施工設計圖紙及效果圖大全
占地:106平方米
新農村兄弟合建三層雙拼房屋設計方案圖,開間18米有全套圖紙
占地:237.21平方米
超好看的現代簡約別墅設計圖,占地100平米,城里一套房都不換
占地:102.21平方米
推薦:10套新農村自建房設計圖,2026年最新設計
閱讀次數:4825737次
100套鄉村別墅圖片大全,2026年最新設計
閱讀次數:2492203次
6款農村蓋一層平房的設計圖,10萬元就能建起來
閱讀次數:1852637次
這11個一層農村自建房別墅火爆了朋友圈!我最喜歡戶型十!你呢
閱讀次數:750268次
農村6萬元建一層小別墅圖,你敢相信嗎
閱讀次數:567686次
農村5萬塊就能自建房,6套普通房子設計圖分享,你沒看錯!
閱讀次數:419410次
8套農村漂亮三間平房圖片,非常適合在農村修建!
閱讀次數:411197次
農村自建房化糞池怎么做?附方案及施工過程
閱讀次數:391783次
農村一層三間平房設計圖,告別土氣養老房,讓人忍不住點贊
閱讀次數:350581次
新農村二層樓房圖片造價12萬,挑一套回家建房吧!
閱讀次數:349126次
