
|
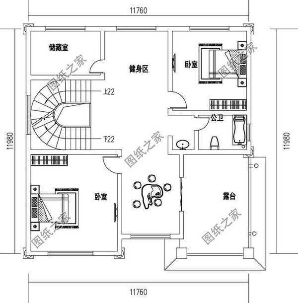
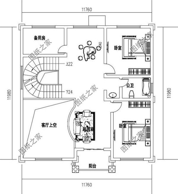
60-70年代的一代人里,有許多人在外辛苦打拼。做生意,辦工廠的人比比皆是,農村出去的人憑借自己勤勞的雙手和堅持,基本都在城市里扎根,自己的小孩在城市上學,自己的事業在城市,但自己的父母還是深愛故鄉,不適應城市生活,還是喜歡自由自在的在農村的鄉間小路上扛著鋤頭挑著擔子,似乎這樣才更享受晚年。今天小編就推薦三款四層別墅設計圖以及戶型圖,回家建造吧! 第一款;最新高端農村四層別墅外觀圖及戶型圖,帶土灶房,復式挑空客廳![]() 父母養老房的上上之選!外觀上,屋頂為鋪灰色釉面瓷瓦,主墻面裝飾采用白真石漆裝飾,墻面采用部分立體浮雕構件,外觀顯大氣。入戶設左側設客廳,方便家人日常交流;旋轉樓梯提升別墅檔次;土灶保留農村傳統,二層3個臥室,主次分明,滿足家人居住需求;挑空客廳,增加室內通透感。 占地面積:15.96m*15.28m,174.08平方米左右; 建筑層高:四層; 建筑高度:16.286米(含屋頂); 設計功能: 一層戶型:入戶門廳、客廳、餐廳、廚房、土灶房、茶室(帶衛生間)、臥室、衛生間; 二層戶型:客廳上空、臥室(帶衛生間)、臥室x2、衛生間、陽臺x2; 三層戶型:起居室、書房、臥室(帶衛生間)x2、臥室x2、衛生間、陽臺x2; 四層戶型:起居室、臥室x2、臥室(帶衛生間)、衛生間、露臺、陽臺; ![]() ![]() ![]() ![]() 第二款:農村大氣四層房屋別墅設計圖以及戶型圖,外觀大氣![]() ![]() ![]() 簡歐風格干凈簡潔,米黃色的外墻搭配藍色屋頂,同色系色的窗套起到色彩呼應的作用,大落地窗的浮雕更是有設計感,左右兩面連通體窗戶和裝飾柱,更是增添了該戶型的大氣感。室內設有中空客廳、健身區以及休閑區等,正是符合新農村建房的標準。 占地面積:11.76m*11.98m,143平方米左右; 建筑層高:四層; 建筑高度:16.59米(含屋頂); 設計功能: 一層戶型:客廳、廚房、餐廳、臥室、儲藏室、衛生間; 二層戶型:客廳上空、起居室、休閑區、備用房、臥室x2、衛生間、陽臺; 三層戶型:起居室、備用房、臥室x3、衛生間、陽臺; 四層戶型:臥室x2、休閑區、儲藏室、健身區、衛生間、露臺 ![]() ![]() ![]() ![]() 第三款:鄉村高檔四層豪華別墅設計圖以及戶型圖,別墅氣派豪華![]() ![]() ![]() 一層不帶餐廳廚房,餐廳廚房設計到了三層,更適合四層布局,由于占地面積不大,只能加層高,才能滿足家庭所有成員的需求。落地窗和多個窗戶設計,優化室內的采光和通風,不會讓室內顯得陰暗擁擠。除了必要的生活功能空間外,該戶型還設有了健身房、娛樂室、KTV室等休閑娛樂功能,生活之余增加休閑活動。 占地面積:11.8m*14.1m,147平方米左右; 建筑層高:四層; 建筑高度:16.05米(含屋頂); 設計功能: 一層戶型:大廳、客廳、臥室(帶衛生間)、KTV(帶衛生間)、過道、衛生間、娛樂室; 二層戶型:客廳上空、客廳、臥室(帶衛生間)x3、衣帽間、陽臺; 三層戶型:客廳、餐廳、廚房、臥室(帶衛生間衣帽間)、臥室(帶衣帽間)、臥室、衛生間、露臺; 四層戶型:客廳、娛樂室、健身房、衛生間、露臺 ![]() ![]() ![]() ![]() 以上就是小編推薦三款四層自建房設計圖以及戶型圖,有沒有相中的?評論區告訴我吧!
圖紙之家-專注農村別墅/自建房設計18年,集合國內200余位經驗豐富的設計師,被評為口碑最好的農村建筑設計公司! |

最新五十萬農村二層別墅設計圖紙,客廳中空
占地:195平方米
經典小戶型二層新農村房屋設計圖紙,客廳中空,造價20萬
占地:94平方米
農村養老房還是一層好,帶閣樓的一層房子設計圖
占地:135平方米
160平方農村三層別墅CAD設計圖紙,含外觀圖片效果圖
占地:156平方米
外觀高檔大氣的三層別墅房屋設計圖,高端別墅設計展示
占地:147平方米
挑空客廳戶型歐式二層別墅設計圖紙,高端大氣帶車庫
占地:236.09平方米
農村簡易二層樓設計圖,外觀簡單漂亮,經典時尚
占地:140平方米
最美農村一層合院設計圖紙,自建一棟火遍十里八鄉
占地:190平方米左右
125平方米新農村三層自建別墅施工設計圖,13x10米
占地:125平方米
農村四間兩層樓房設計圖,帶車庫,時尚經濟,最適合農村施工的
占地:180平方米
160平方米農村實用型二層自建小別墅設計施工圖紙15米*10米
占地:160平方米
地中海風格二層別墅房屋設計圖,帶外觀效果圖
占地:150平方米
人字坡房屋一層別墅設計圖,簡約低調超實用,、
占地:101.17平方米
13米開間的獨棟經濟型二層小別墅房屋設計圖,現代簡約
占地:150.39平方米
120平方三層房子設計圖,漂亮實用農村自建小別墅設計圖
占地:120平方米
歐式獨棟二層小別墅設計圖,客廳中空,占地126平米
占地:120平方米
帶大套間新農村二層別墅自建房設計圖紙帶效果圖
占地:185平方米
一層半房屋別墅設計圖,帶閣樓圖、帶露臺,外觀新穎時尚
占地:130平方米
時尚漂亮的二層小洋樓設計圖,設計師建房都選這個方案
占地:149.27平方米
160平方米三層帶大露臺的復式別墅設計圖紙
占地:155平方米
推薦:10套新農村自建房設計圖,2026年最新設計
閱讀次數:4825737次
100套鄉村別墅圖片大全,2026年最新設計
閱讀次數:2492203次
6款農村蓋一層平房的設計圖,10萬元就能建起來
閱讀次數:1852637次
這11個一層農村自建房別墅火爆了朋友圈!我最喜歡戶型十!你呢
閱讀次數:750268次
農村6萬元建一層小別墅圖,你敢相信嗎
閱讀次數:567686次
農村5萬塊就能自建房,6套普通房子設計圖分享,你沒看錯!
閱讀次數:419410次
8套農村漂亮三間平房圖片,非常適合在農村修建!
閱讀次數:411197次
農村自建房化糞池怎么做?附方案及施工過程
閱讀次數:391783次
農村一層三間平房設計圖,告別土氣養老房,讓人忍不住點贊
閱讀次數:350581次
新農村二層樓房圖片造價12萬,挑一套回家建房吧!
閱讀次數:349126次
