
|
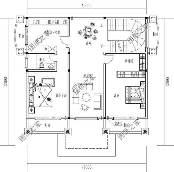
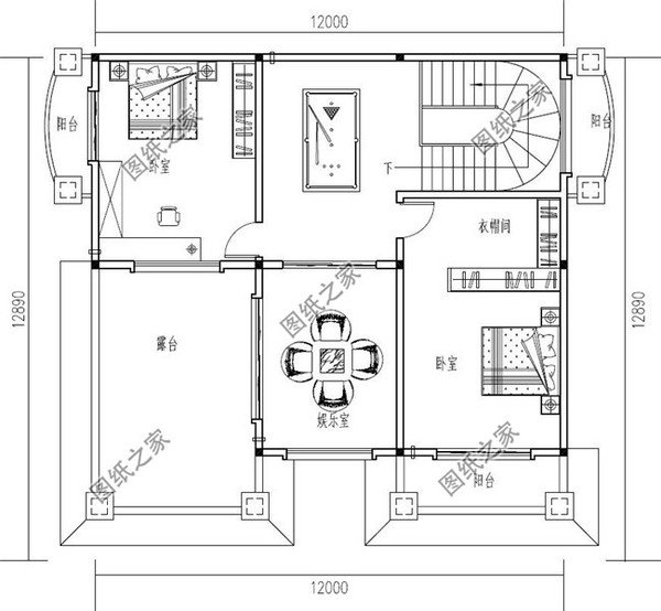
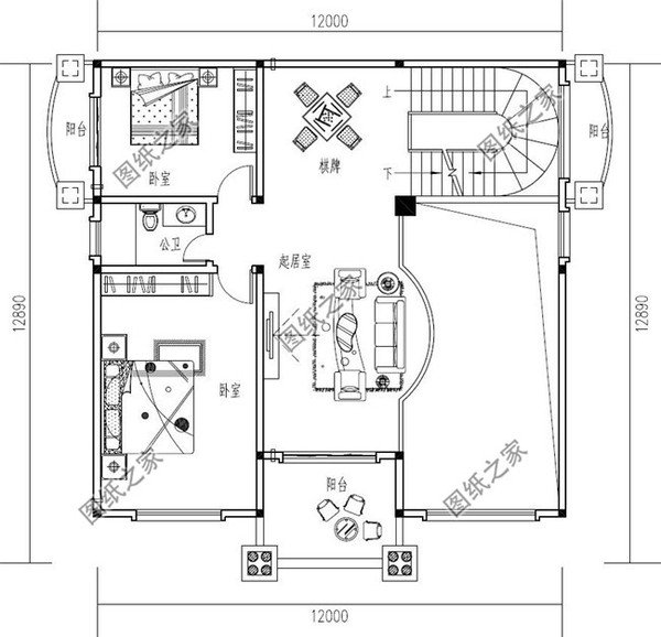
現在在農村建一二三層別墅的人家很多,但是對于四層別墅,相對來說還是少一點的,所以如果誰家建了四層的樓房在農村,那是相當有面子的。今天小編給大家分享的這三款農村四層樓房外觀外觀效果圖,看上去就非常豪華氣派,更不用說建好以后的實拍圖了,那是相當的讓人羨慕。 戶型一:農村四層別墅設計圖,占地165平米,造價經濟實惠![]() 圖紙介紹:這款四層房屋占地165平米左右,造價經濟實惠,適合農村自建。別墅外觀相當大氣,帶坡屋頂農村別墅,大落地窗,簡約清新。 占地面積:16.50m*11.30m,165平方米左右; 建筑層高:四層; 建筑高度:16.76米(含屋頂); 設計功能: 一層戶型:客廳、神位、后廳、餐廳、廚房、臥室、衛生間、臥室(帶衛生間)、化糞池; 二層戶型:客廳、餐廳、廚房、臥室(帶衛生間)x2、臥室、衛生間、露臺、陽臺; 三層戶型:客廳、餐廳、廚房、臥室(帶衛生間)x2、臥室、衛生間、陽臺; 四層戶型:客廳、餐廳、廚房、臥室(帶衛生間)、臥室、衛生間、露臺; ![]() ![]() ![]() ![]() 戶型二:新農村四層獨棟樓房設計圖,占地141平米左右,簡歐外觀風格設計![]() 圖紙介紹:本戶型占地141平米左右,戶型簡單實用,簡歐風格設計,外墻面色彩比較豐富,一二層主要用黃色真石漆,三四層主要用淡黃色真石漆裝飾,門柱采用粉色真石漆,再搭配紅色屋頂,樓層高且造型美,顯得非常氣派。室內帶豪華套房,其中有棋牌室和娛樂室,這樣的房子建在農村,肯定人人羨慕。 占地面積:12m*12.89m,141平方米左右; 建筑層高:四層; 建筑高度:16.62米(含屋頂); 設計功能: 一層戶型:客廳、休閑廳、臥室、衛生間; 二層戶型:客廳上空、起居室、棋牌室、臥室x2、衛生間、陽臺; 三層戶型:起居室、茶座、豪華主臥(帶衛生間、衣帽間、書房)、臥室(帶衣帽間)、陽臺; 四層戶型:娛樂室、臥室(帶衣帽間)、臥室、露臺; ![]() ![]() ![]() ![]() 戶型三:農村四層自建別墅設計圖,占地120平方米左右,客廳中空設計![]() 圖紙介紹:這款四層占地120平方米左右,客廳中空設計,外觀豪華又氣派,大氣十足,還帶大露臺設計,這樣的房子建一棟在村里,簡直面子十足。 占地面積:11.5m*10.5m,120平方米左右; 建筑層高:四層; 建筑高度:15.3米(含屋頂); 設計功能: 一層戶型展示:堂屋、客廳、餐廳、廚房、儲藏間、健身房、臥室、衛生間; 二層戶型展示:客廳上空、起居室、臥室(帶衛生間)、臥室(帶衣帽間)、衛生間、陽臺; 三層戶型展示:主臥(帶衛生間)、臥室×2、書房、衛生間、露臺; 四層戶型展示:娛樂室、衛生間、露臺; ![]() ![]() ![]() ![]() 不知道這三款四層別墅大家最喜歡哪一款呢?如果有喜歡的可以下方留言。
圖紙之家-專注農村別墅/自建房設計18年,集合國內200余位經驗豐富的設計師,被評為口碑最好的農村建筑設計公司! |

經典的農村三層小樓房設計圖,外觀圖片時尚、精致
占地:100平方米
95平米二層別墅必蓋戶型圖,造型洋氣,布局接地氣,趕緊回村建
占地:95.38平方米
簡簡單單一層農村自建別墅方案,布局緊湊又不擁擠
占地:133.55平方米
極簡大氣二層別墅設計圖,15米面寬,簡約大氣,年輕人的最愛!
占地:150平方米
2026年簡單實用二層農村別墅,經典大氣真的香
占地:165.98平方米
時尚二層現代風別墅設計圖紙,平屋頂方案13×10米
占地:98平方米
帶架空層的三層農村別墅設計火了!雨季不怕返潮
占地:147.15平方米
自建二層獨棟別墅建筑施工圖,含效果圖和全套設計圖紙
占地:198.72平方米
造價15萬經濟美觀一層農村別墅設計圖,占地150平米
占地:多戶型可選
10×12米三層別墅戶型,挑空大客廳設計,圈粉無數的爆款方案
占地:120平方米
現代簡約時尚二層帶超大露臺農村別墅戶型,既可以休閑又可晾曬
占地:100.06平方米
最漂亮的農村二層小樓房自建別墅設計圖紙及效果圖
占地:168平方米
帶車庫簡約二層小別墅房屋設計圖紙,占地120平米,彎彎的樓梯打
占地:120平方米
200平方米別墅設計圖紙(含效果圖),農村別墅方案精選
占地:200.26平方米
100平二層精致小別墅房屋設計圖,外觀精致、漂亮
占地:100平方米
200平農村二層別墅設計圖,外觀現代簡約
占地:204平方米
中國最美的四合院別墅設計圖方案,復式挑空客廳戶型
占地:343.57平方米
農村兄弟雙拼二層四合院別墅設計圖,戶型左右對稱
占地:430平方米
新中式農村自建三層別墅房屋施工,12x10米簡潔雅致
占地:121.77平方米
一層農房別墅設計圖紙,140平方米,面寬15米
占地:140平方米
推薦:10套新農村自建房設計圖,2026年最新設計
閱讀次數:4825737次
100套鄉村別墅圖片大全,2026年最新設計
閱讀次數:2492203次
6款農村蓋一層平房的設計圖,10萬元就能建起來
閱讀次數:1852637次
這11個一層農村自建房別墅火爆了朋友圈!我最喜歡戶型十!你呢
閱讀次數:750268次
農村6萬元建一層小別墅圖,你敢相信嗎
閱讀次數:567686次
農村5萬塊就能自建房,6套普通房子設計圖分享,你沒看錯!
閱讀次數:419410次
8套農村漂亮三間平房圖片,非常適合在農村修建!
閱讀次數:411197次
農村自建房化糞池怎么做?附方案及施工過程
閱讀次數:391783次
農村一層三間平房設計圖,告別土氣養老房,讓人忍不住點贊
閱讀次數:350581次
新農村二層樓房圖片造價12萬,挑一套回家建房吧!
閱讀次數:349126次
