
|
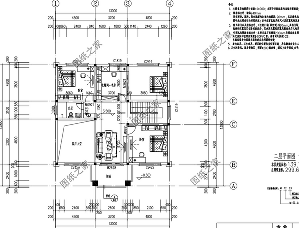
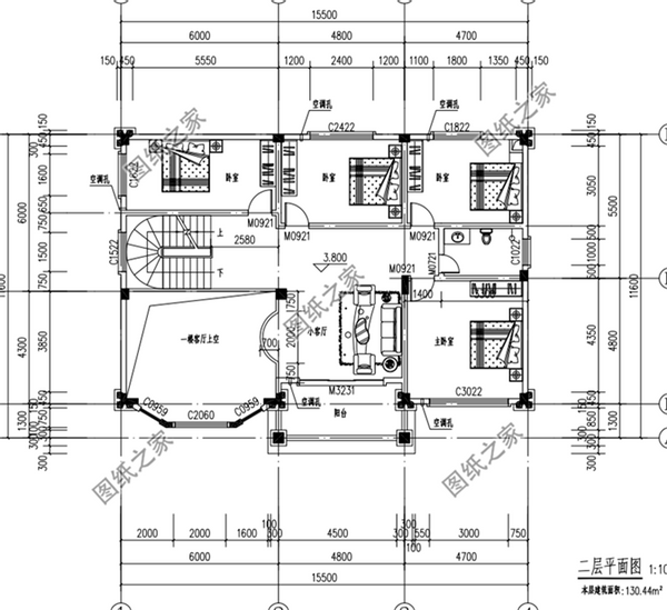
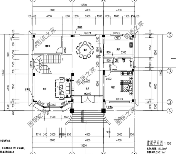
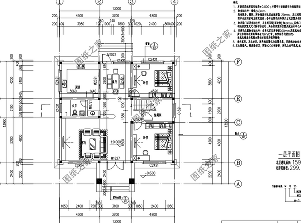
隨著城里的房價越來越貴,很多人都把目光投向了農村自建房,現在建房子要求不僅造價經濟,關鍵是更舒適美觀,功能也多,完全可以按照自己生活習慣來設計。今天推薦的這三款占地160平米左右二層樓房設計圖,戶型大氣布局合理,功能齊全,室內房間很多,不怕家里人多住不下了。 款式一:農村二層房屋設計圖,外觀漂亮,客廳中空設計圖紙介紹:本戶型占地160平米左右,外觀精致秀麗,客廳中空設計,室內布局合理,客廳挑空采光很好,還有幾個臥室設計,衛生間的配備也很充分,觀景陽臺也不缺少。 占地面積:15.5m*11.6m,160平方米左右; 建筑層高:三層 建筑高度:11.0米(含屋頂); 設計功能: 一層戶型:客廳、餐廳、廚房、衛生間、主臥、衛生間; 二層戶型:客廳上空、小客廳、臥室x4、衛生間、陽臺; ![]() ![]() ![]() ![]() 款式二:農村二層別墅設計圖,占地164平米左右,帶土灶房設計圖紙介紹:本戶型占地165平方米左右,新中式風格,戶型占地方正,時尚氣派。別墅每層都配有老人房,方便老人的生活起居,二層客廳連接陽臺,保障了室內的通風與采光,可以晾曬衣物。 占地面積:15.6m*11.1m,164平方米左右; 建筑層高:二層; 建筑高度:10.13米(含屋頂); 設計功能: 一層戶型:玄關、客廳、廚房+土灶房、餐廳、棋牌室、雜貨間、老人房、客房、衛生間x2; 二層戶型:客廳、書房、棋牌室、老人房、臥室x2、衛生間、陽臺、露臺; ![]() ![]() ![]() ![]() 款式三:農村二層自建別墅設計圖,占地160平米,客廳中空設計圖紙介紹:本戶型占地160平米左右,新中式風格,客廳中空設計,外觀大氣,配色明亮簡潔,非常現代化,造型精美獨特,室內布局合理,共有五間臥室,一家人住足夠了。 占地面積:13.0m*13.9m,160平方米左右; 建筑層高:二層; 建筑高度:10.17米(含屋頂); 設計功能: 一層戶型:客廳、餐廳、廚房、衛生間、臥室x2、儲藏間; 二層戶型:客廳上空、客廳、臥室x3、衣帽間、衛生間、陽臺; ![]() ![]() ![]() ![]() 不知道這三款別墅設計大家最喜歡哪一款呢?歡迎下方評論留言。
圖紙之家-專注農村別墅/自建房設計18年,集合國內200余位經驗豐富的設計師,被評為口碑最好的農村建筑設計公司! |

小戶型兄弟雙拼別墅房屋設計圖,帶外觀效果圖
占地:150平方米
最新網紅二層別墅,寬敞時尚沉穩大氣,布局實用正好滿足您的需
占地:110平方米
二層農村別墅新風尚,簡約實用,性價比高,美麗又實惠
占地:126平方米
巴洛克風格農村二層別墅設計圖(偏法式),對稱式設計,太講究
占地:210.25平方米
簡歐二層別墅設計圖紙含效果圖片,寶家鄉墅經典風格
占地:137.34平方米
新中式農村兄弟合建三層雙拼別墅全套設計圖紙,3款戶型方案
占地:多種戶型
一層農村必蓋戶型設計方案,養老自住兩相宜,經濟實惠又耐用!
占地:150.36平方米
時尚一層別墅圖,一層這樣蓋房最漂亮
占地:160平方米
新農村一層小別墅設計方案,四臥二廳耐看實用,方便打掃更便捷
占地:153.55平方米
13×16米農村自建樓房三層別墅戶型設計圖,大氣
占地:168平方米
面寬不到10米的小戶型自建房戶型圖,全套設計圖紙可施工
占地:123.2平方米左右
大氣自建三層雙拼別墅戶型圖方案,完美的戶型就是它
占地:287平方米
占地130平方米二層鄉村別墅自建房圖紙設計圖,效果圖好看
占地:131.658平方米
最新小別墅設計圖,復式三層,外觀非常漂亮
占地:158平方米
14x12.5米二層農村別墅設計圖,布局完美獨立,顏值高又實用
占地:153.95平方米
175平大客廳三層別墅房屋設計圖,含外觀造型現代,美觀
占地:175平方米
120平方米新農村二層自建房屋設計圖紙大全14x9米
占地:120平方米
面寬20多米二層新中式雙拼別墅設計圖,外觀漂亮時尚
占地:246.66平方米左
農村10萬元一層小別墅平房設計圖大全,含效果圖
占地:120平方米
占地105平實用三層樓房別墅設計圖紙,造型方正簡單大氣
占地:105平方米
推薦:10套新農村自建房設計圖,2026年最新設計
閱讀次數:4825737次
100套鄉村別墅圖片大全,2026年最新設計
閱讀次數:2492203次
6款農村蓋一層平房的設計圖,10萬元就能建起來
閱讀次數:1852637次
這11個一層農村自建房別墅火爆了朋友圈!我最喜歡戶型十!你呢
閱讀次數:750268次
農村6萬元建一層小別墅圖,你敢相信嗎
閱讀次數:567686次
農村5萬塊就能自建房,6套普通房子設計圖分享,你沒看錯!
閱讀次數:419410次
8套農村漂亮三間平房圖片,非常適合在農村修建!
閱讀次數:411197次
農村自建房化糞池怎么做?附方案及施工過程
閱讀次數:391783次
農村一層三間平房設計圖,告別土氣養老房,讓人忍不住點贊
閱讀次數:350581次
新農村二層樓房圖片造價12萬,挑一套回家建房吧!
閱讀次數:349126次
