
|
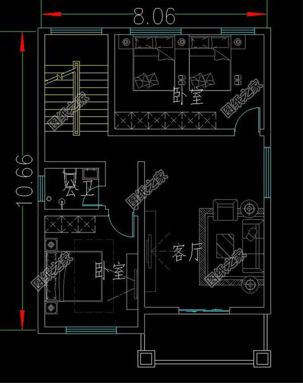
農村人要過好日子,這蓋房子也得要提上日程才行,家家戶戶蓋新房,一片水泥砂漿攪拌的聲音。以前咱們蓋房子一直都沒有什么設計之分,但是現在社會發展了,有很多戶型圖紙可以選擇,今天小編推薦四款農村自建房15到20萬左右,效果保證比其他村民的房子要好看。 第一款:100多平方米新農村二層房屋設計圖以及戶型圖,帶大露臺設計![]() ![]() ![]() 入戶門廳進入室內即為寬闊的大客廳,方便接待客人,餐廳與廚房相連,一起設在西北側,中間用推拉門隔開,減少油煙氣味對就餐的影響,提供業主更優渥的就餐環境,二層主要作為生活居住區,滿足一般家庭的人口居住條件 占地面積:10.76m*10m,102平方米左右; 建筑層高:二層; 建筑高度:8.69米(含屋頂); 設計功能: 一層戶型:客廳、廚房、餐廳、臥室x2、衛生間; 二層戶型:臥室(帶書房)、茶室、臥室x2、衛生間、露臺、陽臺 ![]() ![]() 第二款:帶開放式車庫二層農村自建別墅設計圖以及戶型圖,小戶型設計![]() 外觀非常的清新優雅,開放式的設計,又能作為休閑下午茶場所。二層還有層頂露臺,可以做個花架,有陽光的午后,可以在露臺上喝茶,休息。室內布局既合理又實用,空間布局緊湊實用,利用率很高。一層設計有兩間臥室,可供家里的老人居住,另設計有客廳、餐廳、廚房和衛生間;二層主要作為生活起居場所,設計有三間臥室,還有兩個屋頂露臺。 占地面積:12.2m*9.42m,89.412平方米左右; 建筑層高:二層; 建筑高度:10.037米(含屋頂); 設計功能: 一層戶型:客廳、廚房、餐廳、車庫、臥室x2、衛生間; 二層戶型:客廳、臥室x3、衛生間、陽臺x2、露臺 ![]() ![]() 第三款:新農村自建房三層別墅設計圖以及戶型圖,不錯的別墅方案![]() 粉色與白色涂料墻體,簡潔干練,沒有繁冗的裝飾。房間尺度設計適宜,空間利用率高,采用多窗設計,增加了室內的采光效果,營造出高品質的居住環境。又使用陽臺和柱相搭配,使這棟別墅美觀又吸睛。屋頂、露臺的高低變化勾勒出錯落有致的建筑形態,入戶堂屋,與餐廳之間有墻體隔開,防止開門見山;餐廳廚房相鄰,就餐方便。 占地面積:8.06m*10.66m,87.32平方米左右; 建筑層高:三層; 建筑高度:12.627米(含屋頂); 設計功能: 一層戶型:客廳(堂屋)、神龕、餐廳、廚房、臥室、衛生間; 二層戶型:客廳、臥室x2、衛生間、陽臺; 三層戶型:臥室x2、衛生間、露臺(帶涼亭 ![]() ![]() ![]() 第四款:農村三層兩開間小面寬別墅設計圖以及戶型圖,歐式風格![]() 外墻面裝飾用到黃色涂料,底部用到了咖啡色面磚,屋面處用藍色的瓦片鋪裝。迎面是一面隔斷墻,端正的堂屋對傳統農村百姓來說是必不可少的設計,是農村神龕和祖先神位的供放場所,餐廳與客廳之間無隔斷,空間更顯寬敞,超大的客廳社交區,上方做挑高設計。三樓南向的大露臺為室外休閑提供更多可能,放上一組戶外沙發,栽花種草、吃魚喝茶,好不愜意! 占地面積:8.25m*11.47m,94.61平方米左右; 建筑層高:三層; 建筑高度:12.448米(含屋頂); 設計功能: 一層戶型:堂屋、神位、客廳、餐廳、廚房、衛生間; 二層戶型:客廳挑空、小客廳、臥室(帶衛生間)、臥室、衛生間、陽臺; 三層戶型:臥室(帶書房、衣帽間、衛生間)、臥室(帶衛生間)、洗衣房、露臺 ![]() ![]() ![]() 今天介紹的15萬到20萬別墅設計圖以及戶型圖,就到這里了,二層和三層你家想建哪個?
圖紙之家-專注農村別墅/自建房設計18年,集合國內200余位經驗豐富的設計師,被評為口碑最好的農村建筑設計公司! |

平頂三層別墅設計方案,簡潔舒適大氣通透,12乘9米,打造理想住
占地:98.21平方米
150平米經典二層中式別墅設計圖 ,現代中式相結合
占地:154平方米左右
20萬以內二層歐式小別墅設計方案,全套施工圖+效果圖
占地:115平方米
2026年最新三層房屋設計圖紙,12米×11米,實用接地氣
占地:130平方米
鄉村二層別墅設計圖,含外觀效果圖,設計師推薦
占地:140平方米
簡單經濟一層自建養老房,12米乘9.5米,溫暖舒適施工簡單
占地:103.2平方米
帶地下室三間二層農村自建房設計圖,現代平屋頂設計
占地:99.98平方米
最新潮的90平方米三層房屋設計圖 ,古樸典雅又不失時尚
占地:90平方米
經濟實用二層樓房設計圖紙,功能布局多,12×11米
占地:130平方米
120平米三層30萬別墅圖片大全及全套施工圖,外觀簡潔大方
占地:120平方米
簡歐式三層小別墅設計圖,帶地下室,客廳中空,占地150平米
占地:150平方米
農村4開間二層別墅設計圖,帶堂屋帶露臺,進深9米
占地:126平方米左右
帶地下室設計三層自建房別墅設計圖,復式挑空客廳
占地:192平方米
一層自建別墅設計圖,占地70平不大功能很齊全,非常適合農村養
占地:69.61平方米
農村大氣四層樓房圖片及全套設計圖紙,復式客廳旋轉樓梯
占地:143平方米
簡單實用二層雙拼樓房設計圖,造價30萬左右
占地:180平方米
2026新款農村15萬元二層小樓圖,占地90平米左右
占地:多種戶型
140平方米歐式三層別墅建筑設計圖紙,復式結構
占地:140平方米
雅致的鄉下二層蓋別墅設計圖紙,造價35萬左右
占地:178平方米
農村60萬三層別墅新款式設計圖,外觀和實用性并駕齊驅
占地:170平方米
推薦:10套新農村自建房設計圖,2026年最新設計
閱讀次數:4825737次
100套鄉村別墅圖片大全,2026年最新設計
閱讀次數:2492203次
6款農村蓋一層平房的設計圖,10萬元就能建起來
閱讀次數:1852637次
這11個一層農村自建房別墅火爆了朋友圈!我最喜歡戶型十!你呢
閱讀次數:750268次
農村6萬元建一層小別墅圖,你敢相信嗎
閱讀次數:567686次
農村5萬塊就能自建房,6套普通房子設計圖分享,你沒看錯!
閱讀次數:419410次
8套農村漂亮三間平房圖片,非常適合在農村修建!
閱讀次數:411197次
農村自建房化糞池怎么做?附方案及施工過程
閱讀次數:391783次
農村一層三間平房設計圖,告別土氣養老房,讓人忍不住點贊
閱讀次數:350581次
新農村二層樓房圖片造價12萬,挑一套回家建房吧!
閱讀次數:349126次
