
|
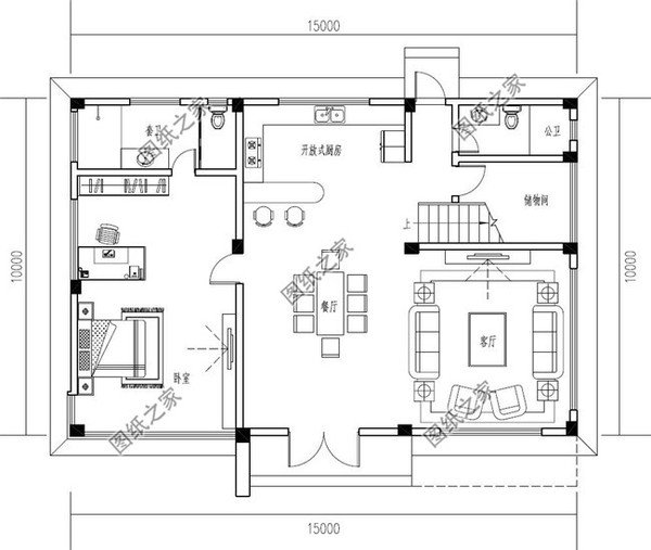
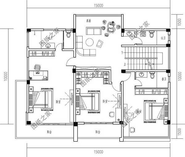
說起農村小別墅,浮現在腦海第一個的畫面,是不是二層的格局呢,畢竟對于農村來說,三四層太高,一層又太低,建個小二層是大多數家庭的選擇,但二層別墅樣式眾多,想脫穎而出,也不是那么容易的,所以,今天給大家帶來四款鄉下建房二層150平米戶型圖,可謂是美觀與實用并存,看看有沒有你喜歡的吧! 第一款:二層簡歐別墅設計圖以及戶型圖,挑空客廳加旋轉樓梯![]() 看過的人都說實用又氣派,經典的簡歐風格外觀,米黃色噴漆外墻搭配深色的坡屋頂,簡潔明了卻又深入人心。一層客廳是挑空的,配有旋轉樓梯,走進去就會感覺到很大氣,二層預留中間走廊空間,還有外觀景陽臺,有品位、懂生活的人最愛;是永不會過時的戶型了。 占地面積:16.16m*10.74m,154.699平方米; 建筑層高:二層; 建筑高度:9.971米(含屋頂); 設計功能: 一層戶型:客廳、廚房、餐廳、臥室x2、衛生間、洗衣間、儲藏室; 二層戶型:客廳上空、小客廳、臥室(帶衣帽間、衛生間)、臥室x2、衛生間、陽臺 ![]() ![]() 第二款:150平方米自建現代二層別墅設計圖以及戶型圖,平屋頂設計![]() ![]() ![]() 15x10米,這款超現代風格的別墅設計, 新型材料的運用,幾何形狀的設計,藝術裝飾的設計,別墅的上上下下無不充斥著現代、時尚的感覺。室內功能分區十分合理,二層是臥室作息區域,設有茶座,三間臥室緊緊相連,能很好的促進日常的交流和互動。還設有陽臺,能很好的滿足日常的需求,也能使室內有良好的采光和通風效果。 占地面積:15m*10m,150平方米左右; 建筑層高:二層; 建筑高度:10.2米(含屋頂); 設計功能: 一層戶型:客廳、廚房、餐廳、臥室(帶衛生間)、儲物間、衛生間; 二層戶型:茶座、臥室(帶衛生間)x2、臥室、衛生間、陽臺 ![]() ![]() 第三款:對稱時尚的農村二層別墅設計圖以及戶型圖,現代風格簡約的外觀![]() 舒服養眼,還獲得“農村最受歡迎”美名外觀造型對稱,米白色外墻,米白色護欄和方柱,清爽明朗。線條勾勒窗邊,新穎不單調。二層封閉陽臺,使得室內通透明亮,也增強了視覺效果,實用美觀。多窗設計不僅保障了室內通風和采光。鄉村獨特的簡單派! 占地面積:14.4m*12.4m,152.64平方米左右; 建筑層高:二層; 建筑高度:10.249米(含屋頂); 設計功能: 一層戶型:玄關、客廳、廚房、餐廳、臥室(帶衛生間)、臥室、衛生間; 二層戶型:起居室、健身區、臥室(帶衛生間)、臥室x2、衛生間、儲物間、陽臺 ![]() ![]() 第四款:農村時尚漂亮的二層小洋樓設計圖以及戶型圖,簡單歐式設計![]() 看了這么多歐式,這款最合眼。不管是室外室內都很實用,無論是用于養老還是給老人居住,都能夠駕馭得住。外觀清新淡雅從上至下采用暖色調搭配,顯得別墅更有立體感,更溫馨。底層采用褐色外墻磚,主立面采用米黃色外墻磚,灰色琉璃瓦,這三種材料、色調搭配在一起,既耐臟又耐看。 占地面積:13.8m*12.4m,149.27平方米; 建筑層高:二層; 建筑高度:9.88米(含屋頂); 設計功能: 一層戶型:玄關、客廳、廚房、餐廳、臥室x2、衛生間; 二層戶型:客廳、臥室x4、衛生間、露臺、陽臺; ![]() ![]() 以上就是小編推薦的農村二層150平別墅設計圖以及戶型圖,有喜歡的沒?評論區告訴我!
圖紙之家-專注農村別墅/自建房設計18年,集合國內200余位經驗豐富的設計師,被評為口碑最好的農村建筑設計公司! |

2026農村漂亮的一層平房圖片平面圖與全套施工圖紙,戶型周正
占地:150平方米
簡約精致的二層房子設計圖,農村自建經濟實用
占地:89.76平方米
二層雙拼別墅外觀效果圖及施工圖,帶露臺,14乘12米
占地:168平方米
農村三間兩層樓房設計圖,帶外觀效果圖
占地:140平方米
新中式一層別墅設計圖紙,農村自建平房戶型方案圖
占地:183.7平方
11x9三層別墅房屋設計圖,含效果圖片
占地:97平方米
180平高端歐式三層別墅圖紙設計,大戶型復式客廳
占地:182.016
簡單農村二層平屋頂房屋設計圖,外觀簡潔、大方
占地:200平方米
L“型”一層自建房小平層設計圖紙,180平方米
占地:179.355平方米
農村二層中式戶型設計圖,造型古香古色,建好絕對是地標
占地:245.39平方米
四間兩層實用簡約的住房設計圖,毛坯24萬,農村建正合適
占地:159.48平方米
農村別墅220-240平米的雙拼自建房設計圖,屋頂帶老虎窗
占地:220平方米
新農村二層房屋建筑施工圖紙,廚房獨立在配房
占地:107平方米
帶屋頂平臺的一層農村小別墅圖,有閣樓有露臺
占地:152平方米
共堂屋雙拼兩層小別墅設計圖,倆兄弟農村自建房首選
占地:198平方米
農村三層帶電梯小別墅設計施工圖,120平方米左右12.2x10.8米
占地:123平方米
好看又簡單的二層樓房設計圖紙,戶型還實用
占地:150平方米
大氣農村一層自建別墅方案,絕對讓人羨慕的“平房”
占地:158.39平方米
面寬15米一層四間現代風別墅,外觀漂亮布局實用,養老度假超巴
占地:180平方米
造價65萬左右的三層歐式別墅房屋設計施工CAD圖紙及效果圖
占地:178平方米
推薦:10套新農村自建房設計圖,2026年最新設計
閱讀次數:4825737次
100套鄉村別墅圖片大全,2026年最新設計
閱讀次數:2492203次
6款農村蓋一層平房的設計圖,10萬元就能建起來
閱讀次數:1852637次
這11個一層農村自建房別墅火爆了朋友圈!我最喜歡戶型十!你呢
閱讀次數:750268次
農村6萬元建一層小別墅圖,你敢相信嗎
閱讀次數:567686次
農村5萬塊就能自建房,6套普通房子設計圖分享,你沒看錯!
閱讀次數:419410次
8套農村漂亮三間平房圖片,非常適合在農村修建!
閱讀次數:411197次
農村自建房化糞池怎么做?附方案及施工過程
閱讀次數:391783次
農村一層三間平房設計圖,告別土氣養老房,讓人忍不住點贊
閱讀次數:350581次
新農村二層樓房圖片造價12萬,挑一套回家建房吧!
閱讀次數:349126次
