
|
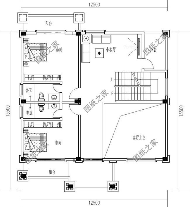
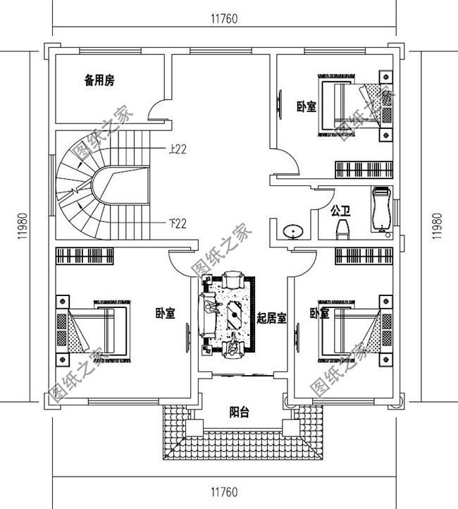
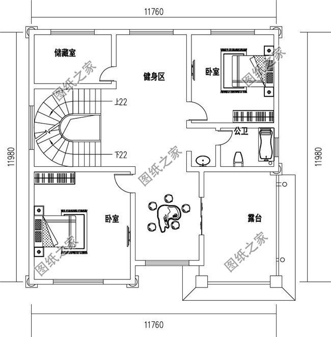
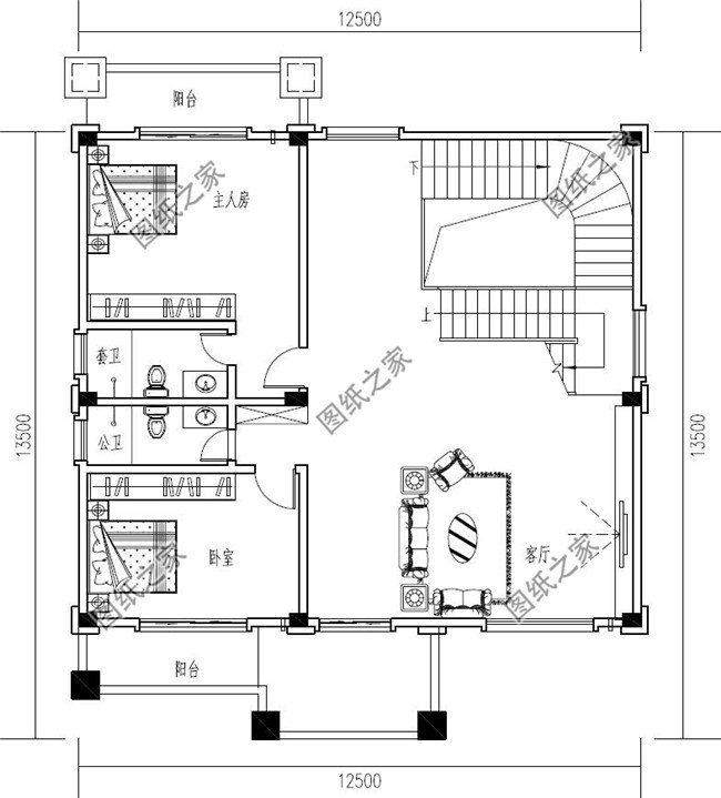
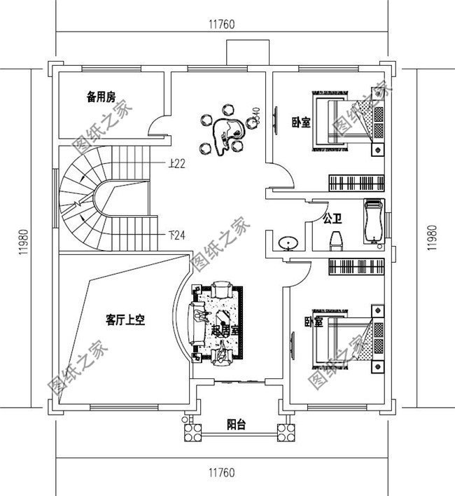
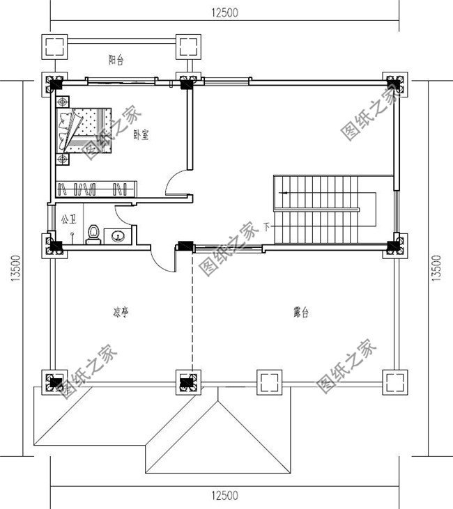
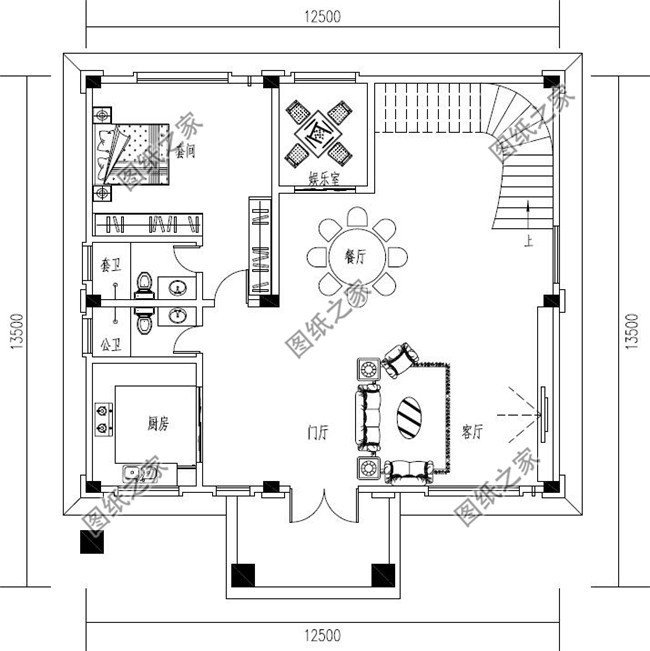
在繁鬧的大都市生活疲倦了,就想著回到清凈的農村享受更舒適,田園的生活,往往現在很多人都回到農村,起一棟自己想要的大房子,周末回鄉下放松放松,這已經成為了很多人生活的趨勢,我也非常向往這樣的生活啊。今天小編推薦三款農村自建四層別墅設計圖以及戶型圖,相信有你喜歡的。 第一款:鄉墅建房三層半別墅設計圖以及戶型圖,農村四層豪宅戶型![]() 這款戶型的墻面裝飾有用到少量的淺黃色文化石,還有大面積的米黃色真石漆裝飾,屋頂用磚紅色琉璃瓦,背面鑲嵌有多個窗戶,加強室內采光,窗戶之間可用浮雕裝飾,能加強美觀性。多邊形窗的使用,同樣能加強造型的立體感,且室內采光更好,大門處的門廳設計很重要,配以方形羅馬柱很大氣。屋面的俯瞰效果,同樣很讓人心動,尤其是搭配涼亭,效果更好。 占地面積:13m*15.8m,185.04平方米左右; 建筑層高:四層; 建筑高度:16.144米(含屋頂); 設計功能: 一層戶型:玄關、客廳、廚房、餐廳、茶室(棋牌室)、臥室(帶衣帽間)、衛生間; 二層戶型:客廳、書房、臥室(帶衛生間)、臥室x3、衛生間、陽臺; 三層戶型:客廳、書房、臥室(帶衛生間)、臥室x3、衛生間、陽臺; 四層戶型:書房、臥室x2、衛生間、露臺、涼亭 ![]() ![]() ![]() 第二款:農村大氣四層別墅設計圖以及戶型圖,外觀大氣![]() ![]() ![]() 簡歐風格干凈簡潔,米黃色的外墻搭配藍色屋頂,同色系色的窗套起到色彩呼應的作用,大落地窗的浮雕更是有設計感,左右兩面連通體窗戶和裝飾柱,更是增添了該戶型的大氣感。室內設有中空客廳、健身區以及休閑區等,正是符合新農村建房的標準。 占地面積:11.76m*11.98m,143平方米左右; 建筑層高:四層; 建筑高度:16.59米(含屋頂); 設計功能: 一層戶型:客廳、廚房、餐廳、臥室、儲藏室、衛生間; 二層戶型:客廳上空、起居室、休閑區、備用房、臥室x2、衛生間、陽臺; 三層戶型:起居室、備用房、臥室x3、衛生間、陽臺; 四層戶型:臥室x2、休閑區、儲藏室、健身區、衛生間、露臺 ![]() ![]() ![]() ![]() 第三款:新款四層歐式獨棟別墅設計圖以及戶型圖,帶露臺設計![]() ![]() ![]() 這款歐式風格的別墅,給人以雍容高貴之感,從內到外注重品質感的締造,建筑外立面上的拱形落地窗,以及多處陽臺等,不僅使得房屋造型更加豐富,同時也優化了居住感受,是一套適合大家庭居住的高品質別墅。 占地面積:12.5m*13.5m,138平方米左右; 建筑層高:四層; 建筑高度:16.43米(含屋頂); 設計功能: 一層戶型:門廳、客廳、廚房、餐廳、娛樂室、臥室(帶衛生間)、衛生間; 二層戶型:客廳、主人房(帶衛生間)、臥室、衛生間、陽臺; 三層戶型:客廳上空、小客廳、臥室(帶衛生間)x2、陽臺; 四層戶型:臥室、衛生間、涼亭、露臺; ![]() ![]() ![]() ![]() 以上就是小編推薦的農村自建四層別墅設計圖以及戶型圖,有喜歡的趕快收藏吧!
圖紙之家-專注農村別墅/自建房設計18年,集合國內200余位經驗豐富的設計師,被評為口碑最好的農村建筑設計公司! |

120平方米現代新農村二層自建房設計圖,造型時尚好看
占地:120平方米
農村四間二層別墅設計方案圖,外觀精致、時尚
占地:152平方米
田園風格別墅設計圖及外觀圖片,樓中樓結構
占地:140平方米
進深15米新農村三層房屋設計圖紙,農村住宅設計圖集
占地:128平方米
新款鄉村二層半別墅設計圖紙帶效果圖,三層別墅外觀圖片大全
占地:108.795平方米
50萬農村自建三間三層別墅設計圖,占地130平米左右
占地:135平方米
農村三層帶車庫、帶露臺別墅設計圖,經典自建別墅設計方案
占地:160平方米
農村最好看18萬左右兩層小樓圖,外觀、造型簡潔大方
占地:120平方米
115平旋轉樓梯三層復式別墅房屋設計圖,含外觀效果圖
占地:115平方米
經濟小戶型二層中式四合院(三合院)設計圖紙,帶堂屋和庭院
占地:143.544平方米
農村二層住宅樓房設計圖紙,全套方案(施工圖+效果圖)
占地:113平方米
面寬14米農村別墅二層別墅戶型設計,經濟實用
占地:107.1平方米
160平方米三層帶大露臺的復式別墅設計圖紙
占地:155平方米
歐式三層農村別墅設計圖,占地130平方米自建房,低調又奢華鄉村
占地:129.8平方米
新農村二層小別墅全套設計圖紙(含外觀效果圖)
占地:85.6平方米
135平方米新農村三層別墅設計圖紙,外觀效果圖很漂亮
占地:134平方米
二層小別墅外觀圖片,別墅圖紙,外觀時尚,布局簡單實用,挑空
占地:230平方米
12×12米農村二層經濟型自建房設計圖,設計了6間臥室
占地:140平方米
80平方米新農村二層房屋設計圖紙,造價15萬左右
占地:80平方米
帶車庫二層農村豪華別墅設計圖,主體25萬左右
占地:170平方米左右
推薦:10套新農村自建房設計圖,2026年最新設計
閱讀次數:4825737次
100套鄉村別墅圖片大全,2026年最新設計
閱讀次數:2492203次
6款農村蓋一層平房的設計圖,10萬元就能建起來
閱讀次數:1852637次
這11個一層農村自建房別墅火爆了朋友圈!我最喜歡戶型十!你呢
閱讀次數:750268次
農村6萬元建一層小別墅圖,你敢相信嗎
閱讀次數:567686次
農村5萬塊就能自建房,6套普通房子設計圖分享,你沒看錯!
閱讀次數:419410次
8套農村漂亮三間平房圖片,非常適合在農村修建!
閱讀次數:411197次
農村自建房化糞池怎么做?附方案及施工過程
閱讀次數:391783次
農村一層三間平房設計圖,告別土氣養老房,讓人忍不住點贊
閱讀次數:350581次
新農村二層樓房圖片造價12萬,挑一套回家建房吧!
閱讀次數:349126次
