
|
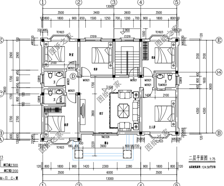
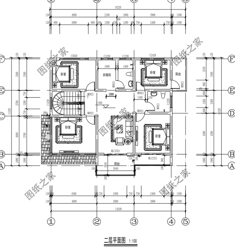
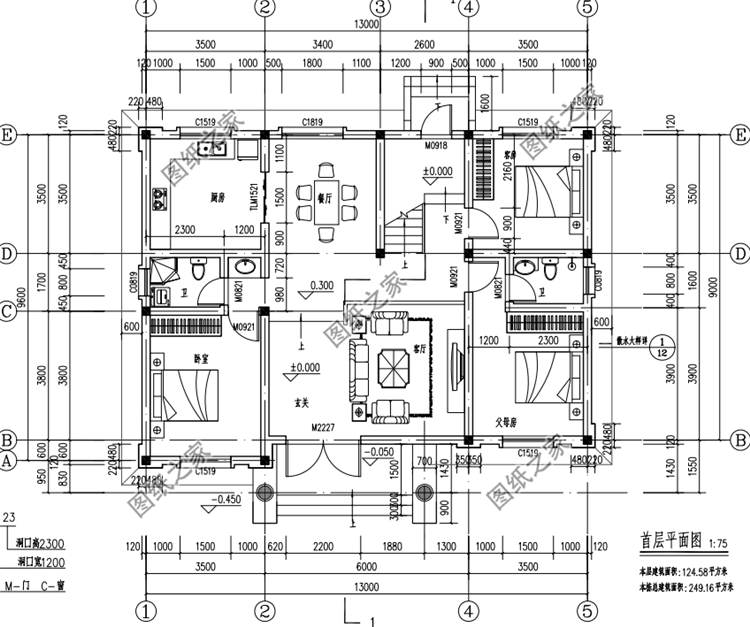
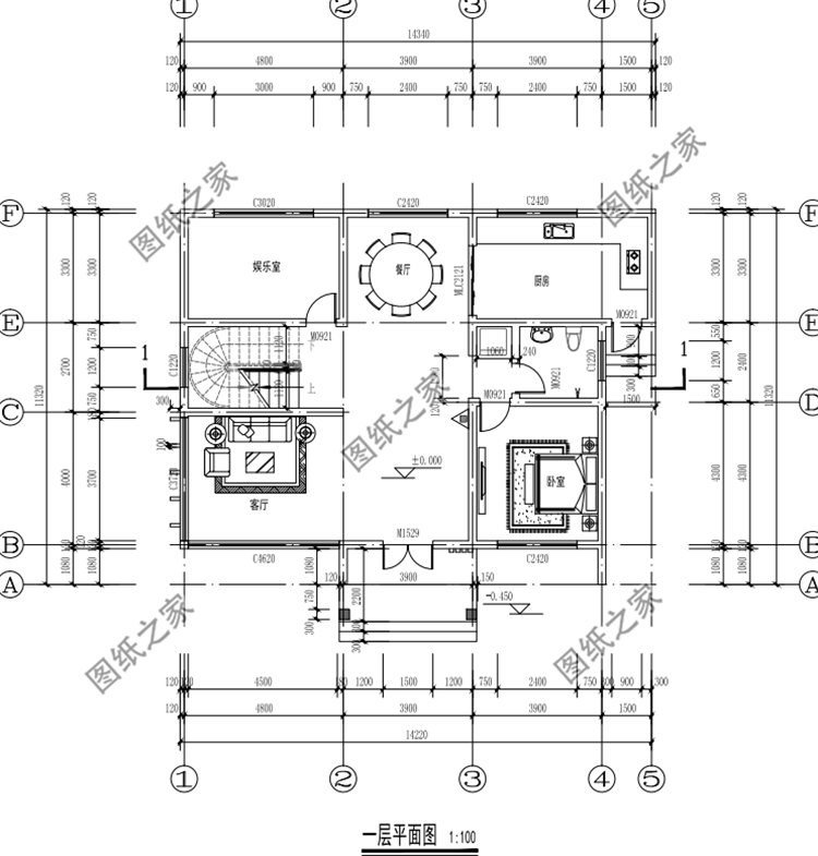
對于農村自建房的戶型選擇,其實只要根據自己的實際情況以及自己的需求設計就好了,住的舒心才最重要。今天小編就給大家分享三款好看又簡單的二層樓房設計圖,外觀好看,設計簡單,但是并不影響美觀,室內布局合理,非常符合農村人的生活習慣,各方面功能區分合理,建議收藏。 款式一:農村二層樓房設計圖,占地120平米左右,外觀時尚圖紙介紹:這款二層樓房占地120平米左右,外觀配色時尚,室內布局合理,共有八間臥室,非常的多,足夠一家人居住了。 占地面積:13.0m*9.0m,124平方米左右; 建筑層高:二層; 建筑高度:9.71米(含屋頂); 設計功能: 一 層:玄關、客廳、餐廳、廚房、臥室(帶衛生間)、臥室x2、衛生間; 二 層:客廳、臥室(帶衛生間)×2、臥室x3、衛生間、陽臺; ![]() ![]() ![]() ![]() 款式二:農村二層別墅設計圖,占地160平米,外觀精致漂亮圖紙介紹:這款二層別墅占地160平米左右,外觀精致漂亮,讓人看了就喜歡。室內布局合理,功能齊全,帶有娛樂室和衣帽室,符合農村建造。 占地面積:14.2m*11.3m,160平方米左右; 建筑層高:二層; 建筑高度:9.1米(含屋頂); 設計功能: 一層別墅戶型:客廳、餐廳、廚房、臥室、娛樂室、衛生間; 二層別墅戶型:起居室、臥室×4、衣帽間、衛生間×2、陽臺; ![]() ![]() ![]() ![]() 款式三:農村二層別墅設計圖,簡歐風格,外觀對稱設計圖紙介紹:本戶型占地174平米左右,面寬15米,簡歐風格,外觀采用對稱方式設計,舒服養眼。廚房、餐廳位于西北側,遠離客廳、臥室,干濕分明,易于日常打掃。二樓設有一廳三房,主要為居住區,3個臥室分散在三個角落,中南面的兩個房間和中間的客廳均帶有陽臺,保證室內空間采光更加充分。 占地面積:14.8m*11.8m,174.42平方米左右; 建筑層高:二層; 建筑高度:10.181米(含屋頂); 設計功能: 一層戶型:客廳、餐廳、儲藏室、廚房、臥室x2、臥室(帶衛生間)、衛生間; 二層戶型:客廳、臥室x3、臥室(帶衛生間)、衛生間、陽臺x3; ![]() ![]() ![]() 這三款戶型好看實用,戶型美觀,喜歡的朋友可以收藏。
圖紙之家-專注農村別墅/自建房設計18年,集合國內200余位經驗豐富的設計師,被評為口碑最好的農村建筑設計公司! |

徽派自建房一層設計圖,七字型設計,獨立餐廚便捷實用
占地:171.65平方米
簡約大氣四開間二層自建房設計圖,16x10米,經典耐看高顏值
占地:160平方米
超漂亮的二層別墅設計圖,外觀對稱設計,建好很大氣
占地:255平方米
農村20萬元二層小樓房設計圖,經典新農村自建房戶型
占地:120平方米
帶庭院的農村一層別墅圖紙設計,外觀時尚好看
占地:多戶型可選
150平方米農村二層房屋建筑設計圖,15.2x9.4米
占地:148平方米
二層復式樓房設計圖,平實接地氣的平面布局
占地:180平方米
經濟型實用歐式一層小樓房別墅平房設計圖,11X10米
占地:103平方米
經典四合院別墅設計圖,復式挑空客廳讓四合院更高端
占地:175平方米左右
鄉村中式四合院二層別墅設計圖,中式韻味十足
占地:223平方米左右
大平方大面積別墅設計方案圖,樓中樓客廳中空
占地:247平方米
農村五間房子設計圖,大戶型別墅設計圖推薦
占地:240平方米
120平帶車庫二層農村別墅施工圖,簡約時尚的外觀
占地:119.13平方米
一二層都帶廚房餐廳的獨棟二層別墅設計圖,帶雙廚房
占地:143.68平方米
帶大套間新農村二層別墅自建房設計圖紙帶效果圖
占地:185平方米
簡單漂亮實用的三層自建房設計圖,帶露臺,占地170平方米
占地:170平方米
農村15萬元二層小樓設計圖,外觀簡潔、樸素,造價低
占地:138平方米
帶地下室的一層別墅設計圖,農村自建很實用
占地:192平方米
開間14米!農村養老一層別墅神戶型,爸媽住得安心,施工隊狂贊太
占地:160.86平方米
二層復式農村別墅設計圖,進深12米,戶型堪稱完美
占地:193.2平方米
推薦:10套新農村自建房設計圖,2026年最新設計
閱讀次數:4825737次
100套鄉村別墅圖片大全,2026年最新設計
閱讀次數:2492203次
6款農村蓋一層平房的設計圖,10萬元就能建起來
閱讀次數:1852637次
這11個一層農村自建房別墅火爆了朋友圈!我最喜歡戶型十!你呢
閱讀次數:750268次
農村6萬元建一層小別墅圖,你敢相信嗎
閱讀次數:567686次
農村5萬塊就能自建房,6套普通房子設計圖分享,你沒看錯!
閱讀次數:419410次
8套農村漂亮三間平房圖片,非常適合在農村修建!
閱讀次數:411197次
農村自建房化糞池怎么做?附方案及施工過程
閱讀次數:391783次
農村一層三間平房設計圖,告別土氣養老房,讓人忍不住點贊
閱讀次數:350581次
新農村二層樓房圖片造價12萬,挑一套回家建房吧!
閱讀次數:349126次
