
|
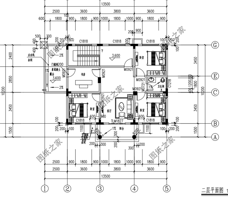
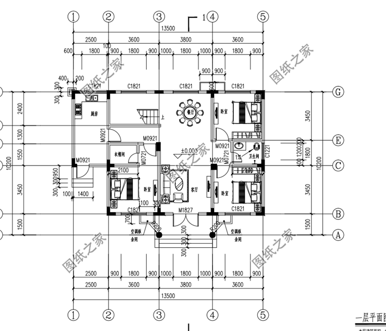
建房子是人生大事,所以準備工作一定要做好,房子一定要設計好,這樣建好之后才不會留下遺憾。其實建房子除了外觀看上去美觀,住起來一定要舒適合理。今天推薦的這三款二層自建房設計圖,占地雖然還沒有超過120平米,但是室內布局一點不緊湊,布局非常合理,一家人住足夠了。 戶型一:農村二層樓房設計圖,占地102平米,主體造價不到20萬圖紙介紹:本戶型占地102平方米左右,一樓進入室內就是寬闊的大客廳,方便接待客人,餐廳與廚房相連,一起設在西北側,中間用推拉門隔開,減少油煙氣味對就餐的影響,提供業主更優渥的就餐環境,二層主要作為生活居住區,滿足一般家庭的人口居住條件。 占地面積:10.76m*10m,102平方米左右; 建筑層高:二層; 建筑高度:8.69米(含屋頂); 設計功能: 一層戶型:客廳、廚房、餐廳、臥室x2、衛生間; 二層戶型:臥室(帶書房)、茶室、臥室x2、衛生間、露臺、陽臺; ![]() ![]() ![]() ![]() 戶型二:農村小戶型二層別墅設計圖,占地不到100平米,旋轉樓梯設計圖紙介紹:本戶型占地不到100平米,外觀簡單精致,小戶型設計,還帶旋轉樓梯!帶超大落地窗美觀且實用,使室內客廳顯得更加寬敞明亮,是現代年輕人的喜愛;二層四間臥室,足夠滿足一家人的住房需求,該戶型功能設計合理,布局緊湊,實用性較強,住房體驗佳,非常適合農村自建房。 占地面積:10.6m*10.8m,97.08平方米左右; 建筑層高:二層; 建筑高度:9.3米(含屋頂); 設計功能: 一層戶型:客廳、神位、棋牌室、臥室x2、衛生間; 二層戶型:起居室、臥室x4、衛生間、陽臺; ![]() ![]() ![]() 戶型三:農村二層樓房設計圖,占地110平米左右,外觀簡單時尚圖紙介紹:這款二層樓房設計占地110平米左右,外觀簡單時尚,非常大氣,黃色外墻裝飾深淺有度,搭配協調有質感,小樓二層的陽臺可以親近大自然。 占地面積:13.5m*10.2m,110平方米左右; 建筑層高:二層; 建筑高度:9.77米(含屋頂); 設計功能: 一層戶型:客廳、餐廳、廚房、衛生間、主臥(帶衣帽間)、臥室×2; 二層戶型:客廳、、臥室x3、書房、衛生間、陽臺、露臺; ![]() ![]() ![]() ![]() 這三款戶型大氣簡約,不知道大家最喜歡哪一款呢?歡迎下方評論留言。
圖紙之家-專注農村別墅/自建房設計18年,集合國內200余位經驗豐富的設計師,被評為口碑最好的農村建筑設計公司! |

簡簡單單一層農村自建別墅方案,布局緊湊又不擁擠
占地:133.55平方米
180平方別墅房屋設計圖,外觀效果圖美觀
占地:180平方米
簡歐式三層小別墅設計圖,帶地下室,客廳中空,占地150平米
占地:150平方米
140平四層復式別墅房屋設計圖,帶外觀效果圖
占地:140平方米
210平方米新農村三層雙拼全套別墅設計圖紙帶效果圖
占地:207.25平方米
新農村三層自建樓房設計圖,帶大露臺,外觀大氣
占地:136平方米
20萬農村自建三層別墅設計圖,外觀美觀,戶型實用
占地:105平方米
農村二層樓簡單大氣的樓房設計圖紙,帶車庫,帶露臺
占地:150平方米
鄉村三層別墅設計圖紙,帶屋頂花園(含效果圖)
占地:150平方米
2026最好看的農村三層樓房圖片及施工圖紙,客廳寬敞
占地:120平方米
150平方米大平層別墅設計圖,時尚大氣舒適實用
占地:149.43平方米
7字型一層半農村別墅設計圖,美觀舒適,買了別墅的都會羨慕你
占地:229.14平方米
農村10萬自建一層平房設計圖,占地面積120平米
占地:120平方米
簡單二層農村別墅設計圖,占地適中,簡約造型,實用又經濟!
占地:128.4平方米
農村三層別墅新款圖片及戶型設計圖紙大全,110平簡歐風格
占地:110平方米左右
農村二層半別墅設計圖,簡單實用,造價低
占地:140平方米
210平米新農村自建二層施工圖紙,預留電梯位,美觀大氣舒適實用
占地:208.5平方米
200平方農村三層別墅房屋設計圖及效果圖,大戶型精選
占地:200平方米
農村自建二層樓房設計圖及效果圖,二層房屋圖推薦
占地:105平方米
農村二層半兄弟共建房別墅設計圖,復式戶型帶車庫,面寬24米
占地:312平方米左右
推薦:10套新農村自建房設計圖,2026年最新設計
閱讀次數:4825737次
100套鄉村別墅圖片大全,2026年最新設計
閱讀次數:2492203次
6款農村蓋一層平房的設計圖,10萬元就能建起來
閱讀次數:1852637次
這11個一層農村自建房別墅火爆了朋友圈!我最喜歡戶型十!你呢
閱讀次數:750268次
農村6萬元建一層小別墅圖,你敢相信嗎
閱讀次數:567686次
農村5萬塊就能自建房,6套普通房子設計圖分享,你沒看錯!
閱讀次數:419410次
8套農村漂亮三間平房圖片,非常適合在農村修建!
閱讀次數:411197次
農村自建房化糞池怎么做?附方案及施工過程
閱讀次數:391783次
農村一層三間平房設計圖,告別土氣養老房,讓人忍不住點贊
閱讀次數:350581次
新農村二層樓房圖片造價12萬,挑一套回家建房吧!
閱讀次數:349126次
