
|
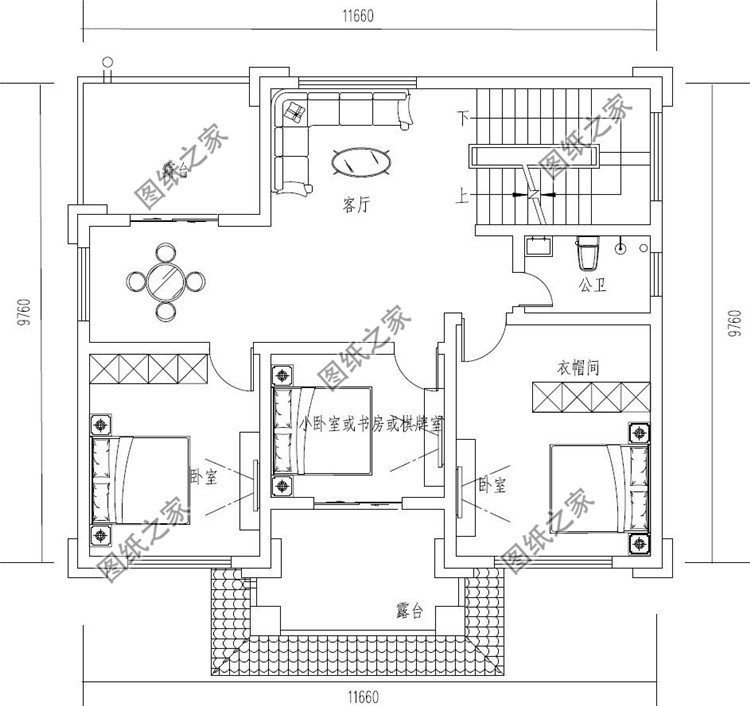
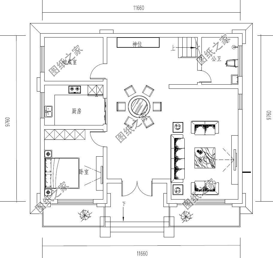
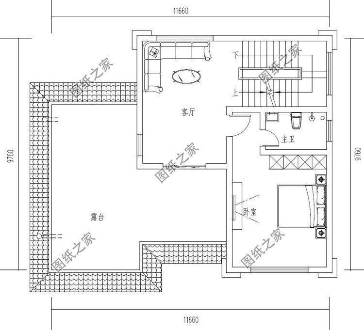
農村宅基地開間12米,想建別墅,如何讓自己的自建別墅看起來更加高端大氣好看實用呢?今天為大家整理了一組共五款開間12米左右,進深9米左右的新農村自建別墅,一到三層都有,外形簡約,越看越耐看,布局巧妙,全家人住非常舒適,無論是外形上還是內部空間的功能上,都彰顯出了獨特的魅力。 第一款:105平一層簡單農村別墅設計圖以及戶型圖,造價8萬左右![]() 外觀色彩采用藍色調,舒爽而沉靜。純凈的藍色屋面瓦,仿佛與天空連接在一起。墻面米黃色的文化磚,質樸天然,搭配上素色的凸窗、立柱,更顯清新素雅。戶型室內將客廳、餐廳、廚房連通設計,更顯寬敞通暢。共設4個臥室,足以滿足使用需求。再結合精致的老虎窗,整體外觀顯得小巧精致。 占地面積:11.26m*9.28m,104.951平方米左右; 建筑層高:一層; 建筑高度:6.13米(含屋頂); 設計功能: 一層戶型:客廳、廚房、餐廳、臥室x4、衛生間x2 ![]() 第二款:一層平屋頂自建房設計圖以及戶型圖,簡單而舒適![]() 既省錢不說還不愁沒地曬糧食,現代風格,簡單的外觀彰顯個性。超實用的室內布局,不浪費一點面積。室外樓梯的設計既節省室內空間又方便上下屋頂想必在農村蓋一套這樣的房子出來,一定會引來不少人圍觀。平屋頂造型簡單、施工方便、造價較低,不僅可以用來觀景還能晾曬糧食,對于農村來說非常實用。 占地面積:12.76m*8.96m,106平方米左右; 建筑層高:一層; 建筑高度:7.374米(含屋頂); 設計功能: 一層戶型:客廳、廚房、餐廳、臥室x3、衛生間 ![]() 第三款:帶開放式車庫二層農村自建別墅設計圖以及戶型圖,小戶型設計,造價僅15萬!![]() 外觀非常的清新優雅,開放式的設計,又能作為休閑下午茶場所。二層還有屋頂露臺,可以做個花架,有陽光的午后,可以在露臺上喝茶,休息。室內布局既合理又實用,空間布局緊湊實用,利用率很高。一層設計有兩間臥室,可供家里的老人居住,另設計有客廳、餐廳、廚房和衛生間;二層主要作為生活起居場所,設計有三間臥室,還有兩個屋頂露臺。 占地面積:12.2m*9.42m,89.412平方米左右; 建筑層高:二層; 建筑高度:10.037米(含屋頂); 設計功能: 一層戶型:客廳、廚房、餐廳、車庫、臥室x2、衛生間; 二層戶型:客廳、臥室x3、衛生間、陽臺x2、露臺 ![]() ![]() 第四款:新款鄉村二層半帶露臺別墅設計圖以及戶型圖,外觀清新靚麗![]() ![]() ![]() 線條明朗,典型的歐式外觀,占地方正,采用紅色坡屋頂,給人溫暖的感覺,象征日子越過越有錢! 占地面積:11.32m*9.52m,108.795平方米; 建筑層高:三層; 建筑高度:12.303米(含屋頂); 設計功能: 一層戶型:客廳、餐廳、廚房、臥室x2、衛生間; 二層戶型:休閑娛樂室、小書房、、臥室x4、衛生間、陽臺; 三層戶型:臥室x2、衛生間、露臺; ![]() ![]() ![]() 第五款:114平方米三層新中式別墅設計圖以及戶型圖,典雅耐看,永不過時![]() 外觀采用淡黃色石材搭配咖啡色的外墻漆,色調溫馨,具有家的歸屬感。整體造型非常具有層次感,色彩搭配沉穩大氣內斂優雅,別墅帶有大露臺,可作為晾曬區,還可提供足夠的的戶外休閑場地。 占地面積:11.66m*9.76m,114.8平方米左右; 建筑層高:三層; 建筑高度:12.16米(含屋頂); 設計功能: 一層戶型:客廳、餐廳、廚房、衛生間、臥室、儲藏室、帶神位; 二層戶型:客廳、臥室、臥室(帶衣帽間)、空間自定義區域、衛生間、露臺; 三層戶型:客廳、臥室(帶衛生間)、露臺 ![]() ![]() ![]() 以上就是小編推薦的12×9米農村別墅設計圖以及戶型圖,有喜歡的記得收藏!
圖紙之家-專注農村別墅/自建房設計18年,集合國內200余位經驗豐富的設計師,被評為口碑最好的農村建筑設計公司! |

雙拼二層大別墅設計圖,大面寬小進深,讓兄弟永遠不分家
占地:207.15平方米
全網都在抄的二層別墅!爆款12米面寬設計戶型太實用
占地:139.51平方米
12.8乘10米一層平房別墅設計圖,四室二廳南北通透
占地:128.85平方米
面寬20多米二層新中式雙拼別墅設計圖,外觀漂亮時尚
占地:246.66平方米左
帶車庫三層自建別墅設計圖紙,客廳中空,外觀洋氣時尚,這款戶
占地:170平方米
3層20萬農村自建房設計圖,占地110平米
占地:110平方米
新農村住宅設計圖紙含效果圖,方方正正的別墅方案
占地:134平方米左右
135平鄉村三層復式樓房設計圖,自建房推薦
占地:135平方米
170平方米歐式農村兩層小別墅設計圖紙帶外觀圖,精致好看
占地:多種戶型
簡約實用農村自建房戶型圖,美觀經濟又通透,南北通透住得爽!
占地:160.6平方米
新中式農村三層樓房設計圖紙,全套圖紙設計,線條錯落有致
占地:130平方米
二層別墅設計圖紙及效果圖,占地200平米,外觀精致優雅,小有情
占地:200平方米
歐式三層雙拼別墅設計圖,精致大氣布局實用,兄弟建房上上之選
占地:234平方米
16米乘12米農村二層別墅設計圖,布局舒適寬敞、客廳挑空
占地:188.18平方米
8.5×12米四層歐式房屋設計圖紙,占地100平,落地窗中嵌入了雕花
占地:100平方米
開間8米的小戶型二層別墅設計圖,2開間占地不到60平
占地:56平方米左右
西班牙風格農村二層樓房設計圖及效果圖,實用美觀
占地:170平方米
2026年新款二層半農村自建小別墅設計圖紙,占地150平方米
占地:150平方米
簡單農村二層自建房子設計圖,主體18萬就能建好,太心動了!
占地:124.53
140平中式徽派一層別墅設計圖,一層照樣建這樣漂亮
占地:140平方米
推薦:10套新農村自建房設計圖,2026年最新設計
閱讀次數:4825737次
100套鄉村別墅圖片大全,2026年最新設計
閱讀次數:2492203次
6款農村蓋一層平房的設計圖,10萬元就能建起來
閱讀次數:1852637次
這11個一層農村自建房別墅火爆了朋友圈!我最喜歡戶型十!你呢
閱讀次數:750268次
農村6萬元建一層小別墅圖,你敢相信嗎
閱讀次數:567686次
農村5萬塊就能自建房,6套普通房子設計圖分享,你沒看錯!
閱讀次數:419410次
8套農村漂亮三間平房圖片,非常適合在農村修建!
閱讀次數:411197次
農村自建房化糞池怎么做?附方案及施工過程
閱讀次數:391783次
農村一層三間平房設計圖,告別土氣養老房,讓人忍不住點贊
閱讀次數:350581次
新農村二層樓房圖片造價12萬,挑一套回家建房吧!
閱讀次數:349126次
