
|
有人說在農村蓋棟樓房真得很便宜而且還有永久產權,比起累死累活在城里還買不起一套房,自建房簡直太劃算了。今天給大家帶來三款農村新款二層樓房設計圖,其中第二套可是最近超流行的網紅款式,外觀簡約時尚,布局合理,如果家里有建房需求的朋友可以參考這三款戶型。 款式一:農村二層別墅設計圖,超現代風格,極簡大氣圖紙介紹:本戶型占地184平米左右,超實用現代風格別墅,外觀純粹極簡,上上下下無不充斥著現代、時尚的感覺。布局精巧,南北通透,方便家人生活起居。 ![]() ![]() ![]() 款式二:農村二層自建房設計圖,占地140平米,戶型清新別致圖紙介紹:本戶型占地140平方米,戶型清新別致,別墅為現代簡約風格,外觀線條流暢而又別致,冷色調的配色經典、沉穩,室內裝修可以采用暖色調,布置出來,溫馨又有活力,設計合理人性化,空間規劃合理開闊,功能齊全,溫馨舒適,是家庭的必備選擇 占地面積:11.8m*12.8m,140平方米左右; 建筑層高:二層; 建筑高度:9.59米(含屋頂); 設計功能: 一層戶型:門廳、玄關、客廳、娛樂室、廚房、餐廳、儲藏室、臥室(帶衛生間)、衛生間; 二層戶型:起居室、臥室(帶衛生間)、臥室(帶衣帽間書房衛生間)、臥室x2、衛生間、陽臺; ![]() ![]() ![]() ![]() 款式三:農村二層自建別墅設計圖,占地170平方米,豪華歐式風格圖紙介紹:這款二層別墅占地170平米,歐式風格豪華大氣,帶車庫設計,外觀沉穩內斂,戶型簡單大氣,卻一點也不會讓人覺得單調乏味,灰藍色坡屋頂線條流暢,一層凸窗尤為別致,色彩搭配合理,車庫獨立設計,是適合農村建房的好戶型。 占地面積:12.90m*13.50m,170平方米左右; 建筑層高:二層; 建筑高度:9.54米(含屋頂); 設計功能: 一層戶型:客廳、餐廳、廚房 、儲藏室、主臥(帶衛生間)、衛生間、車庫; 二層戶型:起居室、臥室(帶衛生間)、臥室x3、衛生間、露臺、陽臺; ![]() ![]() ![]() ![]() 不知道這三款戶型大家最喜歡哪一款?歡迎下方評論留言。
圖紙之家-專注農村別墅/自建房設計18年,集合國內200余位經驗豐富的設計師,被評為口碑最好的農村建筑設計公司! |

面寬20米四開間二層別墅,火爆全村的戶型,美好生活的起點
占地:245.73平方米
180平方米農村二層別墅四合院建筑設計圖紙
占地:181平方米
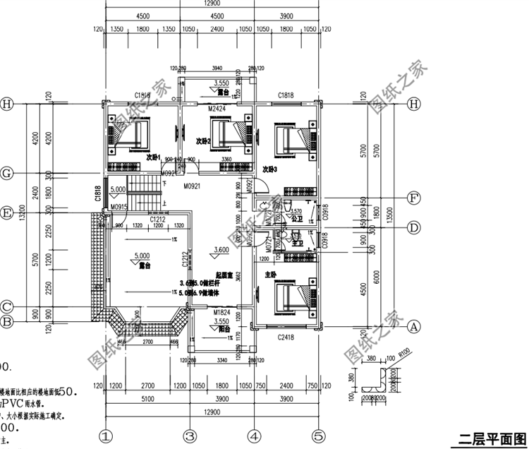
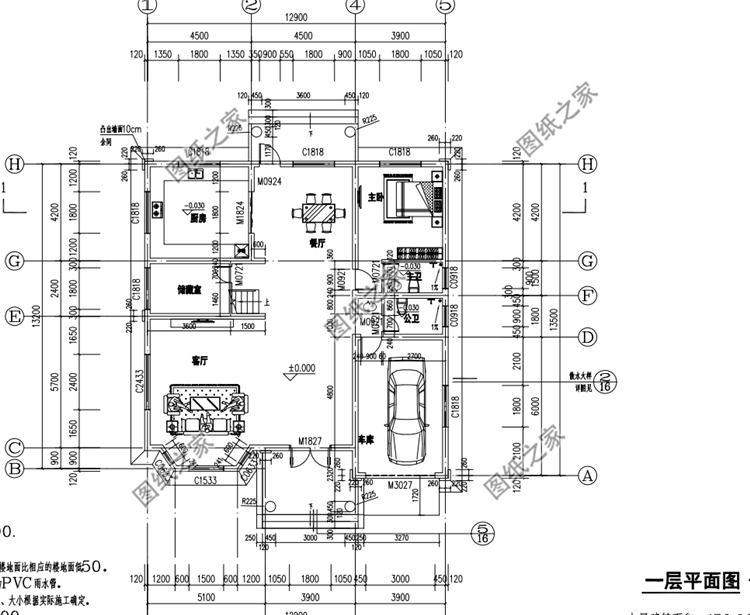
170平方米歐式農村兩層小別墅設計圖紙帶外觀圖,精致好看
占地:多種戶型
鄉下三層大氣房子設計圖,外觀挺高大上的,主體29萬多
占地:132.48平方米
帶車庫三層自建別墅設計圖紙,客廳中空,外觀洋氣時尚,這款戶
占地:170平方米
漂亮實用的新農村二層小樓圖,造價20萬左右,超大景觀露臺
占地:130平方米
挑空客廳戶型歐式二層別墅設計圖紙,高端大氣帶車庫
占地:236.09平方米
三層新中式別墅建筑設計圖紙及圖片,11.66m*9.76m,典雅耐看
占地:114平方米
130平方米別墅設計圖紙(含外觀效果圖,)三層別墅設計方案
占地:135平方米
簡歐式三層半(4層)農村自建房別墅設計圖效果圖,帶車庫戶型
占地:127平方米
簡歐風格二層別墅設計圖,經典不過時大氣時尚,漂亮的不像話!
占地:205.68平方米
130平新農村二層住宅設計圖,外觀精致、漂亮
占地:130平方米
15×12米一層農村寶藏戶型,適合養老房,看完鄰居直接要圖紙!
占地:180平方米
中式一層仿古自建平房設計圖,灰墻青瓦,外觀古香古色
占地:168.48平方米
帶架空層車庫/地下室自建一層別墅設計圖,隔潮又能儲物
占地:91.32平方米
回農村建養老房,還是一層平頂戶型最合適,不單單只是省錢
占地:102.24平方米
實用型二層別墅設計方案,占地120平米簡單大方最耐看
占地:120平方米
闊氣高端的三層別墅設計圖,亮得恰到好處,永遠也住不膩
占地:160平方米
2026新款農村三層雙拼自建房設計圖,占地150平米左右
占地:150平方米
四層復式別墅設計方案,外觀氣派布局實用,舒適宜居美極了!
占地:204.64平方米
推薦:10套新農村自建房設計圖,2026年最新設計
閱讀次數:4825737次
100套鄉村別墅圖片大全,2026年最新設計
閱讀次數:2492203次
6款農村蓋一層平房的設計圖,10萬元就能建起來
閱讀次數:1852637次
這11個一層農村自建房別墅火爆了朋友圈!我最喜歡戶型十!你呢
閱讀次數:750268次
農村6萬元建一層小別墅圖,你敢相信嗎
閱讀次數:567686次
農村5萬塊就能自建房,6套普通房子設計圖分享,你沒看錯!
閱讀次數:419410次
8套農村漂亮三間平房圖片,非常適合在農村修建!
閱讀次數:411197次
農村自建房化糞池怎么做?附方案及施工過程
閱讀次數:391783次
農村一層三間平房設計圖,告別土氣養老房,讓人忍不住點贊
閱讀次數:350581次
新農村二層樓房圖片造價12萬,挑一套回家建房吧!
閱讀次數:349126次
