
|
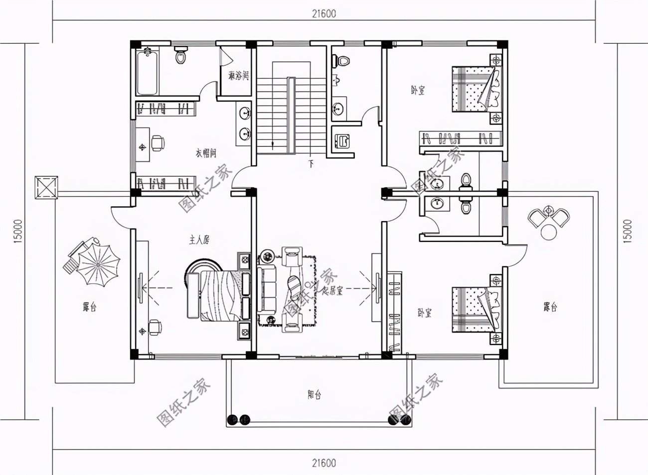
如今在城市還是農村,汽車基本上家家戶戶都有,所有很多建房子都會考慮是否要單獨建一個入戶車庫。因為在北方冬季天氣比較寒冷,大冬天車子就需要停放在車庫內;而南方雨水多,有個入戶車庫也更加方便。今天分享的這三款款帶車庫的別墅,風格也是歐式和新中式全含,希望有一款是你喜歡的。 第一款:230平方米豪華歐式二層別墅設計圖以及戶型圖,大開間戶型,帶車庫設計![]() ![]() ![]() 外觀配色采用最淡雅的米白色,讓別墅更加讓人眼前一亮,與低調的深灰色坡屋頂,相得益彰,讓整棟別墅變的更加典雅 占地面積:21.6m*15m,236平方米左右; 建筑層高:二層; 建筑高度:9.8米(含屋頂); 設計功能: 一層戶型:客廳、廚房、餐廳、臥室(帶衛生間)x2、儲物間、衛生間、車庫; 二層戶型:起居室、臥室(帶衛生間)x2、臥室(帶衣帽間衛生間)、衛生間、陽臺、露臺 ![]() ![]() 第二款:面寬14米簡歐溫馨兩層小別墅設計圖以及戶型圖,帶車庫戶型![]() 14米×12米,老虎窗設計很亮眼。這款二層農村別墅外墻采用文化石和真石漆搭配,美觀又有內涵,非常有品位。戶型小,造價低,在農村建造它非常實用不浪費。一層設有車庫,設置了南向采光的老人房,客廳和餐廳也采用了南向采光,二層設有3個臥室,還設有大露臺和陽臺,更具有實用性。 占地面積:14m*12m,173.28平方米左右; 建筑層高:二層; 建筑高度:10.725米(含屋頂); 設計功能: 一層戶型:客廳、廚房、餐廳、臥室(帶娛樂室)、車庫、衛生間; 二層戶型:客廳、娛樂室、臥室(帶書房)、臥室x2、衛生間、露臺、陽臺 ![]() ![]() 第三款:新農村帶車庫的二層小別墅設計圖以及戶型圖,造價29萬![]() 帶鍋爐房(或儲藏間),清新淡雅,空間利用率高!經典的歐式風格,淺灰色真石漆與紅色坡屋頂的結合,不易過時,外觀線條流暢,色彩清新淡雅,盡顯優雅大方,非常適合居住。門口的方柱搭建起的門廊空間,襯托出沉穩莊重的大家風范,陽臺和羅馬柱相搭配,不僅加強了設計感,使得室內采光通風更上一層,足不出戶也可盡攬鄉村風光。搭配精致落地窗,給房子增添了不少豪氣感。餐廳客廳之間設有間隔,保證了房間整體的空氣清新。側面設獨立車庫,空間開闊,停車便利。二層客廳連著陽臺通風效果好;大露臺設置在房屋整體的東部,可以用于冬季晾曬谷物以及腌魚腌肉。 占地面積:16.36m*11.05m,168.73平方米左右; 建筑層高:二層; 建筑高度:9.499米(含屋頂); 設計功能: 一層戶型:客廳、鍋爐房、餐廳、廚房、臥室x2、衛生間、車庫; 二層戶型:客廳、娛樂室、臥室x4、衛生間、陽臺、露臺 ![]() ![]() 以上就是小編推薦的農村二層帶車庫的別墅設計圖以及戶型圖,有沒有喜歡的?
圖紙之家-專注農村別墅/自建房設計18年,集合國內200余位經驗豐富的設計師,被評為口碑最好的農村建筑設計公司! |

帶架空層的兩層別墅設計圖,通透又明亮,建在農村絕對有面子
占地:106.79平方米
農村15萬元一層半小樓圖,最新的戶型設計
占地:182.31平方米
被包工頭夸爆的二層別墅戶型!建好未來幾年必火
占地:189.98平方米
新農村簡歐三層樓房圖片自建3層別墅施工設計圖及效果圖
占地:126平方米
農村二層別墅優選設計圖,戶型小巧精致,顏值與實用并存!
占地:95.25平方米
豪華別墅設計圖紙(含效果圖),三層歐式別墅方案精選
占地:117平方米
村里蓋房圖紙大廳挑空的三層別墅設計圖,面寬不到10米
占地:122.4平方米
120平米三層30萬別墅圖片大全及全套施工圖,外觀簡潔大方
占地:120平方米
性價比超高一層農村自建別墅設計圖,戶型耐看不用爬樓
占地:158.6平方米
農村四層復式樓房設計圖,外觀效果圖+全套圖紙
占地:108平方米
農村建房的“面子天花板”!新中式簡歐結合三層別墅,進門就被
占地:225.98平方米
兩層三間農村房屋設計圖,新農村住宅方案推薦
占地:155平方米
帶大露臺二層現代風別墅設計圖,去繁從簡,好看不過時
占地:122.25平方米
預算10萬的簡單二層半別墅房屋設計圖,外觀簡單,造價低
占地:90平方米
120平米農村40萬三層別墅自建房款式,簡歐風格
占地:120平方米
農村二層復式小別墅設計,進深12米,農村建房最受歡迎的款
占地:149.096 平方
一層帶閣樓農村別墅設計圖,多得一層可變空間,太值了!
占地:165.89平方米
120多平米三層農村別墅設計圖,把實用做到極致,造價適中
占地:126.85平方米
2026年最新款四間二層別墅設計圖,15米乘13米
占地:171.01平方米
小戶型經濟農村雙拼自建房別墅設計圖紙,二層簡約造價低
占地:138平方米
推薦:10套新農村自建房設計圖,2026年最新設計
閱讀次數:4825737次
100套鄉村別墅圖片大全,2026年最新設計
閱讀次數:2492203次
6款農村蓋一層平房的設計圖,10萬元就能建起來
閱讀次數:1852637次
這11個一層農村自建房別墅火爆了朋友圈!我最喜歡戶型十!你呢
閱讀次數:750268次
農村6萬元建一層小別墅圖,你敢相信嗎
閱讀次數:567686次
農村5萬塊就能自建房,6套普通房子設計圖分享,你沒看錯!
閱讀次數:419410次
8套農村漂亮三間平房圖片,非常適合在農村修建!
閱讀次數:411197次
農村自建房化糞池怎么做?附方案及施工過程
閱讀次數:391783次
農村一層三間平房設計圖,告別土氣養老房,讓人忍不住點贊
閱讀次數:350581次
新農村二層樓房圖片造價12萬,挑一套回家建房吧!
閱讀次數:349126次
