
|
今天給大家分享一款35萬帶挑空客廳三層別墅現場拍攝施工效果圖展示,共有2個施工案例,一起來欣賞! 原設計效果圖 這套二層別墅采用磚混結構,開間進深13.5米×14.3米,首層占地面積146.43㎡,總建筑面積 398.6㎡,主體參考造價35萬左右。
本戶型設計美觀大氣,外觀色彩搭配上協調精致,藍色的坡面屋頂十分顯眼,外墻采用黃、白色真石漆裝飾,擁有有超大落地窗、大露臺、陽臺、挑空大客廳、還有臥室套房和涼亭,在陽臺和大露臺上栽種一兩株藤蔓,整棟房子更加生機靈動。
建成效果圖 【案例1】
建成效果圖 施工案例1還原度較高,整體造型與原設計圖相似,只是在配色上稍作改動,外觀使用橙黃色和白色裝飾,色彩鮮艷,很是顯眼,房屋背后有蔥蔥郁郁的樹木,環境優美。 【案例2】
門前有小路,下路兩邊是種植的空間,一邊種花草,另一邊種植蔬菜。屋頂利用露臺的空地做了陽光房,陽光房可打造屋頂花園,空閑的時候約上幾個好友,坐在陽光房里,喝著茶,聊聊天,打打牌,四周均是鄉村美景,清風徐來,豈不樂哉!
此圖是夜景圖,入夜之后,打開燈光,燈火通明,十分豪華。
這是遠景拍攝效果圖,可以看到整棟房子很有立體感,庭院周圍圍上了欄桿,好一處私密性高的農家小苑別墅! 設計功能及平面布局
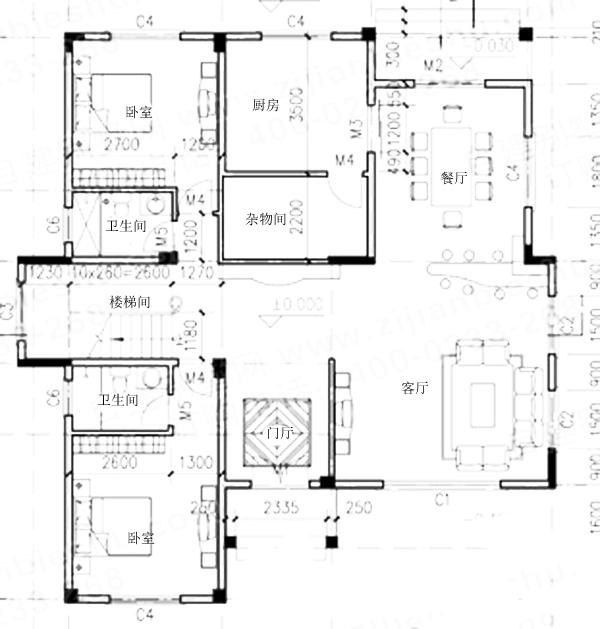
一層平面圖 一 層: 門廳、客廳、臥室(附衛生間)、臥室、廚房、雜物間、餐廳、衛生間
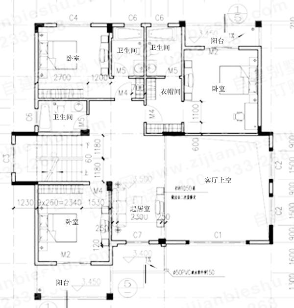
二層平面圖 二 層: 起居室、臥室(附衣帽間、衛生間、陽臺)、臥室(附衛生間)、臥室(附陽臺)、衛生間、 三 層: 主臥室(附衣帽間、衛生間、露臺)、洗衣房、涼亭 圖紙之家-專注農村別墅/自建房設計18年,集合國內200余位經驗豐富的設計師,被評為口碑最好的農村建筑設計公司! |

鄉下三層大氣房子設計圖,外觀挺高大上的,主體29萬多
占地:132.48平方米
農村最好看兩層小樓圖及全套CAD施工圖紙,新中式風格,簡潔大氣
占地:150平方米
2026最美三層別墅設計圖紙及效果圖,十佳最美農村別墅
占地:151平方米
155平方米新三層全套別墅設計資料,15x10米
占地:158平方米
最實用一層小別墅設計方案,造價不高顏值高,家家都喜歡!
占地:143.48平方米
最新款二層半別墅圖片,占地115平米左右,帶地下室,帶露臺
占地:115平方米
簡單實用農村自建四層小別墅設計圖(三層半),95平米
占地:95平方米
帶獨立廚房的二層自建房設計圖,大戶型方案
占地:233平方米
農村18萬元二層小樓圖紙,漂亮實用的農村二層樓房設計圖
占地:140平方米
帶開放式車庫的二層別墅!配土灶、室外樓梯,新穎還顯品味
占地:127.2平方米
兩層中式三合院別墅設計圖紙,堂屋套臥全都有,蓋一棟面子十足
占地:181.93平方米
160平方米歐式一層半別墅施工設計圖紙13X13米
占地:160平方米
115平旋轉樓梯三層復式別墅房屋設計圖,含外觀效果圖
占地:115平方米
小占地的農村別墅設計圖,占地僅72平米,參考造價不到15萬
占地:多戶型可選
獨立餐廳廚房,平屋頂現代風格三層別墅設計圖
占地:159.02平方米
小戶型經濟農村雙拼自建房別墅設計圖紙,二層簡約造價低
占地:138平方米
四層復式別墅設計方案,外觀氣派布局實用,舒適宜居美極了!
占地:204.64平方米
農村三層帶車庫、帶露臺別墅設計圖,經典自建別墅設計方案
占地:160平方米
二層帶地下室樓房設計方案,效果圖+全套施工圖
占地:160平方米
150平農村三層歐式別墅設計圖紙,盡顯豪華與精致,讓人羨慕不已
占地:147.62平方米
推薦:10套新農村自建房設計圖,2026年最新設計
閱讀次數:4825737次
100套鄉村別墅圖片大全,2026年最新設計
閱讀次數:2492203次
6款農村蓋一層平房的設計圖,10萬元就能建起來
閱讀次數:1852637次
這11個一層農村自建房別墅火爆了朋友圈!我最喜歡戶型十!你呢
閱讀次數:750268次
農村6萬元建一層小別墅圖,你敢相信嗎
閱讀次數:567686次
農村5萬塊就能自建房,6套普通房子設計圖分享,你沒看錯!
閱讀次數:419410次
8套農村漂亮三間平房圖片,非常適合在農村修建!
閱讀次數:411197次
農村自建房化糞池怎么做?附方案及施工過程
閱讀次數:391783次
農村一層三間平房設計圖,告別土氣養老房,讓人忍不住點贊
閱讀次數:350581次
新農村二層樓房圖片造價12萬,挑一套回家建房吧!
閱讀次數:349126次
