
|
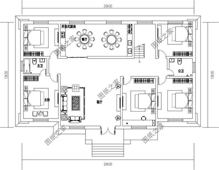
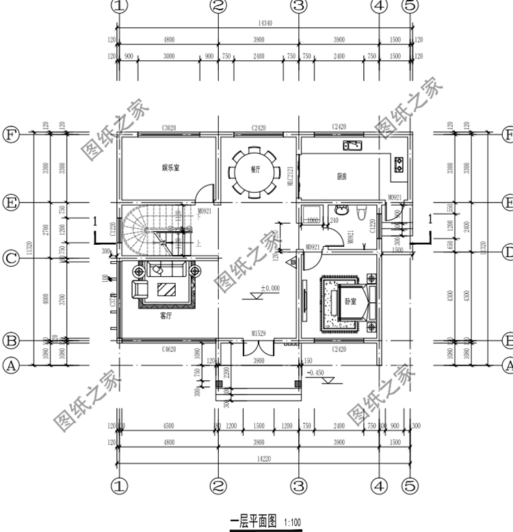
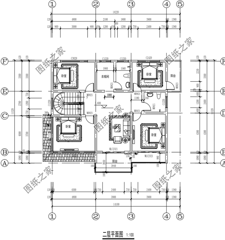
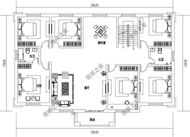
現在回農村建房子的主要也不是給自己住,畢竟都在城里打工,也就過年過節的時候才回去,主要就是給留在老家的父母居住。但是建房子如果太大的話居住起來也浪費,而且成本高,對于一般家庭來說經濟壓力太大了,所以二層是比較合適的,不妨看看今天推薦的這三款最佳農村自建房設計圖,精選好戶型,喜歡收藏。 方案一:農村二層別墅設計圖,外觀高端洋氣,帶車庫設計圖紙介紹:這款二層背書占地193平米,外觀高端洋氣,帶車庫設計,戶型占地面積不大不小,功能齊全,各空間尺寸適宜,一層設有車庫,一進門就是客廳,增加室內空間立體感。二樓有大露臺設計,延伸空間,同時能夠晾曬東西,也可以賞景、度過休閑的時間。 占地面積:16.6m*13.5m,193平方米左右; 建筑層高:二層; 建筑高度:9.4米(含屋頂); 設計功能: 一層戶型:客廳、廚房、餐廳、柴火灶、臥室(帶衛生間)、臥室x2、洗衣間、衛生間、車庫; 二層戶型:客廳上空、客廳、健身房、書房、臥室(帶衛生間)、衣帽間、臥室、衛生間、露臺; ![]() ![]() ![]() ![]() 方案二:農村二層別墅設計圖,大戶型設計,外觀高端大氣圖紙介紹:本戶型占地265平米,大戶型設計,開間20米左右,外觀造型結構精致端莊,外立面中加入石刻裝飾,大落地窗加上螺旋紋裝飾,顯得沉穩大氣,別具一格的風味,灰色的坡屋頂,經典而養眼,體現了自然田野之中的悠閑自在。 占地面積:20.63m*12.63m,265平方米左右; 建筑層高:二層; 建筑高度:10.63米(含屋頂); 設計功能: 一層戶型:客廳、廚房、餐廳、主臥(帶衛生間)、臥室x4、衛生間; 二層戶型:客廳、娛樂室、臥室(帶衛生間)、臥室x5、衛生間、陽臺; ![]() ![]() ![]() ![]() 方案三:農村二層自建房設計圖,占地160平米,外觀精致好看圖紙介紹:這款二層別墅占地160平米左右,外觀精致漂亮,顏色搭配也好,配飾搭配好看,非常適合農村自建。 占地面積:14.2m*11.3m,160平方米左右; 建筑層高:二層; 建筑高度:9.1米(含屋頂); 設計功能: 一層別墅戶型:客廳、餐廳、廚房、臥室、娛樂室、衛生間; 二層別墅戶型:起居室、臥室×4、衣帽間、衛生間×2、陽臺; ![]() ![]() ![]() ![]() 喜歡這三款戶型的朋友點贊收藏,不要輕易錯過哦。
圖紙之家-專注農村別墅/自建房設計18年,集合國內200余位經驗豐富的設計師,被評為口碑最好的農村建筑設計公司! |

農村一層大別墅施工圖,18米乘12米,讓生活充滿儀式感
占地:216平方米
村里三層新中式風自建別墅圖,對稱設計,氣派好看
占地:135.3平方米
帶大套間新農村二層別墅自建房設計圖紙帶效果圖
占地:185平方米
8.5×12米四層歐式房屋設計圖紙,占地100平,落地窗中嵌入了雕花
占地:100平方米
預算30萬三層樓房設計圖含效果圖,戶型經典
占地:125平方米
一層平房小面積雙拼房屋住宅設計圖,造價低,面積適中
占地:245.7平方米
農村三層別墅新款圖片及戶型設計圖紙大全,110平簡歐風格
占地:110平方米左右
高端二層新中式四合院別墅設計圖,含全套CAD施工圖
占地:217平方米
造價15萬經濟美觀一層農村別墅設計圖,占地150平米
占地:多戶型可選
農村4間2層樓房設計圖,帶車庫,外觀時尚,帶屋頂花園
占地:210平方米
農村27萬二層自建別墅設計圖,占地140平米左右,戶型極好
占地:140平方米
120平方米農村四層別墅施工設計圖紙及效果圖
占地:120平方米
驚艷全村的三層別墅設計圖,12×16米美觀大氣布局超合理
占地:179.8平方米
挑空客廳戶型歐式二層別墅設計圖紙,高端大氣帶車庫
占地:236.09平方米
農村一層養老別墅設計圖,兩個戶型方案可選
占地:多種戶型
預算30萬左右的新農村三層房屋設計圖推薦,含外觀效果圖
占地:117平方米
四層豪華別墅設計圖及效果圖,高端房屋設計方案
占地:250平方米
二層兄弟雙拼農村別墅圖新中式,兄弟這樣建房,大氣省錢
占地:143.412平方米
農村2開間三層經濟別墅設計圖,9.6米面寬,實用布局
占地:127.68平方米
120平方米現代新農村二層自建房設計圖,造型時尚好看
占地:120平方米
推薦:10套新農村自建房設計圖,2026年最新設計
閱讀次數:4825737次
100套鄉村別墅圖片大全,2026年最新設計
閱讀次數:2492203次
6款農村蓋一層平房的設計圖,10萬元就能建起來
閱讀次數:1852637次
這11個一層農村自建房別墅火爆了朋友圈!我最喜歡戶型十!你呢
閱讀次數:750268次
農村6萬元建一層小別墅圖,你敢相信嗎
閱讀次數:567686次
農村5萬塊就能自建房,6套普通房子設計圖分享,你沒看錯!
閱讀次數:419410次
8套農村漂亮三間平房圖片,非常適合在農村修建!
閱讀次數:411197次
農村自建房化糞池怎么做?附方案及施工過程
閱讀次數:391783次
農村一層三間平房設計圖,告別土氣養老房,讓人忍不住點贊
閱讀次數:350581次
新農村二層樓房圖片造價12萬,挑一套回家建房吧!
閱讀次數:349126次
