
|
大多數人都覺得農村房子越高越好,這樣顯得比較有檔次,有面子,其實不是的,咱們在農村建房,還是實用一些比較好,房子建的大了反而很空曠,其實大多是子女常年在外打工,父母在家面對空空蕩蕩的房子,還不如一層小平房來的實際。今天給大家推薦進深10米開間15米左右的一層平房,有的十來萬就能建,性價比超高,父母建了肯定喜歡。 第一款:簡單大氣一層自建房設計圖以及戶型圖,四開間設計![]() ![]() ![]() 本戶型為一層四間房屋設計圖,雖然只有一層,但功能齊全、3個臥室+1個書房,足夠一般家庭居住,藍色屋頂、加上淺藍色的外墻,考慮到了農村耐臟性,施工簡單,造價低,適合農村家庭建造,再加上一個小院就完美了。 占地面積:15.00m*9.90m,148平方米左右; 建筑層高:一層; 建筑高度:4.90米(含屋頂); 設計功能:走廊、過廳、客廳、餐廳、廚房、書房、衛生間、主臥、臥室x2 ![]() 第二款:現代一層別墅設計圖以及戶型圖,高端氣派![]() ![]() ![]() 經濟美觀一層農村別墅設計圖,造價15萬左右,占地150平米。這款一層圖紙不管是外觀還是內部布局都很適合農村建房。 占地面積:14.0m*9.8m,145平方米左右; 建筑層高:一層; 建筑高度:6.59米(含屋頂); 設計功能:客廳、餐廳、廚房、、臥室×4、衛生間×2 ![]() 第三款:農村10萬元一層小別墅設計圖以及戶型圖,簡約漂亮![]() ![]() ![]() 農村一層自建房屋設計圖,在農村,鳥語花香好不愜意,建一層別墅,是真正的接地氣,推開門就是花園、草坪或者菜園,這種舒服是城里人無法體會到的。 占地面積:15.0m*10.2m,144平方米左右; 建筑層高:一層; 建筑高度:6.411米(含屋頂); 設計功能:客廳、餐廳、廚房、臥室(帶衛生間)、臥室×2 ![]() 以上就是小編推薦的三款農村一層自建房設計圖以及戶型圖,有喜歡的就給自己父母看看吧!
圖紙之家-專注農村別墅/自建房設計18年,集合國內200余位經驗豐富的設計師,被評為口碑最好的農村建筑設計公司! |

三層兄弟雙拼別墅設計方案,外觀大氣布局實用,住的舒服
占地:197.67平方米
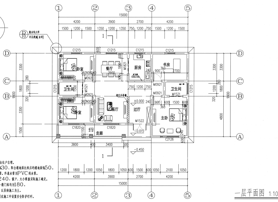
一層農村自建房設計圖,造型美觀大氣,占地150平
占地:153.415平方米
110平方米新農村三層別墅設計圖,含外觀效果圖
占地:109平方米
2026年新款一層住宅別墅設計圖紙,中式風格漂亮極了
占地:207平方米
面寬17米農村實用自建房一層別墅設計圖,簡約大氣經濟時尚
占地:192.94平方米
12x9米自建一層小別墅設計圖,占地不大造價低,簡單舒適人人夸
占地:108.36平方米
面寬8米多的三層農村別墅設計圖,小開間宅基地推薦
占地:112.82平方米
極簡大氣二層別墅設計圖,15米面寬,簡約大氣,年輕人的最愛!
占地:150平方米
帶閣樓兩層半雙拼別墅房屋設計圖,帶外觀效果圖
占地:240平方米
對稱型歐式別墅設計圖,穩重實用,開間18米,適合全國農村建
占地:228.2 平方米
大面寬一層別墅設計圖紙,新中式風格兩款戶型
占地:多戶型可選
農村大戶型中式二層四合院別墅設計圖含外觀效果圖,戶型經典、
占地:464平方米
165平方米三層雙拼農村房屋設計圖大全14x12
占地:168平方米
18×15米新中式高檔農村三層別墅設計圖,低調奢華又實用
占地:195.91平方米
二層半新中式別墅設計圖,農村自建24萬,帶庭院規劃設計
占地:140.68平方米
歐式復式型三層別墅施工設計圖紙及效果圖大全
占地:164平方米
帶地下室三層豪華大氣新農村房屋設計圖,占地150平米左右
占地:150平方米
農村中式兩層雙拼別墅房屋設計圖,含效果圖片
占地:200平方米
二開間小戶型設計三層農村自建房方案,經濟型適合小宅基地建房
占地:107.02平方米
鄉村二層半別墅圖紙設計,歐式風格、錯落有致,150平左右
占地:149.76
推薦:10套新農村自建房設計圖,2026年最新設計
閱讀次數:4825737次
100套鄉村別墅圖片大全,2026年最新設計
閱讀次數:2492203次
6款農村蓋一層平房的設計圖,10萬元就能建起來
閱讀次數:1852637次
這11個一層農村自建房別墅火爆了朋友圈!我最喜歡戶型十!你呢
閱讀次數:750268次
農村6萬元建一層小別墅圖,你敢相信嗎
閱讀次數:567686次
農村5萬塊就能自建房,6套普通房子設計圖分享,你沒看錯!
閱讀次數:419410次
8套農村漂亮三間平房圖片,非常適合在農村修建!
閱讀次數:411197次
農村自建房化糞池怎么做?附方案及施工過程
閱讀次數:391783次
農村一層三間平房設計圖,告別土氣養老房,讓人忍不住點贊
閱讀次數:350581次
新農村二層樓房圖片造價12萬,挑一套回家建房吧!
閱讀次數:349126次
