
|
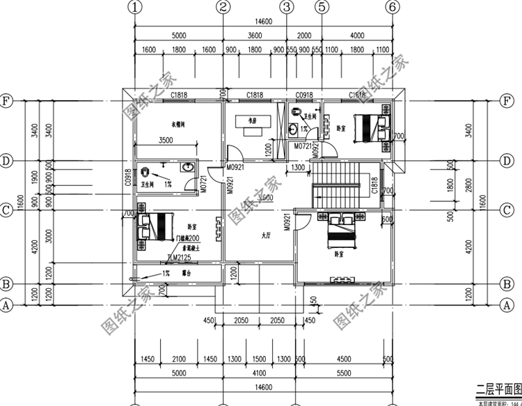
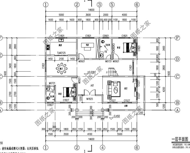
別墅一直都是人們改善居住條件的首選,有的農村朋友會選擇自建,還有的會在城里買房然后裝修,但是無論哪一種都離不開設計。今天就給大家推薦三款150平大戶型二層自建房設計圖,戶型實用,外觀非常的時尚,造型簡約大氣,適合大部份農村地區建房使用。 戶型一:農村二層別墅設計圖,現代風格,戶型簡約時尚圖紙介紹:這款二層別墅占地152平米左右,現代風格簡約時尚,外觀對稱設計,米白色外墻,米白色護欄和方柱,清爽明朗。線條勾勒窗邊,新穎不單調。二層封閉陽臺,使得室內通透明亮,也增強了視覺效果,實用美觀。多窗設計不僅保障了室內通風和采光。 占地面積:14.4m*12.4m,152.64平方米左右; 建筑層高:二層; 建筑高度:10.249米(含屋頂); 設計功能: 一層戶型:玄關、客廳、廚房、餐廳、臥室(帶衛生間)、臥室、衛生間; 二層戶型:起居室、健身區、臥室(帶衛生間)、臥室x2、衛生間、儲物間、陽臺; ![]() ![]() ![]() 戶型二:農村二層別墅設計圖,新中式風格設計,戶型簡約而不簡單圖紙介紹:這款二層別墅占地150平米左右,新中式風格,戶型簡約而不簡單,別墅占地方正,錯落有致,更符合現代人的審美!布局大氣實用,一樓設有雜物間,二層陽臺設有涼亭,賞百花齊放好不愜意,這才是適合農村的好房子,很接地氣。 占地面積:14.23m*13.38m,150.78平方米; 建筑層高:二層; 建筑高度:9.539米(含屋頂); 設計功能: 一層戶型:玄關、客廳、廚房、餐廳、臥室x2、衛生間、雜物間; 二層戶型:客廳、臥室(帶衛生間)、書房、臥室x2、衛生間、露臺、陽臺、涼亭; ![]() ![]() ![]() 戶型三:農村二層自建房設計圖,占地150平米,戶型沉穩大氣有內涵圖紙介紹:本戶型占地150平米,田園風格沉穩大氣有內涵。在能滿足基本住房需求的情況下,大部分家庭更愿意建造二層房屋,不大不小,經濟實用,住著剛剛好。 占地面積:14.6m*11.6m,150平方米左右; 建筑層高:二層; 建筑高度:9.8米(含屋頂); 設計功能: 一層戶型:客廳、餐廳、廚房、衛生間、主臥×2、書房; 二層戶型:休閑廳、主臥(帶衛生間、衣帽間、小露臺)、臥室×2、書房、衛生間; ![]() ![]() ![]() ![]() 喜歡這三款戶型的朋友記得收藏這三款,等到建房的時候參考。
圖紙之家-專注農村別墅/自建房設計18年,集合國內200余位經驗豐富的設計師,被評為口碑最好的農村建筑設計公司! |

農村兄弟雙拼平房別墅設計圖,獨門獨戶,一層也能建雙拼
占地:274.18平方米
一層中式仿古三合院設計圖,實用又大氣,百年不過時
占地:366.67平方米
帶地下室設計三層自建房別墅設計圖,復式挑空客廳
占地:192平方米
160平方米歐式一層半別墅施工設計圖紙13X13米
占地:160平方米
鄉村一層房屋設計圖,養老還是一層好,多臥室的設計
占地:195平方米
二層精美偏法式風格別墅設計圖,不但顏值高,品質還高
占地:154.17平方米
高端大氣三層半別墅客廳挑空設計,豪華農村自建房圖
占地:179.52平方米
爆火農村養老房設計:16 米面寬一層戶型,自住養老全拿捏
占地:169.87平方米
125平自建房設計圖二層戶型,建房選這款準沒錯
占地:124.04平方米
時尚四開間二層農村別墅,經典大氣,引領建房新潮流!
占地:159.6平方米
農村四層復式房屋設計圖紙,占地105平方米預算35萬左右
占地:105平方米
美式二層別墅設計圖,含外觀效果圖,造型精美
占地:144平方米
豪華復式三層別墅設計圖紙,效果圖+建筑施工圖+結構施工圖
占地:126平方米
一層中式四合院別墅設計圖,符合國人審美,簡單大氣穩妥沉穩
占地:388平方米
帶地下室的一層別墅設計圖,農村自建房比較合適
占地:206平方米
15萬左右新中式二層別墅設計圖平面圖,占地110平米左右
占地:110平方米
二層中式四合院別墅設計圖,經典、漂亮(全套施工圖)
占地:350平方米
最好看的新款農村三層復式別墅設計圖片及設計圖,外觀高端、大
占地:160平方米
復式三層別墅設計圖片及全套圖紙,客廳中空,外觀為歐式建筑的
占地:175平方米
80-90平米自建樓房設計圖,農村小別墅經典戶型圖
占地:86平方米
推薦:10套新農村自建房設計圖,2026年最新設計
閱讀次數:4825737次
100套鄉村別墅圖片大全,2026年最新設計
閱讀次數:2492203次
6款農村蓋一層平房的設計圖,10萬元就能建起來
閱讀次數:1852637次
這11個一層農村自建房別墅火爆了朋友圈!我最喜歡戶型十!你呢
閱讀次數:750268次
農村6萬元建一層小別墅圖,你敢相信嗎
閱讀次數:567686次
農村5萬塊就能自建房,6套普通房子設計圖分享,你沒看錯!
閱讀次數:419410次
8套農村漂亮三間平房圖片,非常適合在農村修建!
閱讀次數:411197次
農村自建房化糞池怎么做?附方案及施工過程
閱讀次數:391783次
農村一層三間平房設計圖,告別土氣養老房,讓人忍不住點贊
閱讀次數:350581次
新農村二層樓房圖片造價12萬,挑一套回家建房吧!
閱讀次數:349126次
