
|
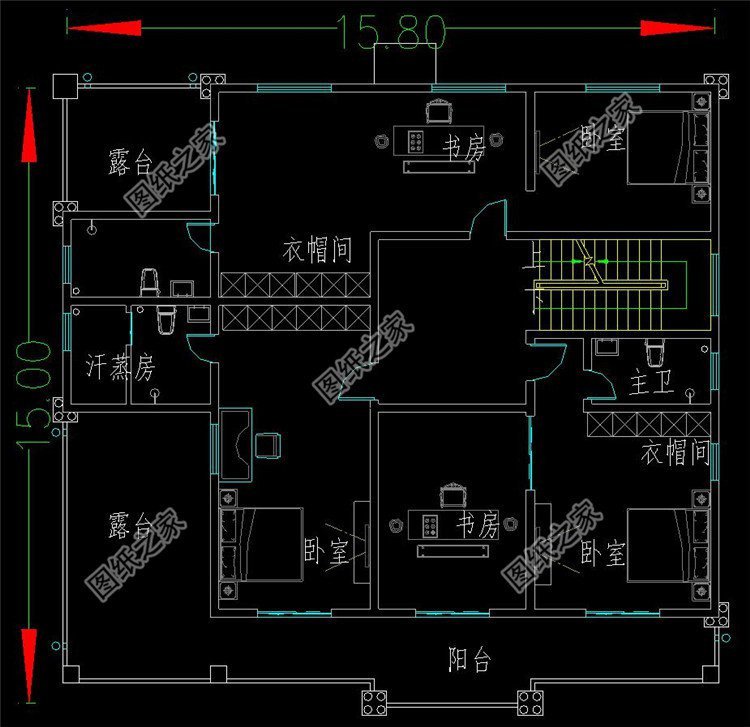
如果條件允許,大多數人都想在老家蓋上一棟大別墅吧,不僅氣派豪華,空間也變得更加寬敞,大家庭居住都合適。逢年過節或者自己邀請朋友來鄉下度假做客,也有地方住。對于家里面積大的朋友來說,建個兩層就夠用了,今天小編推薦三款農村將近200平米的二層自建房設計圖以及戶型圖,來看看吧! 第一款:開間19米左右的二層挑空歐式別墅設計圖以及戶型圖,農村大開間戶型![]() 帶獨立廚房設計。典型的歐式風格小別墅,外觀采用常見的歐式建筑和裝飾元素,有門廳、有八角窗和老虎窗、更有二分式羅馬柱、雕花和梁托,其裝飾以大氣時尚為主,真石漆的整墻加灰色真石漆墻裙,豪華的效果自然呈現。一層客廳周邊為環形設計,一邊是入室玄關,一邊是旋轉樓梯樓,這樣能使客廳的空間大氣感進一步提升,帶獨立廚房,作為柴火房,冬天家人可以一起烤火聊天等;二層挑空的復式客廳設計,時尚大氣,空間非常開闊,大露臺視野極好,可觀景可曬衣。 占地面積:19.26m*12.66m,195.59平方米左右; 建筑層高:二層; 建筑高度:9.621米(含屋頂); 設計功能: 一層戶型:客廳、廚房、餐廳、臥室x3、衛生間; 二層戶型:客廳上空、起居室、書房、臥室、臥室(帶衛生間)x2、衛生間、陽臺、露臺; 悶頂戶型:臺球室(可自行安排區域)、衛生間、水箱; ![]() ![]() ![]() 第二款:農村實用二層4開間中式別墅設計圖以及戶型圖,帶車庫戶型![]() 七間臥室帶露臺,老家建一棟最合適不過了!別墅外觀配色和諧經典,讓人眼前一亮。獨樹一幟的新中式風格,比起中國人最愛的傳統中式,這種風格更現代、更時尚一點。利用科學合理的空間布局,展現出建筑結構的形式美。一層設有客廳,還在東側專設烤火房,符合南方人的生活習慣,為冬日取暖提供條件;全屋一共布置7間臥室,足夠一家人居住使用。寬敞的大露臺可作休閑觀景平臺使用。方便晾曬衣物實用性強。 占地面積:16.26m*11.76m,198平方米左右; 建筑層高:二層; 建筑高度:8.875米(含屋頂); 設計功能: 一層戶型:客廳、烤火房、儲藏室、餐廳、廚房、臥室x2、衛生間x2、車庫; 二層戶型:臥室(帶衣帽間)、臥室x4、衛生間x2、露臺 ![]() ![]() 第三款:帶開放式車庫的二層四間歐式別墅設計圖以及戶型圖,占地200多平左右![]() 經典的歐式風格,黃色外墻與紅色坡屋頂的結合,不易過時,外觀線條流暢,非常適合居住。陽臺和羅馬柱相搭配,不僅加強了設計感,使得室內采光通風更上一層,足不出戶也可盡攬鄉村風光。南北通透,寬敞明亮,餐廳客廳之間設有間隔,保證了房間整體的空氣清新。二樓主要是日常休息場所,三角各設置一個臥室,并都配有獨立衛生間,滿足人多家庭的居住需求,其中兩間都設立書房,方便用來孩子學習。 占地面積:15.8m*15m,208平方米左右; 建筑層高:二層; 建筑高度:10.94米(含屋頂); 設計功能: 一層戶型:玄關、客廳、餐廳、廚房、臥室(帶衛生間)、臥室(帶衛生間、衣帽間)、車庫; 二層戶型:臥室(帶衛生間、衣帽間、書房)x2、臥室(帶汗蒸房)、露臺x2、陽臺 ![]() ![]() 以上就是小編推薦的農村將近200平左右的二層別墅設計,你家想建哪一款?評論區告訴我!
圖紙之家-專注農村別墅/自建房設計18年,集合國內200余位經驗豐富的設計師,被評為口碑最好的農村建筑設計公司! |

預算20萬的農村三層房屋設計圖方案,帶外觀效果圖
占地:115平方米
230平米歐式帶地下室三層自建別墅設計施工圖紙及效果圖
占地:230平米
最新140平米三層自建房屋設計圖紙,本戶型帶小院
占地:140平米
后面帶小院的農村房屋設計圖,適合鄉村自建
占地:300平方米
四層別墅豪宅外觀效果圖及全套施工圖,高端歐式風格
占地:176.97平方米
農村四層復式房屋設計圖紙,占地105平方米預算35萬左右
占地:105平方米
鄉村中式四合院二層別墅設計圖,中式韻味十足
占地:223平方米左右
150平方米農村二層房屋建筑設計圖,15.2x9.4米
占地:148平方米
20萬農村二層小洋樓設計圖,帶鍋爐房,漂亮簡單實用
占地:165平方米
帶閣樓兩層半雙拼別墅房屋設計圖,帶外觀效果圖
占地:240平方米
帶堂屋設計一層5間平房新農村自建別墅效果圖全套施工圖
占地:198.41平方米
小戶型經濟農村雙拼自建房別墅設計圖紙,二層簡約造價低
占地:138平方米
現代風格四合院別墅設計圖,回老家建一棟吧
占地:177.89平方米
占地200平米時尚現代三層農村別墅設計圖,簡簡單單百看不厭
占地:202.95平方米
三層獨棟帶露臺房屋設計圖,含外觀圖片大全
占地:110平方米
120平方米農村四層別墅設計圖,含全套施工圖
占地:120平方米
農村一層中式三合院太香了!白墻黛瓦,有院有景超宜居
占地:364.72平方米
現代三層農村民房設計圖及圖片,外觀高端、大氣
占地:196平方米
180平方別墅房屋設計圖,外觀效果圖美觀
占地:180平方米
推薦:10套新農村自建房設計圖,2026年最新設計
閱讀次數:4825737次
100套鄉村別墅圖片大全,2026年最新設計
閱讀次數:2492203次
6款農村蓋一層平房的設計圖,10萬元就能建起來
閱讀次數:1852637次
這11個一層農村自建房別墅火爆了朋友圈!我最喜歡戶型十!你呢
閱讀次數:750268次
農村6萬元建一層小別墅圖,你敢相信嗎
閱讀次數:567686次
農村5萬塊就能自建房,6套普通房子設計圖分享,你沒看錯!
閱讀次數:419410次
8套農村漂亮三間平房圖片,非常適合在農村修建!
閱讀次數:411197次
農村自建房化糞池怎么做?附方案及施工過程
閱讀次數:391783次
農村一層三間平房設計圖,告別土氣養老房,讓人忍不住點贊
閱讀次數:350581次
新農村二層樓房圖片造價12萬,挑一套回家建房吧!
閱讀次數:349126次
