
|
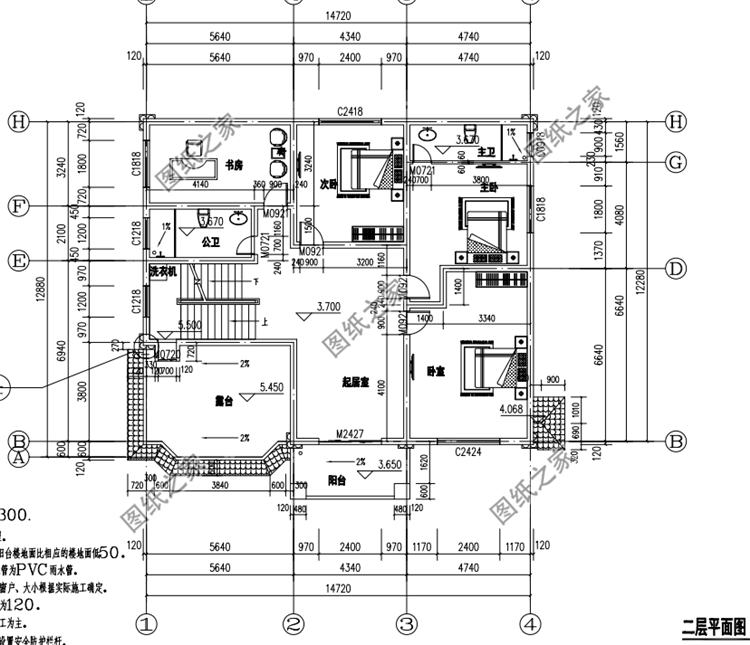
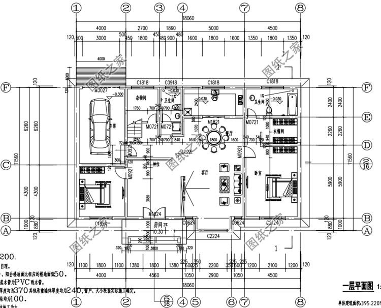
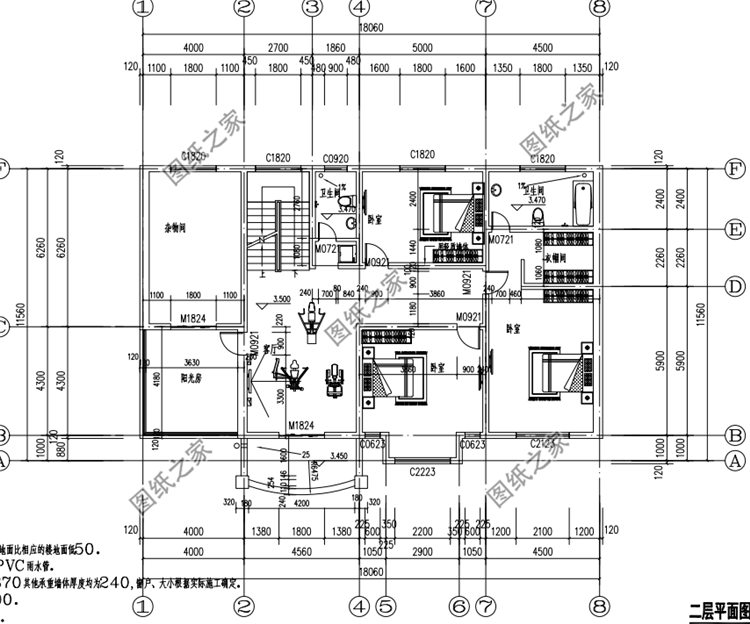
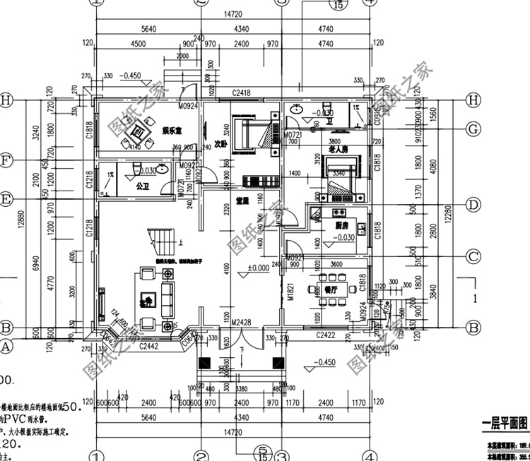
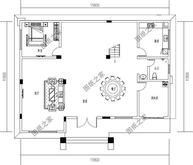
農村房子想要建得好看,關鍵在于兩個點,一是設計二是施工。如果沒有好的設計圖,建出來的房子可能也會不是很大氣,所以一定要選對圖紙,建房的時候好參考。今天就給大家推薦三套建房必備好戶型設計圖,外觀大氣美觀,室內布局合理,非常適合回農村建。 方案一:農村二層別墅設計圖,占地175平米左右,中式風格設計圖紙介紹:本戶型占地175平方米左右,,中式風格清新自然,風格爽利,而且造型又不復雜,建造成本也不高,非常適合自己建,漂亮又耐看,功能設計非常齊全,布局大方合理,精致戶型,動靜分明空間,舒適格局,南北通透、四面采光,自在生活清新享受 占地面積:15.8m*11.8m,175平方米左右; 建筑層高:二層; 建筑高度:10.2米(含屋頂); 設計功能: 一層戶型:堂屋、客廳、廚房、餐廳、臥室、衛生間、洗衣房; 二層戶型:客廳、臥室(帶衛生間)、臥室x2、衛生間、露臺; ![]() ![]() ![]() ![]() 方案二:農村二層自建房設計圖,帶車庫設計,歐式風格圖紙介紹:這款二層別墅占地211平米左右,帶車庫設計,別墅戶型外觀美,造價低,深受大眾的喜歡。外墻貼的是奶白色的瓷磚很大氣。搭配藍色屋頂,整體給人感覺很舒服協調,別墅雖只有二層,但卻豪氣十足,農村自建一棟,一點不比城市的花園洋樓差。 占地面積:18.06m*11.56m,211平方米左右; 建筑層高:二層; 建筑高度:10.06米(含屋頂); 設計功能: 一層戶型:客廳、神位、餐廳、廚房 、臥室、臥室(帶衣帽間、衛生間)、衛生間、雜物間、車庫; 二層戶型:臥室(帶衣帽間、衛生間)、健身房、臥室x2、衛生間、雜物間、陽光房、露臺; ![]() ![]() ![]() ![]() 方案三:農村二層房屋設計圖,歐式風格設計,含外觀效果圖圖紙介紹:這款二層別墅占地189平米左右,歐式風格,外觀時尚又大氣,大大的玻璃落地窗,讓簡單的外觀多了一些時尚感。暖色系的真石漆,搭配紅色的坡屋頂,給人一種溫暖又沉穩的感覺。外觀的歐式羅巴柱和獨具特色的屋頂大露臺造型讓整個外觀變的靈動活力,造型時尚經典,建出來一定會是當地農村的經典戶型。 占地面積:14.72m*12.28m,189平方米; 建筑層高:二層; 建筑高度:9.1米(含屋頂); 設計功能: 一層戶型:娛樂室,公衛,客廳,堂屋,次臥,廚房,餐廳,老人房(帶衛生間); 二層戶型:書房,公衛,次臥X2,主臥(帶衛生間),起居室,露臺,陽臺; ![]() ![]() ![]() ![]() 這三款戶型大氣美觀,非常適合在農村建造。
圖紙之家-專注農村別墅/自建房設計18年,集合國內200余位經驗豐富的設計師,被評為口碑最好的農村建筑設計公司! |

簡約精致的二層房子設計圖,農村自建經濟實用
占地:89.76平方米
獨棟歐式三層農村實用樓房設計圖,外觀圖大氣,13×13米
占地:144.75平方米
預算20萬左右三層別墅設計圖紙,新農村自建房推薦
占地:118平方米
造價33萬左右超漂亮的三層別墅圖紙設計圖,旋轉樓梯戶型設計
占地:121.59平方米
農村最漂亮二層歐式別墅設計圖,面寬16.5米(含車庫)
占地:180.366
占地180平方米二層鄉村小洋樓設計戶型圖及圖紙,外觀華麗
占地:180平方米
農村二層樓房設計圖帶外觀圖片,造價20多萬,13.3x11
占地:146平方米
新農村四合院別墅圖片及戶型方案圖,全套圖紙可施工
占地:154平方米左右
預算30萬三層樓房設計圖含效果圖,戶型經典
占地:125平方米
占地170平米2026新款三層別墅設計圖片及設計方案
占地:170平方米
經濟、不張揚!簡單二層別墅設計圖,農村建房直接抄作業
占地:198.58平方米
闊氣高端的三層別墅設計圖,亮得恰到好處,永遠也住不膩
占地:160平方米
鄉下二層樓房住宅設計圖紙及效果圖,農村二層小洋樓
占地:140平方米
農村三層復式自建樓房設計圖,外觀圖大氣
占地:130平方米
三層農村自建房別墅設計圖紙,大廳中空,外觀高端大氣
占地:230平方米
農村小別墅一層設計圖紙,外觀漂亮極了,130和160兩個戶型
占地:多種戶型可選
最漂亮的農村二層小樓圖,平屋頂的設計對于農村來說尤為便利
占地:170平方米
小戶型三層現代風別墅設計圖,可別再說農村不適合現代風了
占地:92.34平方米
230平方米新農村二層自建別墅設計圖紙帶外觀圖,20X11米
占地:227平方米
120平方米三層歐式別墅設計圖,進門就是旋轉樓梯
占地:119.76平方米
推薦:10套新農村自建房設計圖,2026年最新設計
閱讀次數:4825737次
100套鄉村別墅圖片大全,2026年最新設計
閱讀次數:2492203次
6款農村蓋一層平房的設計圖,10萬元就能建起來
閱讀次數:1852637次
這11個一層農村自建房別墅火爆了朋友圈!我最喜歡戶型十!你呢
閱讀次數:750268次
農村6萬元建一層小別墅圖,你敢相信嗎
閱讀次數:567686次
農村5萬塊就能自建房,6套普通房子設計圖分享,你沒看錯!
閱讀次數:419410次
8套農村漂亮三間平房圖片,非常適合在農村修建!
閱讀次數:411197次
農村自建房化糞池怎么做?附方案及施工過程
閱讀次數:391783次
農村一層三間平房設計圖,告別土氣養老房,讓人忍不住點贊
閱讀次數:350581次
新農村二層樓房圖片造價12萬,挑一套回家建房吧!
閱讀次數:349126次
