
|
記得十多年前的農村,家里有能力蓋新房的都是蓋平頂房,平頂可以曬谷子、曬農作物,更多的是考慮到實用性,不過那時候的平頂房也是一種生活美好的象征。而如今,縱觀農村自建房設計,大部分是簡歐風的斜頂設計,但在農村,平頂設計還是很實用的。生活就是簡簡單單,住房也要自由舒適,不要被坡屋頂、洋別墅限制了想象。今天推薦三款二層半平頂建房圖,一起看看吧! 第一款:超實用現代兩層自建小樓設計圖以及戶型圖,外觀純粹極簡風格![]() 回歸本真的生活才是最好的設計!現代風格的別墅設計, 新型材料的運用,幾何形狀的設計,藝術裝飾的設計,別墅的上上下下無不充斥著現代、時尚的感覺。相信這樣的造型是80、90后,尤其追求藝術風范的年輕人所喜愛的。它的外形設計的這樣棒,布局精巧,南北通透,方便家人生活起居。 ![]() ![]() 第二款:150平方米平屋頂別墅,立面簡潔、大方![]() 新農村二層半別墅設計圖(可以直接上屋頂,屋頂有露臺和儲藏間),經典漂亮,省錢又實用,建筑整體為歐式風格,以真石漆為主,底部使用褐色墻磚,提升穩重感的同時保護墻體。整體顯得溫暖優雅,入戶羅馬柱和臺階設計使得房屋整體抬高,防潮又結實。簡單的線條設計,將整棟建筑襯托出一種別樣的氣質。這套別墅的屋頂大露臺絕對是房屋亮點所在。 ![]() ![]() ![]() 第三款:農村三層現代平頂別墅設計圖以及戶型圖,簡約時尚百看不厭![]() 外觀到布局都令人驚艷!外立面色調采用灰色和白色結合,整體看起來簡約時尚,線條干凈利落,別墅通透明朗,大面積的玻璃窗設計,使整體看上去視野開闊又寬敞。層次錯落有致,有廊有臺,充滿現代氣息又與周圍環境和諧相襯,享品質鄉野人生。符合年輕人的審美,居住區安排更多臥室,不怕家中人口多,看了就有想買的沖動! 占地面積:11.82m*12.62m,125.142平方米左右; 建筑層高:三層; 建筑高度:11.2米(含屋頂); 設計功能: 一層戶型:客廳、餐廳、廚房、臥室(帶衛生間)、臥室、衛生間; 二層戶型:客廳上空、小客廳、臥室(帶衛生間)、臥室x2、衛生間、陽臺; 三層戶型:臥室x2、衛生間、露臺、涼亭(帶頂); ![]() ![]() ![]() 以上就是小編推薦的農村二層半的平頂別墅設計圖以及戶型圖,你家想建哪款?
圖紙之家-專注農村別墅/自建房設計18年,集合國內200余位經驗豐富的設計師,被評為口碑最好的農村建筑設計公司! |

二層門面房自建小樓設計圖紙及效果圖,占地150平
占地:151.83平方米
農村兩層新中式仿古四合院別墅戶型圖,小型占地不到200平
占地:193平方米
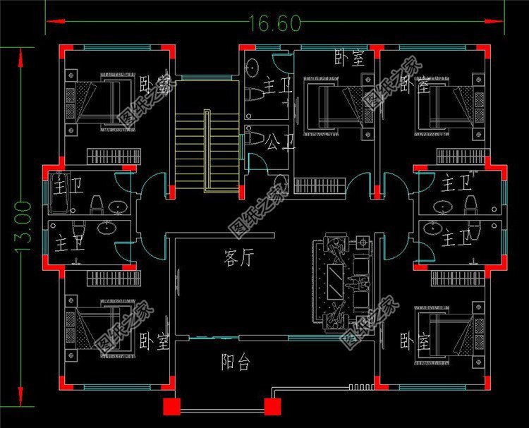
新農村三層自建樓房設計圖,帶大露臺,外觀大氣
占地:136平方米
經典二層農村自建房屋別墅設計圖紙,占地110平米左右
占地:110平方米
開間13米左右新農村2層自建房別墅戶型設計圖,簡潔實用
占地:170平方米
客廳中空的三層豪華小別墅設計圖,時尚靚麗,鄉下建一棟有面子
占地:171.25平方米
三層帶地下室+旋轉樓梯別墅設計圖紙,復式挑空客廳
占地:多種戶型
帶閣樓二層別墅設計圖,帶外觀效果圖片
占地:160平方米
農村宅基地建房二層別墅設計圖,適合回鄉自建!
占地:137.5平方米
100平方三層樓房設計圖及圖片,戶型設計簡約時尚
占地:100平方米
占地200平米簡歐三層農村別墅設計圖,既顯華麗又接地氣
占地:209.27平方米
農村二層帶車庫四合院別墅設計圖,新中式外觀圖片,戶型實用方
占地:247平方米
中式三層新農村房子別墅設計圖,看了那么久,還是中式最有韻味
占地:97.2平方米
農村18萬元二層小樓圖紙,漂亮實用的農村二層樓房設計圖
占地:140平方米
人字坡紅磚一層別墅設計圖,簡約低調超實用,這樣的房子人人能
占地:136.51平方米
三層雙拼別墅效果圖及戶型設計圖,占地150平米
占地:154.8平方米
農村五開間大平層設計圖,主體15萬就能建。
占地:182.43平方米
預算20萬的農村三層房屋設計圖方案,帶外觀效果圖
占地:115平方米
經典小戶型新農村房屋住宅設計圖,10萬左右
占地:80平方米
預算20萬左右三層別墅設計圖紙,新農村自建房推薦
占地:118平方米
推薦:10套新農村自建房設計圖,2026年最新設計
閱讀次數:4825737次
100套鄉村別墅圖片大全,2026年最新設計
閱讀次數:2492203次
6款農村蓋一層平房的設計圖,10萬元就能建起來
閱讀次數:1852637次
這11個一層農村自建房別墅火爆了朋友圈!我最喜歡戶型十!你呢
閱讀次數:750268次
農村6萬元建一層小別墅圖,你敢相信嗎
閱讀次數:567686次
農村5萬塊就能自建房,6套普通房子設計圖分享,你沒看錯!
閱讀次數:419410次
8套農村漂亮三間平房圖片,非常適合在農村修建!
閱讀次數:411197次
農村自建房化糞池怎么做?附方案及施工過程
閱讀次數:391783次
農村一層三間平房設計圖,告別土氣養老房,讓人忍不住點贊
閱讀次數:350581次
新農村二層樓房圖片造價12萬,挑一套回家建房吧!
閱讀次數:349126次
