
|
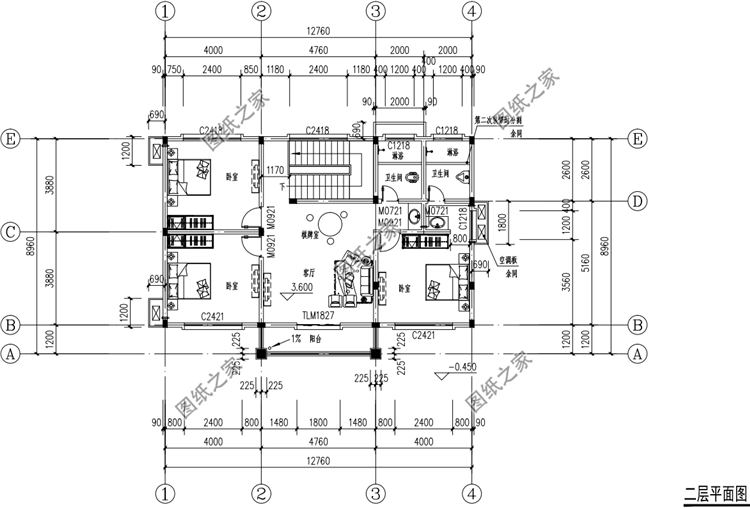
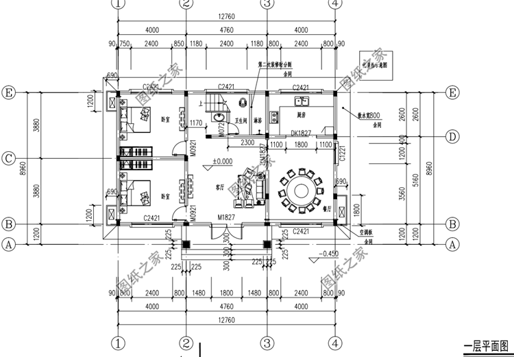
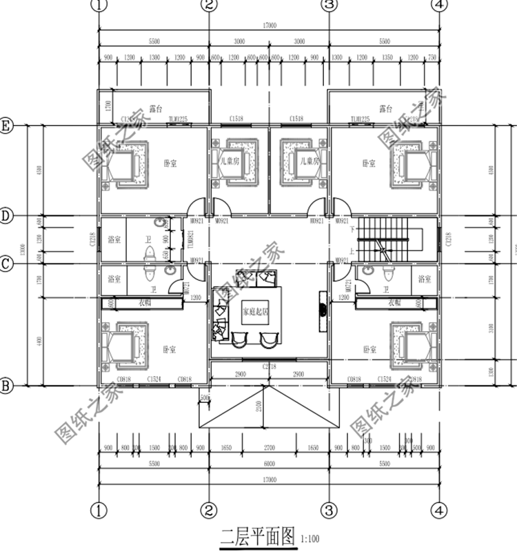
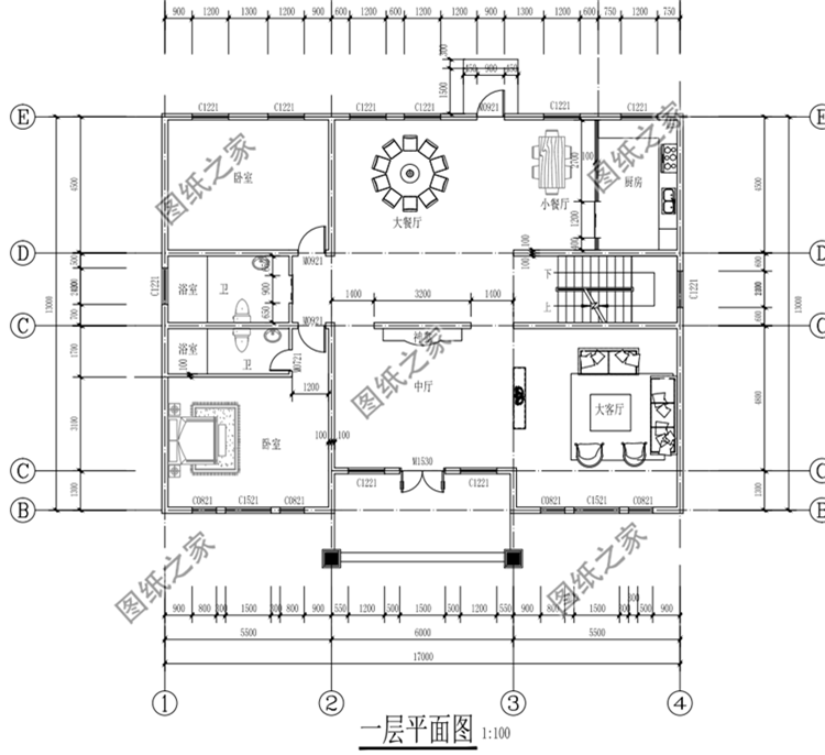
在城市生活久了,相信大家都有一個田園夢,向往鄉村田間的自由,向往鄉村間的綠蔭小道,不時傳來清脆的鳥鳴,那是夢的延伸。在老家有一棟安逸的房子,享受人生的美好時光!在那里,不必每天匆匆忙忙 款式一:農村二層別墅設計圖,復式戶型設計,屋頂錯落有致圖紙介紹:這款二層別墅占地157平米左右,外觀美觀大氣,保證高端大氣上檔次,布局實用,正是你一直在找的戶型,方正的戶型,簡約大氣,沒有過多的裝飾,僅一對羅馬柱和落地窗就顯得格外豪華氣派,搭配復古灰色瓦片,視覺沖擊感更強,看上去色彩更豐富二樓帶有露臺,室外活動區域充足,居住更加舒適 ![]() ![]() ![]() 款式二:農村二層自建別墅設計圖,占地100平米,豪華氣派的好戶型圖紙介紹:這款二層自建別墅占地100平方米,外觀非常的豪華氣派,主體造價18萬到24萬!外立面采用米黃色真石漆,搭配紅色坡屋頂,看著就讓人心生愉悅;方形廊柱間距較寬,走動方便,顯得十分寬敞。弧形大窗戶,一方面讓室內的觀景效果提高,另一方面顯得十分美觀。陽臺的圍欄采用花瓶欄桿,精致有韻味。 占地面積:12.76m*8.96m,100平方米左右; 建筑層高:二層; 建筑高度:9.12米(含屋頂); 設計功能: 一層戶型:客廳、餐廳、廚房 、臥室x2、衛生間; 二層戶型:客廳、棋牌室、臥室(帶衛生間)、臥室x2、衛生間、陽臺; ![]() ![]() ![]() ![]() 款式三:農村二層自建別墅設計圖,大戶型設計,采光溫暖圖紙介紹:這款鄉下二層樓房設計圖,大窗戶打造的客廳,一起享受大面積采光的溫暖,增加采光,站在窗戶面前可以全景觀看外面的風景。 占地面積:17.0m*13.0m,220平方米左右; 建筑層高:二層; 建筑高度:9.3米(含屋頂); 設計功能: 一 層:中廳、客廳、餐廳、廚房、臥室(帶衛生間)、臥室、衛生間; 二 層:起居室、臥室(帶衛生間)×2、臥室x2、兒童房×2、衛生間、露臺×2; ![]() ![]() ![]() ![]() 不知道大家最喜歡哪一款?歡迎收藏。
圖紙之家-專注農村別墅/自建房設計18年,集合國內200余位經驗豐富的設計師,被評為口碑最好的農村建筑設計公司! |

農村自建四層百萬豪宅別墅設計圖,客廳中空
占地:170平方米
新農村三層房屋住宅設計圖紙大全(含效果圖)
占地:122平方米
簡約L型一層平房自建房設計圖,經濟實用
占地:145.283平方米
14x12.5米二層農村別墅設計圖,布局完美獨立,顏值高又實用
占地:153.95平方米
雙戶168平方米小戶型新農村雙拼樓房設計建筑圖紙帶外觀圖
占地:168平方米
135平三層農村樓房設計圖及效果圖,造價20萬左右
占地:135平方米
二層復式樓房設計圖,平實接地氣的平面布局
占地:180平方米
二層帶車庫歐式尊貴別墅圖,客廳中空,美觀,大氣,實用
占地:300平方米
18×15米新中式高檔農村三層別墅設計圖,低調奢華又實用
占地:195.91平方米
歐式新農村三層復式樓自建房別墅圖紙,旋轉樓梯設計
占地:128平方米
獨棟小別墅設計圖,造價30萬左右的獨棟小別墅設計推薦
占地:150平方米
三間三層樓房設計圖紙,復試的設計,漂亮的一塌糊涂
占地:175平方米
最新款二層半別墅圖片,占地115平米左右,帶地下室,帶露臺
占地:115平方米
戶型好的農村三層樓房設計圖,帶外觀效果圖
占地:110平方米
小平米四層自建房屋設計圖紙,戶型簡單實用,占地80平方米
占地:80平方米
農村一層房屋設計圖,自建一層房子圖紙推薦
占地:200平方米
2026農村漂亮的一層平房圖片平面圖與全套施工圖紙,戶型周正
占地:150平方米
農村18萬元二層小樓圖紙,漂亮實用的農村二層樓房設計圖
占地:140平方米
110平預算20萬內三層別墅設計圖,含效果圖
占地:110平方米
兩開間自建別墅設計圖,占地小造型簡約,不愁宅基地面寬小了
占地:118.4平方米
推薦:10套新農村自建房設計圖,2026年最新設計
閱讀次數:4825737次
100套鄉村別墅圖片大全,2026年最新設計
閱讀次數:2492203次
6款農村蓋一層平房的設計圖,10萬元就能建起來
閱讀次數:1852637次
這11個一層農村自建房別墅火爆了朋友圈!我最喜歡戶型十!你呢
閱讀次數:750268次
農村6萬元建一層小別墅圖,你敢相信嗎
閱讀次數:567686次
農村5萬塊就能自建房,6套普通房子設計圖分享,你沒看錯!
閱讀次數:419410次
8套農村漂亮三間平房圖片,非常適合在農村修建!
閱讀次數:411197次
農村自建房化糞池怎么做?附方案及施工過程
閱讀次數:391783次
農村一層三間平房設計圖,告別土氣養老房,讓人忍不住點贊
閱讀次數:350581次
新農村二層樓房圖片造價12萬,挑一套回家建房吧!
閱讀次數:349126次
