
|
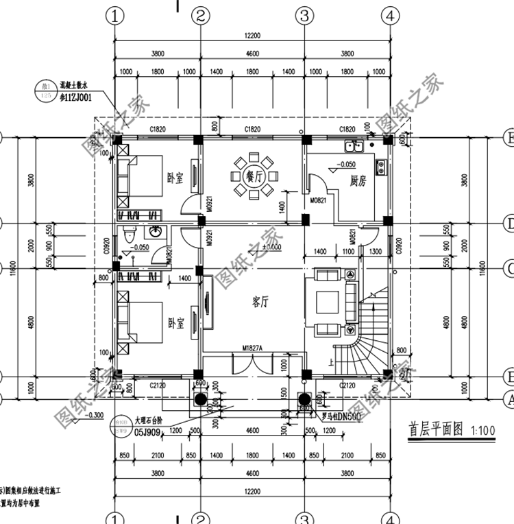
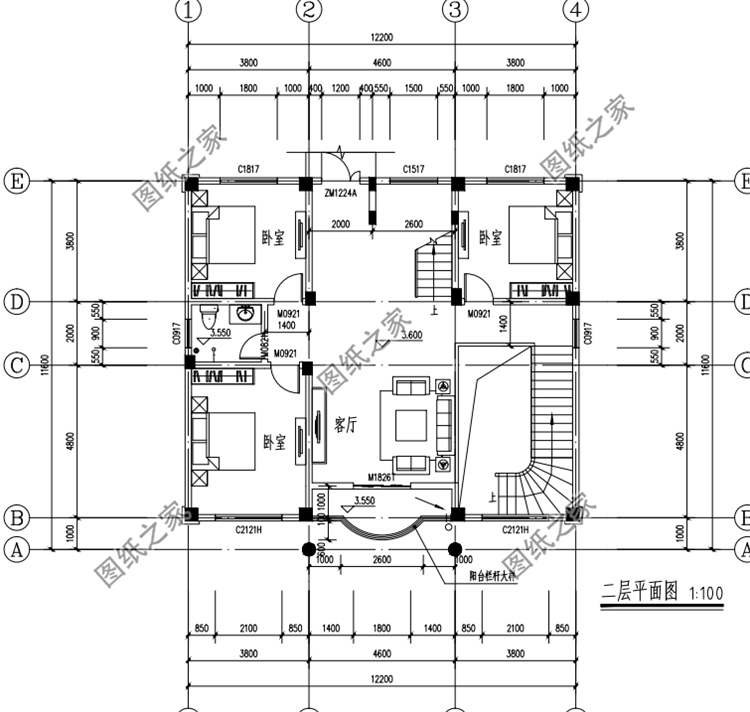
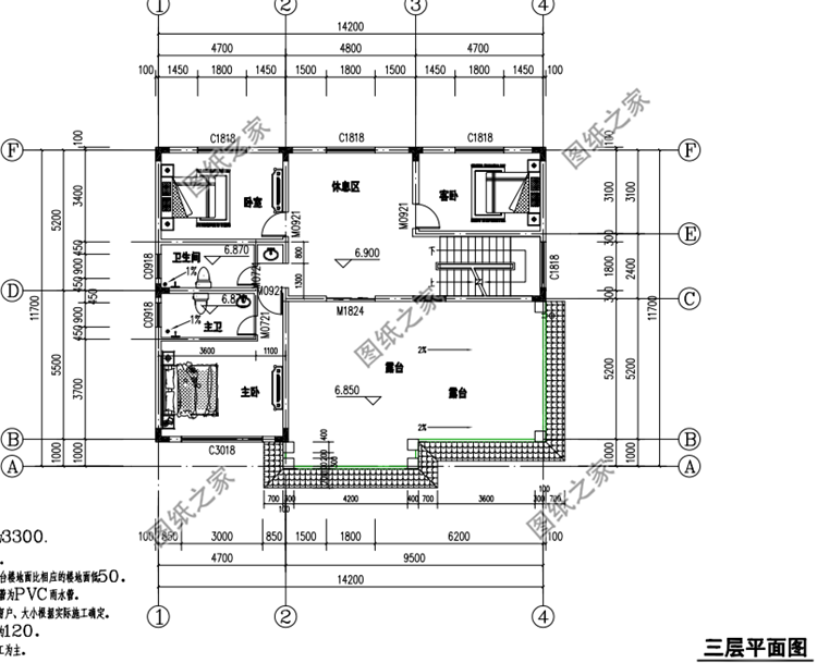
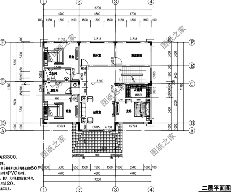
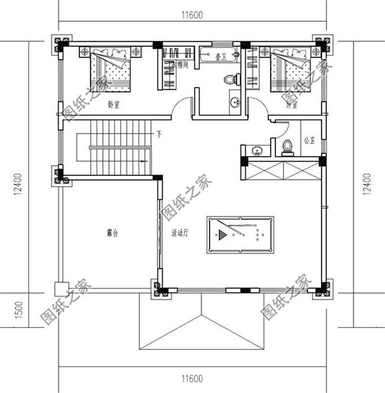
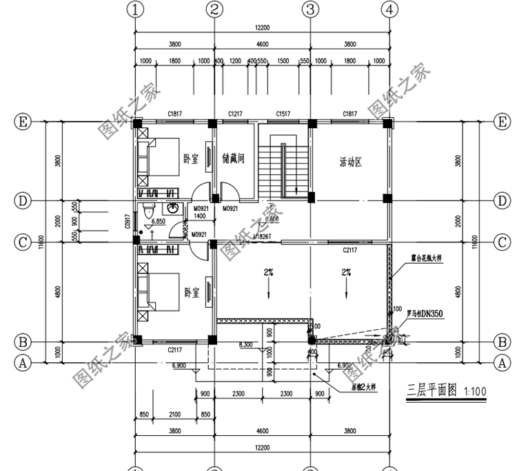
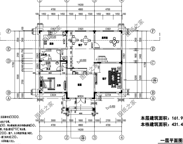
現在很多人會選擇建三層別墅,因為空間更合適,可以容納一大家族,最適合團圓。逢年過節,親戚拜訪想要留宿也不會顯得擁擠,給予主人足夠的體面,在親朋好友的面前也會從容得多。今天介紹三款2021農村新款別墅圖,不僅能給主人社交場合有體面感,還把生活細節考慮得面面俱到,可以給想要建房的朋友一個參考。 戶型一:農村三層別墅設計圖,占地160平米,新中式風格設計圖紙介紹:這款三層別墅占地160平米左右,新中式風格,不僅高端大氣上檔次,還很有文化品味,越住越有錢。中式在所有的款式風格里面,是公認最適合我們中國人居住的別墅,舒適度也是最好的。 占地面積:14.2m*11.7m,一層占地150平方米左右; 建筑層高:三層; 建筑高度:11.9米(含屋頂); 設計功能: 一 層:堂屋、客廳、廚房、餐廳、臥室(帶衛生間)、麻將室、衛生間; 二 層:起居室、主臥(帶衣帽間)、臥室(帶衛生間)、臥室、衛生間、娛樂室、家庭影院; 三 層:休息區、臥室(帶衛生間)、臥室×2、衛生間、大露臺; ![]() ![]() ![]() ![]() 戶型二:農村三層自建別墅設計圖,占地140平米,客廳中空設計圖紙介紹:這款三層自建別墅占地140平米左右,戶型實用,客廳中空設計,外觀大氣美觀。美的東西,總能在第一眼就給人驚艷的感覺。好的設計也是一樣。漂亮的戶型,一眼就能讓人心動。這款三層歐式別墅,外觀非常的漂亮,很值得一建。 占地面積:12.2m*11.6m,一層占地140平方米左右; 建筑層高:三層; 建筑高度:12.5米(含屋頂); 設計功能: 一 層:客廳、廚房、餐廳、臥室(帶衛生間)、臥室; 二 層:客廳上空、客廳、臥室x3、衛生間、陽臺; 三 層:臥室x2、衛生間、活動區、儲藏間、大露臺、陽臺; ![]() ![]() ![]() ![]() 戶型三:農村三層歐式別墅設計圖,簡歐風格,占地126平米左右圖紙介紹:這款三層自建別墅占地126平米左右,簡歐風格,人建人愛好戶型,戶型實用布局超贊的,村里蓋一棟鄉親都羨慕不已!紅色的坡屋頂,錯落有致,大露臺觀景視野極佳,樓上功能空間齊備,戶型方正舒適,外觀簡約耐看,造價實惠,絕對的小宅地蓋房的首選 占地面積:11.6m*12.4m,126平方米左右; 建筑層高:三層; 建筑高度:12.3米(含屋頂); 設計功能: 一層戶型:客廳、餐廳、廚房、臥室(帶衛生間)、棋牌室、衛生間; 二層戶型:客廳上空、起居室、臥室(帶衛生間衣帽間)、臥室套衛、臥室、衛生間、陽臺; 三層戶型:活動廳、臥室(帶衛生間衣帽間)、臥室、衛生間、露臺; ![]() ![]() ![]() ![]() 不知道這三款戶型大家喜歡哪一款?歡迎下方評論留言。
圖紙之家-專注農村別墅/自建房設計18年,集合國內200余位經驗豐富的設計師,被評為口碑最好的農村建筑設計公司! |

三層新中式別墅建筑設計圖紙及圖片,11.66m*9.76m,典雅耐看
占地:114平方米
12×12米農村二層經濟型自建房設計圖,設計了6間臥室
占地:140平方米
農村房子設計圖三層獨棟別墅方案,占地130平方米
占地:130平方米
小占地的農村別墅設計圖,占地僅72平米,參考造價不到15萬
占地:多戶型可選
大氣農村一層自建別墅方案,絕對讓人羨慕的“平房”
占地:158.39平方米
二層自建房屋設計圖,帶小院,帶地下室,外觀現代、時尚,內部
占地:200平米
140平歐式二層半帶露臺的獨棟別墅圖片,含全套設計圖
占地:140平方米
最漂亮五間一層自建別墅設計圖,布局實用顏值高!
占地:多戶型可選
簡歐復式四層別墅房屋設計圖,外觀圖高端、大氣
占地:143平方米
農村簡易二層樓設計圖,外觀簡單漂亮,經典時尚
占地:140平方米
120平二層別墅房屋設計圖,造型美觀、現代
占地:120平方米
農村最好看18萬左右兩層小樓圖,外觀、造型簡潔大方
占地:120平方米
最漂亮的一層平房圖片,全套設計圖+高清效果圖
占地:145平方米
平頂三層別墅設計方案,簡潔舒適大氣通透,12乘9米,打造理想住
占地:98.21平方米
面寬20多米二層新中式雙拼別墅設計圖,外觀漂亮時尚
占地:246.66平方米左
小戶型兄弟雙拼別墅房屋設計圖,帶外觀效果圖
占地:150平方米
2026二層農村新款別墅新式二層樓房設計圖,非常時尚
占地:多種戶型
2026最好看的農村三層樓房圖片及施工圖紙,客廳寬敞
占地:120平方米
帶商鋪挑高的三層別墅房屋設計圖,商鋪挑高,層高比較高
占地:118平方米
200平農村二層別墅設計圖,外觀現代簡約
占地:204平方米
推薦:10套新農村自建房設計圖,2026年最新設計
閱讀次數:4825737次
100套鄉村別墅圖片大全,2026年最新設計
閱讀次數:2492203次
6款農村蓋一層平房的設計圖,10萬元就能建起來
閱讀次數:1852637次
這11個一層農村自建房別墅火爆了朋友圈!我最喜歡戶型十!你呢
閱讀次數:750268次
農村6萬元建一層小別墅圖,你敢相信嗎
閱讀次數:567686次
農村5萬塊就能自建房,6套普通房子設計圖分享,你沒看錯!
閱讀次數:419410次
8套農村漂亮三間平房圖片,非常適合在農村修建!
閱讀次數:411197次
農村自建房化糞池怎么做?附方案及施工過程
閱讀次數:391783次
農村一層三間平房設計圖,告別土氣養老房,讓人忍不住點贊
閱讀次數:350581次
新農村二層樓房圖片造價12萬,挑一套回家建房吧!
閱讀次數:349126次
