
|
在農村建房的最大好處就是可以按照自己的心意建房子,這樣建出來的房子自己會喜歡不說還會有心理上的滿足感。而不像在城市里都是人家直接設計好的房子,不能按照自己的要求來,只能是別人設計好的。一般來說,在農村建兩三層的別墅就已經足夠一戶人住了,但是有的家庭人口多,有的是宅基地小,所以就只能往上建了。今天給大家帶來幾款農村四層別墅設計,快來看看吧。 別墅圖一:鄉村高檔四層豪華別墅圖片一層不帶餐廳廚房,餐廳廚房設計到了三層,更適宜四層布局,含全套CAD設計施工圖,別墅氣派豪華。由于占地面積不大,只能加層高,才能滿足家庭所有成員的需求。落地窗和多個窗戶設計,優化室內的透光度和空氣流通,不會讓室內顯得陰暗緊湊。除了必不可少的日常生活功能空間外,該戶型還配有了健身房、娛樂室、KTV室等休閑娛樂功能,日常生活之余增加休閑娛樂活動。
別墅效果圖 占地面積:11.8m*14.1m,147平方米左右; 建筑層高:四層; 建筑高度:16.05米(含屋頂); 設計功能: 一層戶型:大廳、客廳、臥室(帶衛生間)、KTV(帶衛生間)、過道、衛生間、娛樂室; 二層戶型:客廳上空、客廳、臥室(帶衛生間)x3、衣帽間、陽臺; 三層戶型:客廳、餐廳、廚房、臥室(帶衛生間衣帽間)、臥室(帶衣帽間)、臥室、衛生間、露臺; 四層戶型:客廳、娛樂室、健身房、衛生間、露臺;
背面效果圖
鳥瞰效果圖
一層平面圖
二層平面圖
三層平面圖
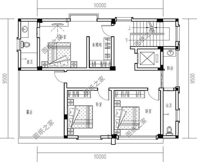
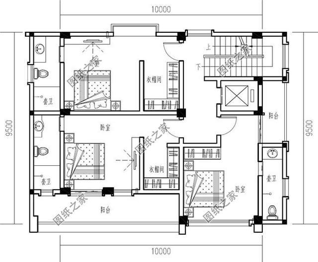
四層平面圖 別墅圖二:80平方米農村四層房屋設計圖紙及效果圖現代風格,帶車庫設計,現代簡約風別墅,追尋的是時尚、簡潔、實用性強。多陽臺、多露臺設計,外形頗具立體感,車庫便于有車的家庭停放車輛,避免車子遭到風吹日曬雨淋,能夠更好地養護愛車,室內設有多個臥室,還有多個臥室套間,愜意便捷,在農村建一棟,占地小、造價低。
別墅效果圖 占地面積:10m*9.5m,80平方米左右; 建筑層高:四層; 建筑高度:18.8米(含屋頂); 設計功能: 一層戶型:車庫、衛生間、電梯; 二層戶型:客廳、廚房、餐廳、茶座、衛生間、陽臺、電梯; 三層戶型:臥室(帶衛生間、衣帽間)x2、臥室、衛生間、陽臺、電梯; 四層戶型:臥室(帶衛生間、衣帽間)、臥室x2、衛生間、陽臺、露臺;
背面效果圖
鳥瞰效果圖
一層效果圖
二層效果圖
三層效果圖
四層效果圖 別墅圖三:新款私人定制四層歐式獨棟住宅別墅設計圖紙這款歐式風格的別墅,給人以嫻雅高貴之感,從內到外重視品質感的締造,建筑外立面上的拱形落地窗,以及多處陽臺等,不僅可使房屋造型更為豐富,同時也提升了生活體驗,是一套適宜大家庭生活的高品質別墅。
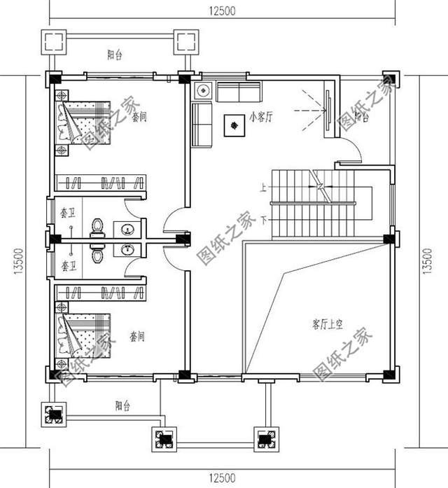
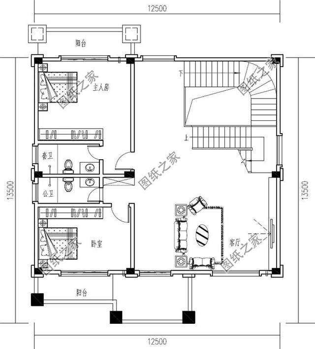
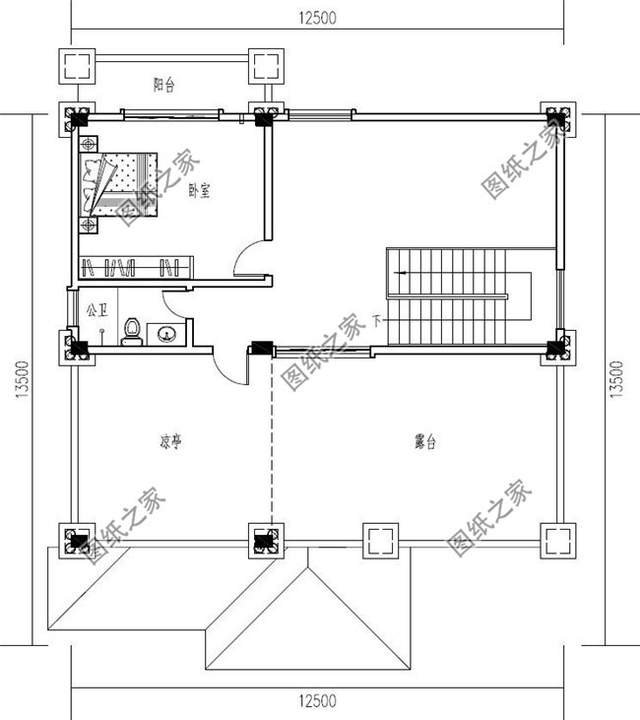
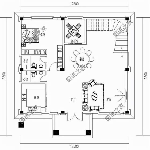
別墅效果圖 占地面積:12.5m*13.5m,138平方米左右; 建筑層高:四層; 建筑高度:16.43米(含屋頂); 設計功能: 一層戶型:門廳、客廳、廚房、餐廳、娛樂室、臥室(帶衛生間)、衛生間; 二層戶型:客廳、主人房(帶衛生間)、臥室、衛生間、陽臺; 三層戶型:客廳上空、小客廳、臥室(帶衛生間)x2、陽臺; 四層戶型:臥室、衛生間、涼亭、露臺;
背面效果圖
鳥瞰效果圖
一層平面圖
二層平面圖
三層平面圖
四層平面圖 以上就是今天的內容了,有想法的朋友們可以收藏一下。 圖紙之家-專注農村別墅/自建房設計18年,集合國內200余位經驗豐富的設計師,被評為口碑最好的農村建筑設計公司! |

西班牙風格農村二層樓房設計圖及效果圖,實用美觀
占地:170平方米
二層新中式小別墅設計圖紙,舒適實用,16米乘12米
占地:189.88平方米
100平方米農村二層CAD設計圖紙帶外觀圖,12X8米
占地:100平方米
全套歐式二層別墅設計cad圖紙,含效果圖,帶車庫
占地:211平方米
簡單大氣的農村二層樓設計圖,二層歐式農村別墅設計圖
占地:180平方米
小青瓦一層中式小院三合院設計施工圖,白墻青瓦古色古香
占地:155.3平方米
18米乘10米一層農村自建房設計圖,大方耐看符合傳統對稱美
占地:180平方米
農村60萬三層別墅新款式設計圖,外觀和實用性并駕齊驅
占地:170平方米
農村16萬一層平房小院設計圖,左右對稱布局好,南北方都能建
占地:195.9平方米
現代簡約時尚二層帶超大露臺農村別墅戶型,既可以休閑又可晾曬
占地:100.06平方米
“L”字形二層別墅設計圖,獨立餐廚加連體露臺,太美了
占地:多戶型可選
最漂亮五間一層自建別墅設計圖,布局實用顏值高!
占地:多戶型可選
最實用一層小別墅設計方案,造價不高顏值高,家家都喜歡!
占地:143.48平方米
自建一層農村別墅圖,經濟實用新選擇,建房必備參考戶型!
占地:142.88平方米
豪華新中式兩層半農村別墅設計圖,繁華之外,心之所向
占地:290.4平方米
最新三層農村別墅設計圖紙,推薦農村自建
占地:106平方米
2026二層農村新款別墅圖片及施工圖,新中式風格古典大氣
占地:200平方米
農村一層養老別墅設計圖,14.8x17.9米,戶型對稱,實用布局
占地:193平方米
面寬12米新中式三層別墅設計圖,回家建房就選它,全家人都愛的
占地:180平方米
最火現代風三層半別墅設計圖,時尚簡約寬敞舒適
占地:169平方米
推薦:10套新農村自建房設計圖,2026年最新設計
閱讀次數:4825737次
100套鄉村別墅圖片大全,2026年最新設計
閱讀次數:2492203次
6款農村蓋一層平房的設計圖,10萬元就能建起來
閱讀次數:1852637次
這11個一層農村自建房別墅火爆了朋友圈!我最喜歡戶型十!你呢
閱讀次數:750268次
農村6萬元建一層小別墅圖,你敢相信嗎
閱讀次數:567686次
農村5萬塊就能自建房,6套普通房子設計圖分享,你沒看錯!
閱讀次數:419410次
8套農村漂亮三間平房圖片,非常適合在農村修建!
閱讀次數:411197次
農村自建房化糞池怎么做?附方案及施工過程
閱讀次數:391783次
農村一層三間平房設計圖,告別土氣養老房,讓人忍不住點贊
閱讀次數:350581次
新農村二層樓房圖片造價12萬,挑一套回家建房吧!
閱讀次數:349126次
