
|
現在農村建房別墅造型多種多樣,一棟好看的別墅,注定需要一個好的設計圖,四層別墅對比坡屋頂還是覺得平屋頂最適合,即符合整體樓房的設計還能方便在上面晾曬而且能讓施工簡單降低建房費用簡直是一舉多的得下面看一看這兩款平屋頂四層小別墅值得推薦 款式一:新農村小戶型4層別墅設計圖紙及效果圖大全第一款三層半自建房戶型圖,平屋頂設計,帶健身房,這款四層別墅是典型的平屋頂設計,平屋頂用在高層的別墅當中是比較美觀的。外觀造型別致,一層是客廳廚房衛生間二層三層是居住和娛樂的地方布局合理。 占地面積:8.18m*11.65m,95平方米左右; 建筑層高:四層; 建筑高度:15.74米(含屋頂);
正面效果圖
背面效果圖
鳥瞰圖
一層平面圖 設計功能: 一層戶型:玄關、客廳、廚房、餐廳、衛生間;
二層平面圖 二層戶型:客廳、書房、臥室(帶衛生間衣帽間)、臥室、衛生間、陽臺;
三層平面圖 三層戶型:客廳、書房、臥室(帶衛生間衣帽間)、臥室、衛生間、陽臺;
四層平面圖 四層戶型:臥室、健身房、工具房、洗衣房、衛生間、露臺; 款式二:80平方米農村四層房屋設計圖紙及效果圖第二款是占地80平米四層房屋設計圖,現代簡約風格,帶車庫設計,多陽臺、多露臺設計,外觀立體感十足,車庫方便有車一族的家庭停放車輛,避免車子遭受風吹日曬,室內設有多個臥室,滿足大部分人的需求在農村建一棟,占地小、造價低,建一棟超級有面. 占地面積:10m*9.5m,80平方米左右; 建筑層高:四層; 建筑高度:18.8米(含屋頂);
正面效果圖
背面效果圖
鳥瞰圖
一層平面圖 設計功能: 一層戶型:車庫、衛生間、電梯;
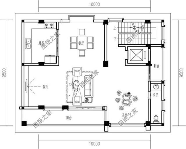
二層平面圖 二層戶型:客廳、廚房、餐廳、茶座、衛生間、陽臺、電梯;
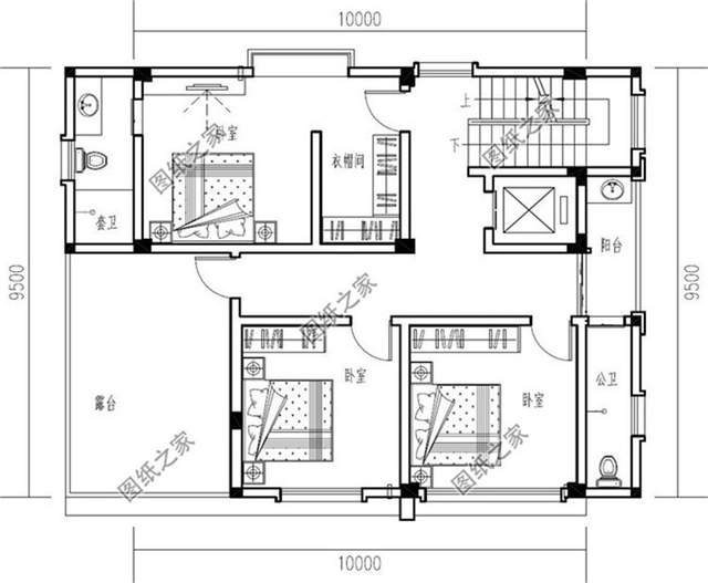
三層平面圖 三層戶型:臥室(帶衛生間、衣帽間)x2、臥室、衛生間、陽臺、電梯;
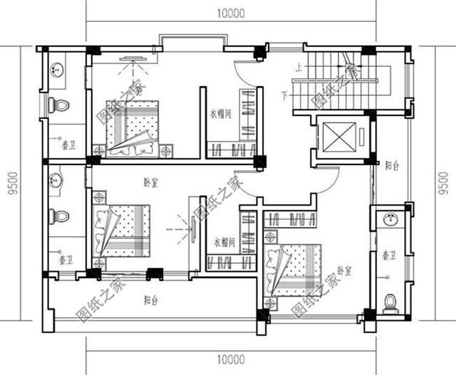
四層平面圖 四層戶型:臥室(帶衛生間、衣帽間)、臥室x2、衛生間、陽臺、露臺; 以上這兩款不寫錯的戶型,趕緊拿回去和家人們一起探討探討吧。 圖紙之家-專注農村別墅/自建房設計18年,集合國內200余位經驗豐富的設計師,被評為口碑最好的農村建筑設計公司! |

100-140平多戶型二層經典新農村小別墅設計建筑圖紙
占地:多種戶型
獨棟小別墅設計圖,造價30萬左右的獨棟小別墅設計推薦
占地:150平方米
中式三層新農村房子別墅設計圖,看了那么久,還是中式最有韻味
占地:97.2平方米
200平方農村三層別墅房屋設計圖及效果圖,大戶型精選
占地:200平方米
鄉村一層帶閣樓歐式小別墅,“L”型七字設計戶型
占地:194.218平方米
125平兩層別墅房屋設計圖,帶普通和復式兩個戶型
占地:125平方米
15×10米農村二層四合院自建房戶型圖,小型四合院設計圖
占地:150平方米
120平方房子設計圖,農村120平建房設計圖推薦
占地:122平方米
農村60萬三層別墅新款式設計圖,外觀和實用性并駕齊驅
占地:170平方米
帶獨立堂屋的農村自建房設計,二層別墅設計方案圖
占地:109平方米左右
帶電梯高端四層別墅房屋設計圖,外觀圖大氣、上檔次
占地:220平方米
居家養老一層別墅設計圖,面寬20米,農村建一棟不吃虧
占地:259.7平方米
簡單大氣農村兄弟三層雙拼別墅住宅設計圖,13X8米
占地:110平方米左右
一層鄉村別墅設計戶型圖,占地100平左右,外觀很時尚
占地:100平方米左右
160-170平方米二層自建別墅設計CAD圖紙帶效果圖,田園風
占地:167平方米左右
陽臺封閉的簡約實用二層別墅設計圖,15x12.8米
占地:165平方米
二層美式花園洋房設計圖,帶堂屋戶型,外觀簡直美爆了
占地:159.32平方米
適合回鄉建的三合院平房設計圖,舒適又接地氣
占地:213.96平方米
爆火農村養老房設計:16 米面寬一層戶型,自住養老全拿捏
占地:169.87平方米
客廳中空三層復式別墅房屋設計圖,帶外觀效果圖
占地:145平方米
推薦:10套新農村自建房設計圖,2026年最新設計
閱讀次數:4825737次
100套鄉村別墅圖片大全,2026年最新設計
閱讀次數:2492203次
6款農村蓋一層平房的設計圖,10萬元就能建起來
閱讀次數:1852637次
這11個一層農村自建房別墅火爆了朋友圈!我最喜歡戶型十!你呢
閱讀次數:750268次
農村6萬元建一層小別墅圖,你敢相信嗎
閱讀次數:567686次
農村5萬塊就能自建房,6套普通房子設計圖分享,你沒看錯!
閱讀次數:419410次
8套農村漂亮三間平房圖片,非常適合在農村修建!
閱讀次數:411197次
農村自建房化糞池怎么做?附方案及施工過程
閱讀次數:391783次
農村一層三間平房設計圖,告別土氣養老房,讓人忍不住點贊
閱讀次數:350581次
新農村二層樓房圖片造價12萬,挑一套回家建房吧!
閱讀次數:349126次
