
|
農村建房的風格多種多樣,但是要是說最適合也受歡迎的風格,那么新中式必是其一。傳統的優雅加上現代的線條美,獨特的結合設計,帶給人以視覺的超高享受,讓人印象深刻。外觀不僅美觀,內部也居住舒適,帶著露臺的設計也增加了別墅的實用性,可以休閑也可以娛樂,想想在露臺上端著酒杯看風景,或者辦個燒烤聚餐,那該是多愜意啊。今天給大家帶來三款新中式二層別墅設計圖,一起來看看吧。 別墅圖一:農村兩層新中式自建房設計圖雙廚房(或廚房和灶房或廚房和鍋爐房)可根據實際情況進行分配,氣質優雅端莊。別墅布局精美,隱私性強,各空間分布均勻,一樓兩間臥室內衛,二樓休息空間多,能滿足親朋好友的需求。整體反復打磨。只是為了創造更好的生活空間。
別墅效果圖 占地面積:13.5m*13.2m,140平方米; 建筑層高:二層; 建筑結構:框架結構; 主體造價:23萬 建筑高度:9.37米(含屋頂); 設計功能: 一層戶型:客廳、餐廳、廚房、土灶、娛樂室、臥室(帶衛生間)x2、; 二層戶型:起居室、臥室、臥室(帶衛生間)x2、露臺;
一層平面圖
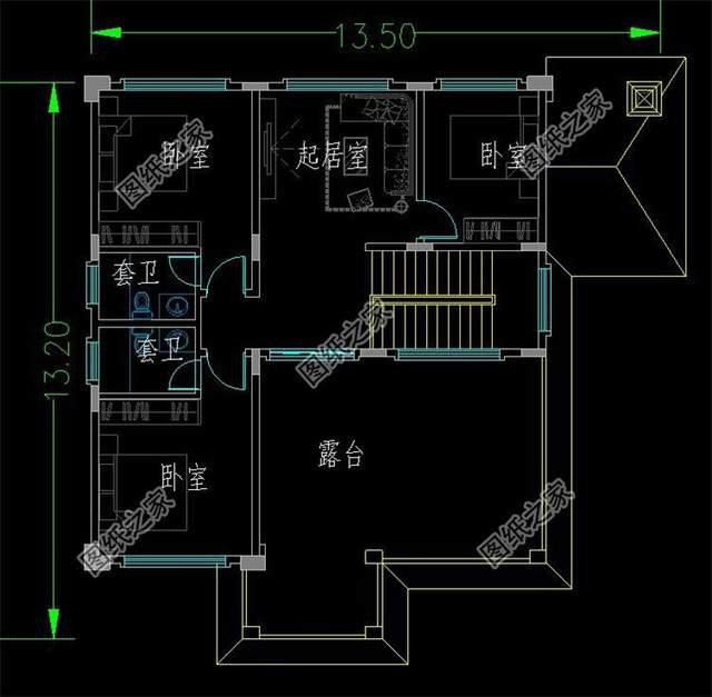
二層平面圖 別墅圖二:新中式二層農村小樓房別墅設計圖紙房型圖方正,外型圖大氣!米白色外墻涂料與淺灰色仿石涂料配搭精致墻體,簡約大氣,不失總體級別,超當代與質感。餐廳和餐廳廚房相接,功能分區更為靈活,一面通高落地玻璃窗,讓陽光與日常生活共行,單獨的小書房傾角,工作中清靜,奢享平靜室內空間。五間臥房,光照多,好用舒服。正中間大客廳是一個非常好的時尚休閑休閑娛樂會所,挨近陽臺的氣體流通性很強。陽臺能有效地達到日常晾干的需要,十分舒服。
別墅效果圖 占地面積:13m*13m,143平方米左右; 建筑層高:二層; 建筑高度:8.684米(含屋頂); 設計功能: 一層戶型:客廳、廚房、餐廳、柴火房、臥室、臥室(帶衛生間)、衛生間; 二層戶型:起居室、書房、臥室x2、臥室(帶衛生間)、衛生間、露臺;
一層平面圖
二層平面圖 別墅圖三:新中式風格二層住宅設計圖總會有一部分人覺得農村房子較為俗氣,并不像大城市里的房屋那麼高。實際上這真的是一種成見。如今農村人的錢夾鼓起,愈來愈重視房屋的外型。這座別墅的設計師選用簡潔的工程建筑技巧,使房屋的外形整潔美觀大氣,內部舒服好用,價錢經濟實惠。
別墅效果圖 占地面積:15.8m*10.66m,144.5平方米; 建筑層高:二層; 建筑高度:9.53米(含屋頂); 設計功能: 一層戶型:客廳、大廳、廚房、餐廳、臥室(帶衛生間)、臥室、衛生間; 二層戶型:起居室、臥室(帶衛生間)、臥室x2、衛生間、露臺、涼亭(帶頂)
一層平面圖
二層平面圖 以上就是今日分享的所有內容了,希望大家會喜歡。喜歡的話記得收藏喲。 圖紙之家-專注農村別墅/自建房設計18年,集合國內200余位經驗豐富的設計師,被評為口碑最好的農村建筑設計公司! |

在農村30萬可以建造的三層別墅款式,帶別墅外觀圖片
占地:138平方米
125平方米新農村二層房屋施工設計CAD圖紙加效果圖
占地:125平方米
農村二層舒適好房,這款四開間別墅設計圖真的很不錯
占地:220.46平方米
農村中式兩層雙拼別墅房屋設計圖,含效果圖片
占地:200平方米
小戶型經濟型三層雙拼小別墅施工設計圖紙,單戶100平內
占地:150平方米
二層半大客廳復式別墅房屋設計圖,客廳寬闊明亮
占地:125平方米
帶院子的一層農村別墅設計圖,造價不高,養老房首選!
占地:144.819平方米
14x12.5米二層農村別墅設計圖,布局完美獨立,顏值高又實用
占地:153.95平方米
農村三層蓋房設計圖大全,最新的設計,最新的戶型
占地:150平方米
農村建房兄弟雙拼三層,經典的歐式風格,大氣的外觀
占地:250平方米
面寬8米多的三層農村別墅設計圖,小開間宅基地推薦
占地:112.82平方米
160平方農村三層別墅CAD設計圖紙,含外觀圖片效果圖
占地:156平方米
帶小院新農村房屋設計圖紙,三層別墅推薦
占地:115平方米
私人二層中式四合院別墅建筑設計圖,新農村經濟實用戶型
占地:145平方米
100平方米自建三層半別墅設計圖紙,帶地下車庫
占地:100平方米
地中海風格二層別墅房屋設計圖,帶外觀效果圖
占地:150平方米
16×12米二層歐式帶車庫農村小別墅,既舒適又美觀
占地:180平方米
鄉村二層別墅設計圖,含外觀效果圖,設計師推薦
占地:140平方米
農村兄弟雙拼平房別墅設計圖,獨門獨戶,一層也能建雙拼
占地:274.18平方米
帶陽光房的二層簡歐別墅圖紙,戶型經典實用
占地:147.2平方米
推薦:10套新農村自建房設計圖,2026年最新設計
閱讀次數:4825737次
100套鄉村別墅圖片大全,2026年最新設計
閱讀次數:2492203次
6款農村蓋一層平房的設計圖,10萬元就能建起來
閱讀次數:1852637次
這11個一層農村自建房別墅火爆了朋友圈!我最喜歡戶型十!你呢
閱讀次數:750268次
農村6萬元建一層小別墅圖,你敢相信嗎
閱讀次數:567686次
農村5萬塊就能自建房,6套普通房子設計圖分享,你沒看錯!
閱讀次數:419410次
8套農村漂亮三間平房圖片,非常適合在農村修建!
閱讀次數:411197次
農村自建房化糞池怎么做?附方案及施工過程
閱讀次數:391783次
農村一層三間平房設計圖,告別土氣養老房,讓人忍不住點贊
閱讀次數:350581次
新農村二層樓房圖片造價12萬,挑一套回家建房吧!
閱讀次數:349126次
