
|
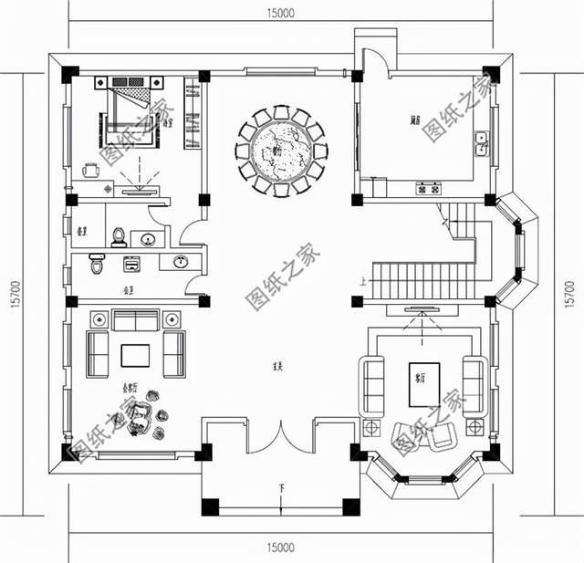
在農村有一棟屬于自己的別墅實在是一件讓人覺得很開心的事情,不僅生活靜謐,還能體會到城里人體會不到的新鮮的空氣,優美的原野風景。但是一般來說審批下來的宅基地都不是很大,而家中人口多的家庭,或者兄弟姐妹都住在一起的人家,一般的二三層都是不夠住的。今天給大家帶來三款有陽臺的四層樓房設計圖紙,房間很多,肯定是夠住了,一起來看看吧。 別墅圖一:新款農村四層復式別墅設計圖紙及效果圖外立面清爽別具一格。這座獨棟別墅有經典的歐式外型,大氣的建筑物線條,高聳的立柱式設計方案,漂亮的弧型落地玻璃窗,散落的露臺陽臺。總體設計風格細節精美。而多窗的設計又保證了建筑的采光和通風,提高了生活的舒適程度,整體配色雖素但柔和,第一眼望上去就讓人印象深刻。最引人矚目的制定取決于獨棟別墅的門框設計方案,直達三層,華燈初上,房間內溫暖的光線閃爍,肯定是全鄉最璀璨奪目的一座。
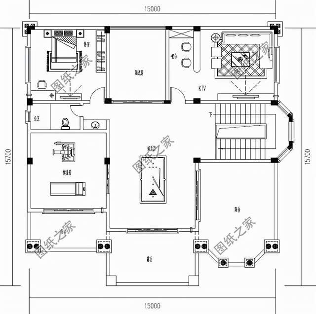
別墅效果圖 占地面積:15m*15.7m,207平方米左右; 建筑層高:四層; 建筑高度:16.48米(含屋頂); 設計功能: 一層戶型:玄關、客廳、會客廳、廚房、餐廳、臥室(帶衣帽間)、衛生間; 二層戶型:客廳上空、客廳、書房、臥室(帶衛生間)x2、臥室、衛生間; 三層戶型:客廳、書房、儲物間、臥室(帶衛生間)x2、臥室、衛生間; 四層戶型:娛樂廳、KTV、健身房、陽光房、臥室、衛生間、陽臺、露臺;
背面效果圖
鳥瞰效果圖
一層平面圖
三層平面圖
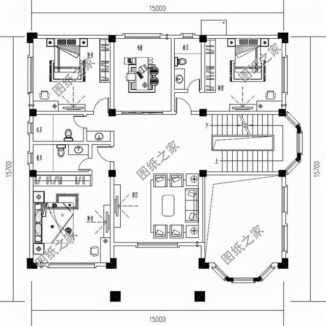
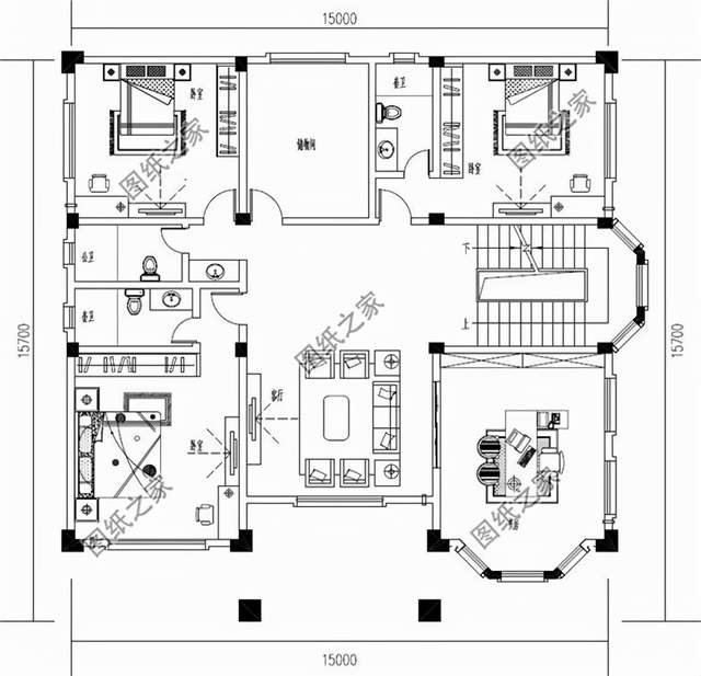
四層平面圖 別墅圖二:農村四層樓房外觀效果圖及全套設計圖房間內透亮+多陽臺設計,簡歐風格確實不一般!這也是一棟四層別墅,房間內臥房多,戶外休閑陽臺多。簡易的歐式風格設計方案,墻體以米白色墻磚為主導,小量深棕色墻磚用浮雕圖案裝飾設計,深藍色屋面瓦時尚潮流簡潔。入口選用小階梯,樓層高,造型設計美觀大方,十分時尚。一樓二間帶獨立衛浴的父母房設計,餐廳側邊開關門,提高房間內通透性,便捷出入。雙層和三層的布置是一樣的是一樣的,讓家庭生活有充足的休閑娛樂場地。三樓配有觀景露臺,擴大主人家的活動空間。
別墅效果圖 占地面積:12.6m*14.4m,163.84平方米左右; 建筑層高:四層; 建筑高度:17.238米(含屋頂); 設計功能: 一層戶型:堂屋\客廳、廚房、餐廳、儲藏間、臥室(帶衛生間)x2、衛生間; 二層戶型:客廳、臥室(帶衛生間)x2、臥室x2、衛生間、陽臺x2; 三層戶型:客廳、臥室(帶衛生間)x2、臥室x2、衛生間、陽臺x2; 四層戶型:客廳、臥室x4、衛生間、露臺x4;
一層平面圖
二層平面圖
三層平面圖
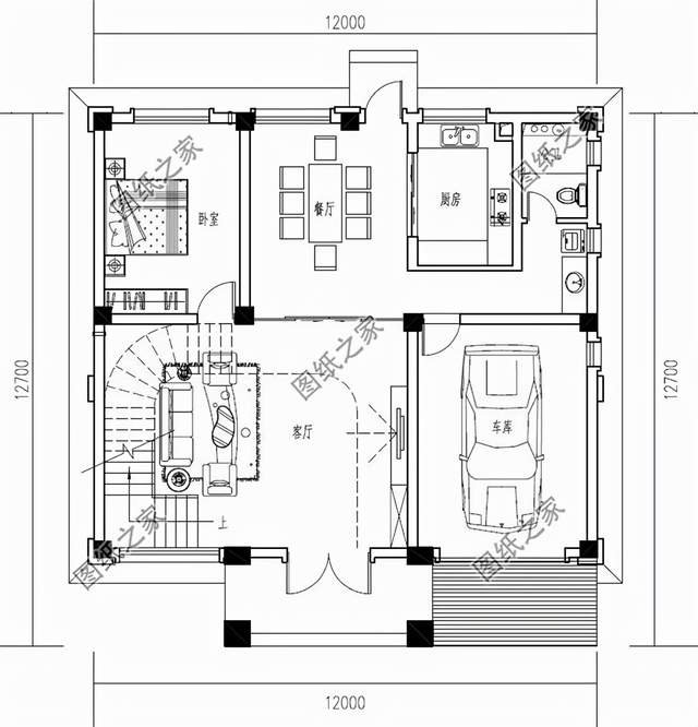
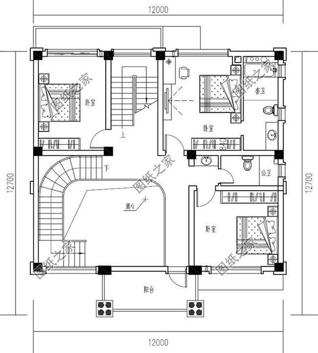
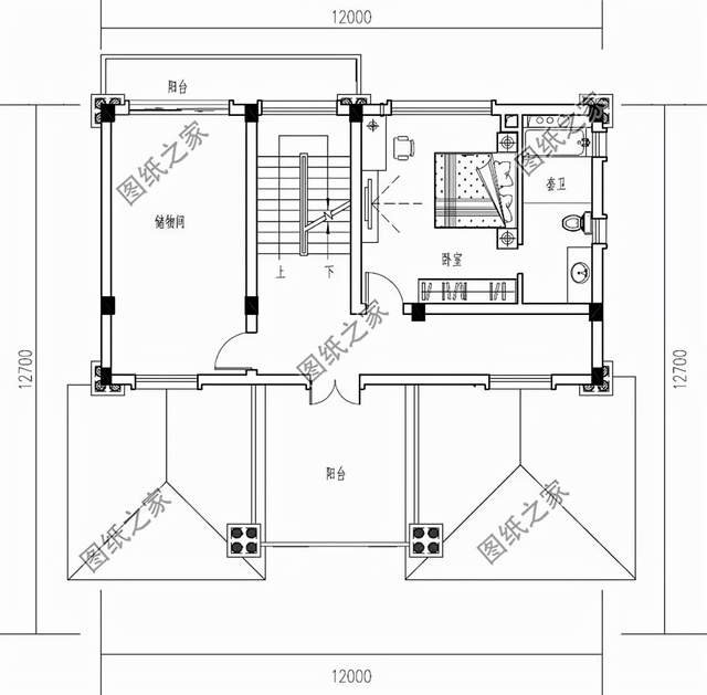
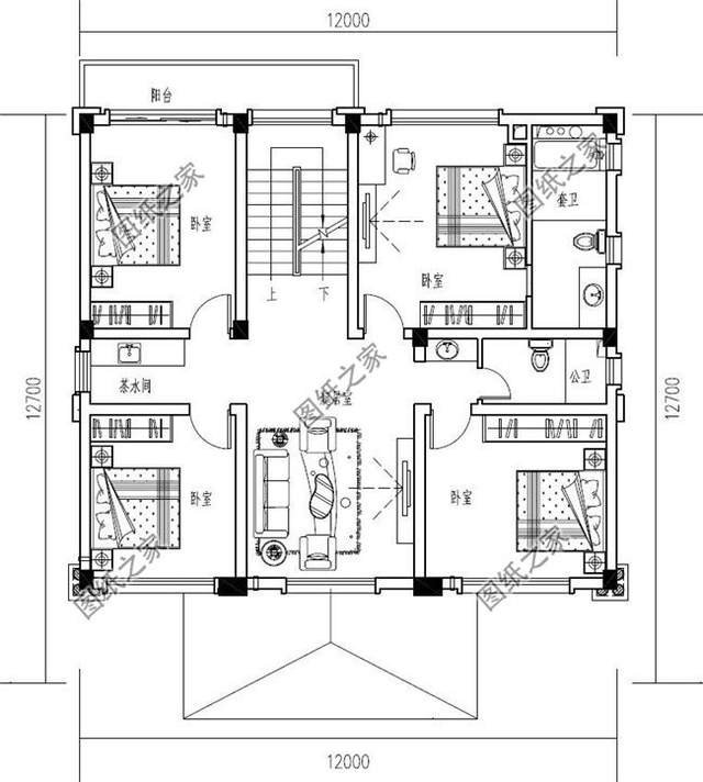
四層平面圖 別墅圖三:簡歐式三層半(四層)農村自建房別墅設計圖效果圖帶車庫,房型方正大氣,外型和布置設計方案萬里挑一。與低層農村自建房對比,四層自建房在樓高上是一個優點,必須體現其氛圍。帶羅馬的柱的設計也讓建筑隱約帶上一種歷史的沉淀感,也讓整個房型更加大氣。這也是一套工程建筑氛圍與精美極致融合的獨棟別墅,多窗設計方案保障了屋內光照和通透性,也極大地提高了通風的程度,讓生活更加舒適。
別墅效果圖 占地面積:12m*12.7m,127平方米左右; 建筑層高:四層; 建筑高度:15.66米(含屋頂); 設計功能: 一層戶型:客廳、廚房、餐廳、臥室、衛生間、車庫; 二層戶型:客廳上空、臥室(帶衛生間)、臥室x2、衛生間、陽臺; 三層戶型:起居室、臥室(帶衛生間)、臥室x3、茶水間、衛生間; 四層戶型:臥室(帶衛生間)、儲物間、陽臺;
背面效果圖
鳥瞰效果圖
一層平面圖
二層平面圖
三層平面圖
四層平面圖 以上就是今天帶給大家的全部內容了,感興趣的朋友記得收藏評論喲。 圖紙之家-專注農村別墅/自建房設計18年,集合國內200余位經驗豐富的設計師,被評為口碑最好的農村建筑設計公司! |

新農村二層小別墅全套設計圖紙(含外觀效果圖)
占地:85.6平方米
農村中式一層合院別墅設計圖,帶小院子規劃設計
占地:202平方米左右
經濟實惠一層戶型圖,農村養老房舒適至上,簡約而不失溫馨
占地:147.5平方米
10萬內2層小洋樓設計圖,平屋頂,戶型設計合理
占地:90平方米
歐式獨棟二層小別墅設計圖,客廳中空,占地126平米
占地:120平方米
一層田園風坡屋頂平房設計圖,造型漂亮時尚
占地:134.9平方米
農村四層雙拼別墅房屋設計圖,造型現代、大氣
占地:220平方米
140平方米新農村復式自建房子,三層別墅建筑圖紙及效果圖
占地:138平方米
漂亮實用三層自建別墅設計圖紙,超高的性價比
占地:160平方米
面寬不到8米的農村二層半別墅建筑圖紙及效果圖
占地:96平方米左右
120平米農村三層房屋設計圖,客廳中空,戶型合理
占地:120平方米
140平三層復式別墅設計圖及外觀效果圖
占地:140平方米
三間三層房子設計圖,高端三層樓房設計圖,三層兩個大露臺
占地:170平方米
兩層半樓房設計圖及效果圖,農村二層房屋設計圖推薦
占地:135平方米
三間三層樓房設計圖紙,復試的設計,漂亮的一塌糊涂
占地:175平方米
不帶廚房餐廳的二層別墅設計圖,農村建房很多人都這樣做
占地:124平方米左右
20萬左右普通農村房子設計圖,二層簡約小別墅
占地:140平方米
新農村簡歐三層樓房圖片自建3層別墅施工設計圖及效果圖
占地:126平方米
好看又簡單的二層小樓設計圖,農村自建20萬元左右
占地:130平方米
農村二層半樓房效果圖及全套設計圖紙,自建房簡單實用
占地:121平方米
推薦:10套新農村自建房設計圖,2026年最新設計
閱讀次數:4825737次
100套鄉村別墅圖片大全,2026年最新設計
閱讀次數:2492203次
6款農村蓋一層平房的設計圖,10萬元就能建起來
閱讀次數:1852637次
這11個一層農村自建房別墅火爆了朋友圈!我最喜歡戶型十!你呢
閱讀次數:750268次
農村6萬元建一層小別墅圖,你敢相信嗎
閱讀次數:567686次
農村5萬塊就能自建房,6套普通房子設計圖分享,你沒看錯!
閱讀次數:419410次
8套農村漂亮三間平房圖片,非常適合在農村修建!
閱讀次數:411197次
農村自建房化糞池怎么做?附方案及施工過程
閱讀次數:391783次
農村一層三間平房設計圖,告別土氣養老房,讓人忍不住點贊
閱讀次數:350581次
新農村二層樓房圖片造價12萬,挑一套回家建房吧!
閱讀次數:349126次
