
|
由鄉下到大城市里打拼的人,在外奮斗多年,手頭存夠了就會選擇衣錦還鄉。回家鄉建一座美麗的別墅,讓自己多年后在這寬闊的世界上,能有個屬于自己的小窩,不求多大,就想要平安無事,給自己多年后的一個完美句號。 別墅圖一介紹:80平方米鄉村一層帶閣樓的自建別墅設計圖這一款別墅帶車庫設計十分適合當下有車一族的農村人,外觀簡單干練,灰色的外墻磚,簡約大氣的方柱組合賦予了住宅簡約感。沒有過多的線條組成的裝飾手法而是選用長長的走廊,構成建筑明亮舒適的格局。屋頂采用的是傳統的坡屋頂,建筑的層次感更分明,舒適感更全面,排水性極強,紅色的屋頂也會給人們一種家的溫柔,排水性能也好。弧形的窗戶進一步得提升了屋內的荷力。農村一層的設計特別適合人口不是很多的家庭居住。 占地面積:10.76m*7.76m,80平方米左右; 建筑層高:一層; 建筑高度:7.2米(含屋頂);
正面效果圖
鳥瞰效果圖
側面效果圖 設計功能:
一層戶型圖 一層戶型:走廊、客廳、餐廳、廚房、臥室、衛生間、車庫;
閣樓戶型圖 閣樓戶型:棋牌室、儲藏間、臥室x2、衛生間; 別墅圖二介紹:帶車庫的七字形二層自建房子的設計圖本款別墅占地249平,是一款帶車庫的戶型圖紙。且外觀簡約時尚巧妙地使用三種材質,暗紅色的真石漆搭配粉紅的真石漆以及底部的文化磚展現建筑的色彩多樣性。七字型的占地也非常實用將車庫獨立設計,方便出入。入戶的堂屋空間不小,像家里舉辦聚會、party都可以在里面舉辦,一樓的獨立衣帽間為屋內儲藏提供了不錯的效果。二樓的陽光房為戶主提供了可以休閑娛樂的場所,在里面種植花草打造天然氧吧。 占地面積:14m*20m,240.18平方米左右;
正面效果圖
鳥瞰效果圖
側面效果圖
一層平面圖
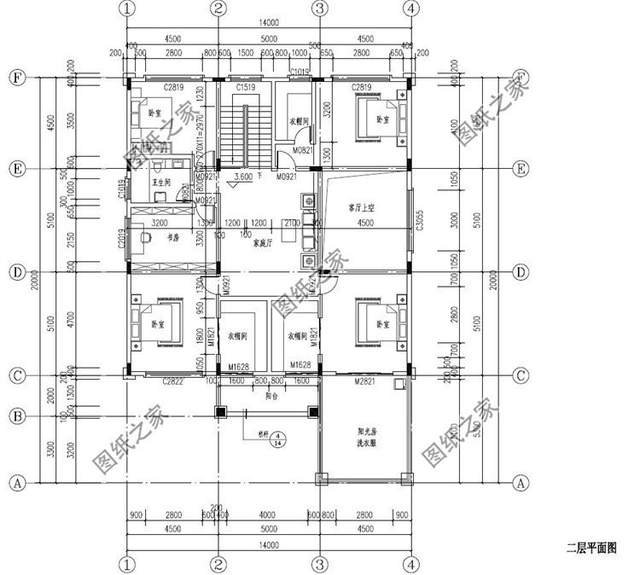
二層平面圖 二層戶型:客廳上空、家庭廳、臥室(帶衣帽間)x3、臥室、書房、衛生間、陽臺; 別墅圖三介紹:農村二層帶車庫四合院別墅設計圖這款別墅戶型實用方便,相對而言還是有很多人喜歡中式合院設計,其設計理念注重一套合字,一家一家就愛熱鬧。這種鄉下四合院具有數百年歷史的中國文化習俗和生活習性,文化底蘊深厚,典雅大氣,不落俗氣,規模宏大。白色墻壁黛瓦,古色古香的房屋,木柵欄提升住宅的質感。室內功能更加豐富完備,能很好地滿足現代生活,在老宅中建造這樣一座別墅可造福后代。 占地面積:22.2m*16m,247平方米左右; 建筑層高:二層; 建筑高度:8.58米(含屋頂);
正面效果圖
鳥瞰效果圖
側面效果圖 設計功能:
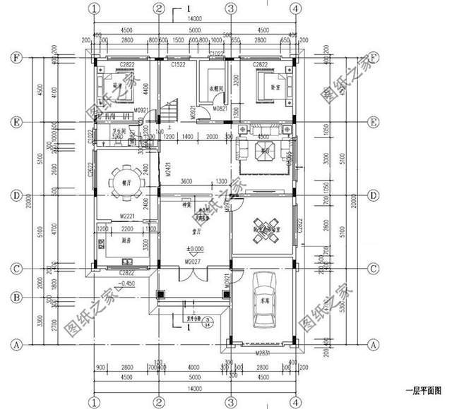
一層平面圖 一層戶型:庭院、堂屋、廚房、餐廳、臥室(帶衛生間)x3、臥室、衛生間、車庫;
二層平面圖 二層戶型:客廳、茶室、臥室(帶衛生間)x3、臥室x2、衛生間、露臺; 圖紙之家-專注農村別墅/自建房設計18年,集合國內200余位經驗豐富的設計師,被評為口碑最好的農村建筑設計公司! |

普通簡單的平屋頂二層房子設計,造價低施工簡單
占地:151.04平方米
16米乘11米接地氣農村二層自建房圖,帶配房設計
占地:149.8平方米
新中式農村自建二層別墅設計圖,占地160平米左右,客廳中空
占地:160平方米
田園風格別墅設計圖及外觀圖片,樓中樓結構
占地:140平方米
小戶型現代新農村三層房屋設計建筑圖及效果圖
占地:108平方米
鄉村二層簡歐小戶型別墅圖設計,占地90平方米左右
占地:92.12平方米
徽派自建房一層設計圖,七字型設計,獨立餐廚便捷實用
占地:171.65平方米
新農村雙拼別墅全套設計圖方案及效果圖,餐廳廚房獨立設計
占地:338.02平方米
兩層三間農村房屋設計圖,新農村住宅方案推薦
占地:155平方米
農村四間二層別墅設計方案圖,外觀精致、時尚
占地:152平方米
新中式別墅一層自建房設計,戶型實用緊湊
占地:170.54平方米
13X13米新農村中式風三層別墅設計方案,內部布局緊湊溫馨
占地:168.43平方米
30萬農村小別墅設計圖片,30萬別墅設計戶型推薦
占地:130平方米
帶大套間新農村二層別墅自建房設計圖紙帶效果圖
占地:185平方米
私人別墅房屋cad施工設計圖,造型精致、美觀
占地:105平方米
小面寬的農村簡單四層2建平屋頂別墅設計圖,農村自建房首選
占地:109.29平方米
中國最美建筑四合院設計圖紙及效果圖,顏值爆棚
占地:152平方米左右
90平方米農村二層房屋設計施工圖紙及效果圖,11x8.5米
占地:90平方米
帶獨立堂屋的農村自建房設計,二層別墅設計方案圖
占地:109平方米左右
農村4間2層樓房設計圖,戶型方正,四平八穩的二層農村別墅
占地:180平方米
推薦:10套新農村自建房設計圖,2026年最新設計
閱讀次數:4825737次
100套鄉村別墅圖片大全,2026年最新設計
閱讀次數:2492203次
6款農村蓋一層平房的設計圖,10萬元就能建起來
閱讀次數:1852637次
這11個一層農村自建房別墅火爆了朋友圈!我最喜歡戶型十!你呢
閱讀次數:750268次
農村6萬元建一層小別墅圖,你敢相信嗎
閱讀次數:567686次
農村5萬塊就能自建房,6套普通房子設計圖分享,你沒看錯!
閱讀次數:419410次
8套農村漂亮三間平房圖片,非常適合在農村修建!
閱讀次數:411197次
農村自建房化糞池怎么做?附方案及施工過程
閱讀次數:391783次
農村一層三間平房設計圖,告別土氣養老房,讓人忍不住點贊
閱讀次數:350581次
新農村二層樓房圖片造價12萬,挑一套回家建房吧!
閱讀次數:349126次
