
|
南北地區的農村住房建設是不同的,可以說是水土養一方人。良好的住房設計,可以使戶主提高很多方便和舒適!本期推薦這個平屋頂一層別墅設計,外觀簡單美觀,平屋頂和側梯設置增加了更多的實用性,一層大平層設計更符合農村生活習慣,也可以方便干燥,可以使施工簡單降低建筑成本簡直就是一舉兩得。也比較適合那些不崇尚住宅漂亮外觀設計的建房者參考,在老家蓋上這么一棟最合適不過了,感興趣的朋友和我一起來看看吧。 圖紙介紹:農村一層別墅帶平屋頂設計特別適合北方農村自建這座別墅的外觀造型簡單大方。外墻由兩種材料組成。白色墻磚與底部的米色真石漆白色和黃色的顏色搭配簡單美觀。你看得越久,你就越喜歡是屬于耐看的哪一種。事實上,這樣一個簡單的別墅設計真的很好看。沒有太多的裝飾。整個房子的輪廓用干凈的線條勾勒出來一級棒!房屋類型以實用為主,室內布局合理。有四間臥室和兩間客廳。為了提高室內照明和透明效果,左右前后均有開窗設計。平屋頂的設計絕對是該房屋最大的亮點。側梯設計方便上下屋頂。寬敞的屋頂面積還可以增加更多的實用性能。日常干燥功能也可以邀請家人和朋友在這里聚會。非常實用! 占地面積:13.76米x7.76米 102.24平方米左右 建筑面積:102.24平方米左右 建筑層高:一層 設計功能:
正面效果圖
鳥瞰效果圖
側面效果圖
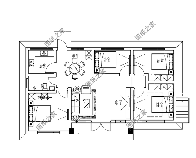
一層戶型圖 一層戶型圖:臥室x4、客廳、廚房、餐廳、公衛
屋頂平面圖 屋頂平面圖 圖紙之家-專注農村別墅/自建房設計18年,集合國內200余位經驗豐富的設計師,被評為口碑最好的農村建筑設計公司! |

簡潔大氣140平方三層房子設計圖,帶車庫戶型極佳
占地:140平方米
巴洛克風格農村二層別墅設計圖(偏法式),對稱式設計,太講究
占地:210.25平方米
帶車庫的新中式風格一層別墅設計圖,鳥語花香回家建房
占地:184平方米
農村120方三層自建房子圖,好看又不貴的三層農村別墅
占地:120平方米
20萬以內二層歐式小別墅設計方案,全套施工圖+效果圖
占地:115平方米
農村三間兩層樓房設計圖,帶外觀效果圖
占地:140平方米
經典小戶型雙拼二層新農村房屋住宅設計圖,含效果圖
占地:80平方米
經典小戶型新農村房屋住宅設計圖,10萬左右
占地:80平方米
一層鄉村別墅設計戶型圖,占地100平左右,外觀很時尚
占地:100平方米左右
共堂屋雙拼兩層小別墅設計圖,倆兄弟農村自建房首選
占地:198平方米
最漂亮的一層平房圖片及設計圖,造價18萬左右,結構簡單易于施
占地:186平方米
35萬左右的農村小別墅設計圖及效果圖,新中式風格
占地:137平方米
二層農村兄弟雙拼別墅設計圖,一墻之隔互不干擾,鄰居看了都喜
占地:164.24平方米
二層農村自建小別墅設計圖,歐式風格,占地160平方米
占地:160平方米
占地130平方米二層鄉村別墅自建房圖紙設計圖,效果圖好看
占地:131.658平方米
2026新款農村15萬元二層小樓圖,占地90平米左右
占地:多種戶型
帶大套間新農村二層別墅自建房設計圖紙帶效果圖
占地:185平方米
徽派3層農村小別墅設計圖,廣東新農村住宅設計圖集
占地:110平方米
預算30萬左右的新農村三層房屋設計圖推薦,含外觀效果圖
占地:117平方米
120平方米三層歐式別墅設計圖,進門就是旋轉樓梯
占地:119.76平方米
推薦:10套新農村自建房設計圖,2026年最新設計
閱讀次數:4825737次
100套鄉村別墅圖片大全,2026年最新設計
閱讀次數:2492203次
6款農村蓋一層平房的設計圖,10萬元就能建起來
閱讀次數:1852637次
這11個一層農村自建房別墅火爆了朋友圈!我最喜歡戶型十!你呢
閱讀次數:750268次
農村6萬元建一層小別墅圖,你敢相信嗎
閱讀次數:567686次
農村5萬塊就能自建房,6套普通房子設計圖分享,你沒看錯!
閱讀次數:419410次
8套農村漂亮三間平房圖片,非常適合在農村修建!
閱讀次數:411197次
農村自建房化糞池怎么做?附方案及施工過程
閱讀次數:391783次
農村一層三間平房設計圖,告別土氣養老房,讓人忍不住點贊
閱讀次數:350581次
新農村二層樓房圖片造價12萬,挑一套回家建房吧!
閱讀次數:349126次
