
|
伴隨著老百姓的生活條件越來越高,農村自建房也變得越來越先進在研究如何使自建房美觀的同時,我們也非常關注農村自建別墅屋的造價成本。二樓自建房屋是農村地區最受歡迎的房屋。它們可以節省足夠的材料和成本。此外,可根據業主的需要設置這種自建別墅的戶型。確保實用性和美觀性。在本期中,小編將向您推薦幾種集美觀、實用性和成本經濟性于一體的最新農村自建設計。有興趣的朋友們,讓我們看看! 別墅圖一展示:棕灰色外墻磚作別墅一層的外部材料,穩重古樸,體現鄉村田園感;白色大理石真石漆鋪設二層外墻,做成仿磚結構,使得立面更顯干凈規整 占地面積:13.0m*13.75m,153平方米左右; 建筑層高:二層; 建筑高度:10.96米(含屋頂);
正面效果圖
鳥瞰效果圖
背面效果圖 設計功能:
一層戶型圖 一層戶型:客廳、廚房、餐廳、臥室(帶衛生間)、臥室、洗衣房、衛生間;
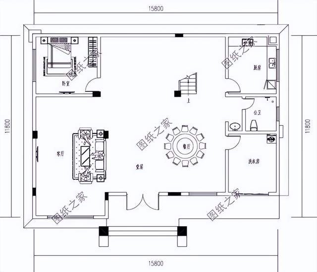
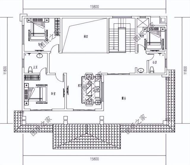
二層戶型圖 二層戶型:家庭室、臥室(帶衛生間)、臥室(帶書房衛生間)、臥室x2、衛生間、露臺; 別墅圖二展示:中式風格,這個新中式的房子面積不大,清新自然,風格爽利,而且造型又不復雜,建造成本也不高,非常適合自己建,漂亮又耐看,功能設計非常齊全,布局大方合理,精致戶型,動靜分明空間,舒適格局,南北通透、四面采光,自在生活清新享受 占地面積:15.8m*11.8m,175平方米左右; 建筑層高:二層; 建筑高度:10.2米(含屋頂);
正面效果圖
鳥瞰效果圖
背面效果圖 設計功能:
一層平面圖 一層戶型:堂屋、客廳、廚房、餐廳、臥室、衛生間、洗衣房;
二層平面圖 二層戶型:客廳、臥室(帶衛生間)、臥室x2、衛生間、露臺 別墅圖三展示:面寬15米左右,住得真舒適,不到30萬你說值不值?屋頂多采用灰色的斜坡頂,和墻體的色彩巧妙搭配,可體現歐式建筑的古典美;別墅大門采用的是典型的歐式風格,兩邊豎著兩個大石柱;外墻涂抹采用的是真石漆,裝修完盡顯恢宏 占地面積:15.1m*13.5m,168.12平方米左右;
別墅效果圖
一層戶型圖
二層戶型圖 二層戶型:客廳上空、起居室、書房、臥室(帶衛生間)、臥室x3、衛生間、陽臺; 圖紙之家-專注農村別墅/自建房設計18年,集合國內200余位經驗豐富的設計師,被評為口碑最好的農村建筑設計公司! |

新農村小戶型4層自建房三層半別墅設計圖,平屋頂設計
占地:95平方米
后面帶小院的農村房屋設計圖,適合鄉村自建
占地:300平方米
占地180平豪華三層農村別墅自建房設計圖,歐式與現代相融合
占地:183.706平方米
面寬13米三層新中式獨棟別墅設計圖,復式自建房戶型方案
占地:201.25平方米
經典小戶型二層新農村房屋設計圖紙,客廳中空,造價20萬
占地:94平方米
140平方米三層半新農村房屋別墅設計圖,帶車庫
占地:140平方米
一層農村小平房設計圖,功能齊全造價低,兩款戶型可選
占地:多戶型可選
時尚的農村二層別墅圖紙設計,現代風格,簡約的外觀
占地:152平方米左右
140平方米現代偏中式實用型三層房屋設計圖紙,新農村建房推薦
占地:142平方米
帶小院七字形一層自建房戶型設計圖,平屋頂圖紙
占地:201.08平方米
農村三層雙拼房屋建筑施工設計圖紙,帶車庫
占地:180平方米
客廳中空復式二層別墅設計圖,歐式風格外觀
占地:180平方米
2026新款農村三層雙拼自建房設計圖,占地150平米左右
占地:150平方米
一層半中式合院別墅設計圖,帶配房,有庭有院有品位
占地:135平方米左右
中式二層對稱別墅設計圖,帶地下室設計,整體造價經濟
占地:171.6平方米
帶獨立堂屋的農村自建房設計,二層別墅設計方案圖
占地:109平方米左右
經典三層雙拼房屋設計圖,帶效果圖,戶型好,單戶面積120
占地:240平方米
農村仿古四合院設計圖自建房,外觀中式古樸典雅
占地:378平方米
方方正正的二層農村別墅設計圖,普通農村人都能建
占地:201.05平方米
造價65萬左右的三層歐式別墅房屋設計施工CAD圖紙及效果圖
占地:178平方米
推薦:10套新農村自建房設計圖,2026年最新設計
閱讀次數:4825737次
100套鄉村別墅圖片大全,2026年最新設計
閱讀次數:2492203次
6款農村蓋一層平房的設計圖,10萬元就能建起來
閱讀次數:1852637次
這11個一層農村自建房別墅火爆了朋友圈!我最喜歡戶型十!你呢
閱讀次數:750268次
農村6萬元建一層小別墅圖,你敢相信嗎
閱讀次數:567686次
農村5萬塊就能自建房,6套普通房子設計圖分享,你沒看錯!
閱讀次數:419410次
8套農村漂亮三間平房圖片,非常適合在農村修建!
閱讀次數:411197次
農村自建房化糞池怎么做?附方案及施工過程
閱讀次數:391783次
農村一層三間平房設計圖,告別土氣養老房,讓人忍不住點贊
閱讀次數:350581次
新農村二層樓房圖片造價12萬,挑一套回家建房吧!
閱讀次數:349126次
