
|
外觀造型美,內部布局舒適的別墅戶型是咱們老百姓最喜歡的戶型,也是咱們圖紙之家的設計師一直努力的方向。考慮到如今每家每戶宅基地并不是很大的問題,特此為大家分享兩套戶型大于在10X10米左右的農村二層樓房實景圖,這兩套設計都很適合農村,看看你更喜歡哪套呢?
第一套:
此套占地10.0X10.0米,戶型方正,配色鮮艷,咖色文化石時尚、接地氣。 平面布局圖:
此戶型是一個實用戶型的設計,它有6個臥室,上面4個,下面2個,一層陽面的臥室可做老人房使用。他進門就是一個玄關,廚房設在北門。
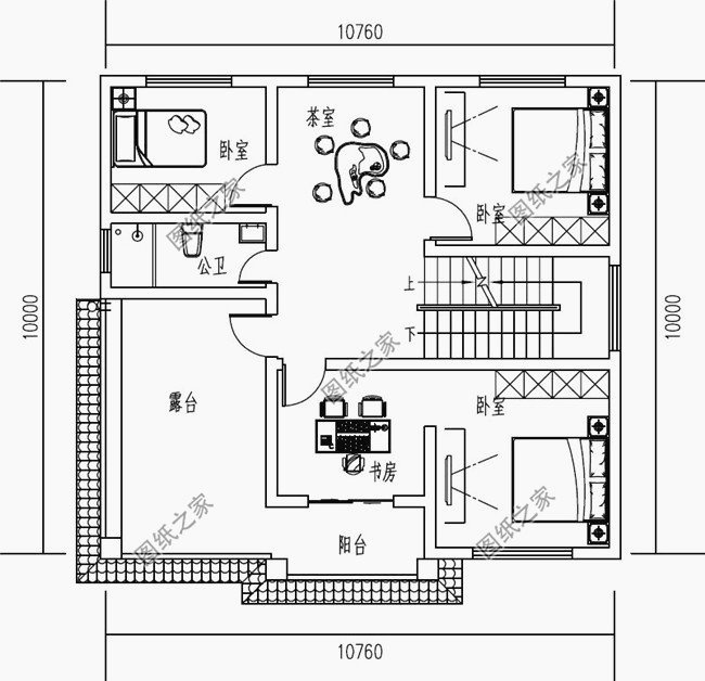
第二套:
此別墅占地10.76X10.0米,干凈、素雅,很適合田園生活的氣質。此外,這兩套別墅建造較為靈活,磚混結構、框架結構都可以建造,是一個經濟的小戶型。 平面布局圖:
此戶型很注重公共空間和休閑空間的設計,一層有一客廳、廚房,餐廳,二層有一個茶室,并且在主臥里也有休閑平臺的設計。此戶型有5個臥室,一層2個,二層3個,一層的臥室適合老人居住。二層的臥室有書房,私密性好,獨立性強。
這兩套美觀實用的戶型怎么樣?你更喜歡哪一套呢?
圖紙之家-專注農村別墅/自建房設計18年,集合國內200余位經驗豐富的設計師,被評為口碑最好的農村建筑設計公司! |

最新款二層半別墅圖片,占地115平米左右,帶地下室,帶露臺
占地:115平方米
農村三層歐式別墅豪宅戶型圖設計方案,復式中空客廳+旋轉樓梯
占地:134.84平方米
戶型好的三層帶獨立車庫的樓房設計圖,含外觀效果圖
占地:148平方米
中式二層對稱別墅設計圖,帶地下室設計,整體造價經濟
占地:171.6平方米
125平方米三層新農村房屋建筑施工設計圖帶外觀圖
占地:126平方米
簡單時尚二層住宅設計圖紙,簡單的設計,不平凡的視覺感受
占地:110平方米
新農村二層帶露臺經濟型小別墅設計圖紙,含外觀效果圖
占地:120平方米
帶中式小院的二層仿古別墅設計圖,小戶型自建房設計,外觀美極
占地:82.94
140平方米新農村三層房屋設計圖,磚混結構帶地下室
占地:138平方米左右
二層半別墅設計圖,占地150平米,帶露臺,地中海風格,內部布局
占地:150平方米
小戶型二層四合院別墅設計圖,含外觀效果圖,小宅基地選擇
占地:134平方米
樓中樓客廳挑高二層別墅設計圖,復式別墅方案推薦
占地:122平方米
新中式農村自建二層別墅設計圖,占地160平米左右,客廳中空
占地:160平方米
農村三間兩層樓房設計圖,背面不開窗,氣勢上就勝人一籌
占地:153.7平方米
人字坡紅磚一層別墅設計圖,簡約低調超實用,這樣的房子人人能
占地:136.51平方米
120平米三層30萬別墅圖片大全及全套施工圖,外觀簡潔大方
占地:120平方米
帶車庫農村二層雙拼別墅設計圖,外觀現代
占地:235平方米
豪華農村帶露臺三層樓房別墅設計圖紙,占地200平方米左右
占地:200平方米
新農村帶陽臺三層樓房圖紙,占地180平米左右,豪華大氣
占地:180平方米
最火現代風三層半別墅設計圖,時尚簡約寬敞舒適
占地:169平方米
推薦:10套新農村自建房設計圖,2026年最新設計
閱讀次數:4825737次
100套鄉村別墅圖片大全,2026年最新設計
閱讀次數:2492203次
6款農村蓋一層平房的設計圖,10萬元就能建起來
閱讀次數:1852637次
這11個一層農村自建房別墅火爆了朋友圈!我最喜歡戶型十!你呢
閱讀次數:750268次
農村6萬元建一層小別墅圖,你敢相信嗎
閱讀次數:567686次
農村5萬塊就能自建房,6套普通房子設計圖分享,你沒看錯!
閱讀次數:419410次
8套農村漂亮三間平房圖片,非常適合在農村修建!
閱讀次數:411197次
農村自建房化糞池怎么做?附方案及施工過程
閱讀次數:391783次
農村一層三間平房設計圖,告別土氣養老房,讓人忍不住點贊
閱讀次數:350581次
新農村二層樓房圖片造價12萬,挑一套回家建房吧!
閱讀次數:349126次
