
|
在咱們中國農村,農村的住宅都有個小院,小院里經常會養雞、養鴨,有的還養養花,種種菜,所以,農家院中少不了雞舍豬舍、菜園甚至沼氣池的設計。圖紙之家今天為大家分享的這2套二層簡單一點的別墅圖,宅基地大小在11X14米之間,院中設有禽舍豬舍和沼氣池,房子干凈實用,很適合新農村建設。
第一套:
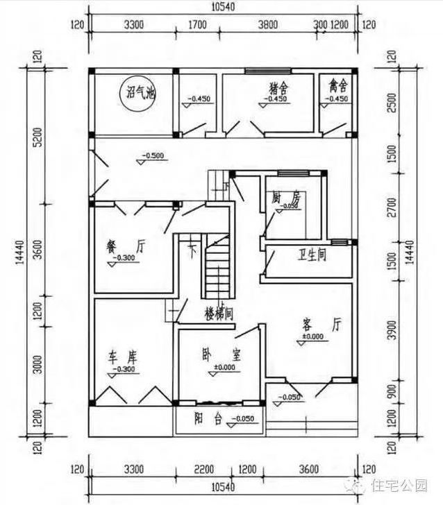
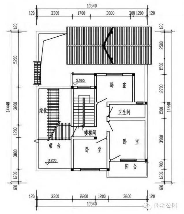
此別墅占地10.54X14.44米,有陽臺和大露臺的設計,雖然房子是坡屋頂的設計,但是大露臺的設計正好代替了平屋頂可以進行晾曬的功能。房子有個后院,后院設有豬舍、禽舍、衛生間和沼氣池,利于農村能源的再利用。 平面布局圖:
此戶型坐北朝南,入戶門在南側,當然從西北側也可以直接進到后院。住宅左側是封閉式車庫,右側是入戶門,正門進入是客廳,客廳左邊是臥室,可做老人房,老人房有飄窗設計,空間設計美。北側是衛生間、廚房和餐廳,餐廳和廚房是半開放式的,都可以進入到后院。在別墅的二層,有3個臥室、1個衛生間,其中一個臥室有陽臺,在西側有一個大露臺,一半用于做曬臺,一半用于屋頂花園,美化居室環境。
第二套:
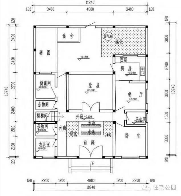
此小院占地11.84X13.74米,房子外墻和第一套配色一樣,都是灰頂、白墻,文化石的墻裙,木門窗。此戶型有前庭和后院,前庭有水池和綠化區,后院有豬圈、禽舍、沼氣池和綠化帶。 平面布局圖:
此戶型對著前庭的是堂屋,堂屋東側是廚房、餐廳、衛生間和臥室,堂屋西側是儲藏間、雜物間、樓梯間、雜物間和農具間;二層3個臥室,1屋頂花園、1儲藏間、1曬臺。
這兩套別墅怎么樣呢?你又更喜歡哪一套呢?
圖紙之家-專注農村別墅/自建房設計18年,集合國內200余位經驗豐富的設計師,被評為口碑最好的農村建筑設計公司! |

200多平方米新農村雙拼別墅設計圖紙,堂屋和樓梯共用
占地:207平方米左右
新中式農村自建房三層設計圖,外觀布局均滿分
占地:142.18平方米
面寬11米現代風二層小別墅,平屋頂設計,緊跟潮流時尚前衛
占地:94.43平方米
三層半復式別墅設計方案,全套設計圖+效果圖
占地:160平方米
二層農村兄弟雙拼別墅設計圖,一墻之隔互不干擾,鄰居看了都喜
占地:164.24平方米
140平方米三層豪華新中式別墅設計圖紙帶外觀效果圖
占地:141.35平方米
130平氣派美觀的二層別墅房屋設計圖,含效果圖
占地:130平方米
自建房共堂屋雙拼別墅設計圖方案,三層挑空復式戶型
占地:199.5平方米左右
現代風格四合院別墅設計圖,回老家建一棟吧
占地:177.89平方米
時尚大氣的三層現代風別墅設計圖,露臺+挑空客廳
占地:321平方米
農村蓋平房設計大全圖,鄉下建房一層戶型圖及效果圖
占地:160平方米
農村一層平房設計圖及效果圖,一層房屋設計方案推薦
占地:270平方米
兄弟四間三層雙拼別墅設計圖,造價40萬左右
占地:210平方米
新中式農村三層樓房設計圖紙,全套圖紙設計,線條錯落有致
占地:130平方米
鄉下一層門面二層別墅設計圖紙,帶門面的自建房方案
占地:198.4平方米
2026最好看的農村三層樓房圖片及施工圖紙,客廳寬敞
占地:120平方米
實用農村10萬一層小別墅戶型圖及圖紙,全套施工圖
占地:多種面積
高端大氣的三層新中式合院別墅設計圖紙及外觀效果圖
占地:203.4平方米
240平方米新農村四合院兩層樓房施工設計圖紙帶外觀圖
占地:234平方米
農村18萬元二層小樓圖,帶開放式車庫
占地:110平方米
推薦:10套新農村自建房設計圖,2026年最新設計
閱讀次數:4825737次
100套鄉村別墅圖片大全,2026年最新設計
閱讀次數:2492203次
6款農村蓋一層平房的設計圖,10萬元就能建起來
閱讀次數:1852637次
這11個一層農村自建房別墅火爆了朋友圈!我最喜歡戶型十!你呢
閱讀次數:750268次
農村6萬元建一層小別墅圖,你敢相信嗎
閱讀次數:567686次
農村5萬塊就能自建房,6套普通房子設計圖分享,你沒看錯!
閱讀次數:419410次
8套農村漂亮三間平房圖片,非常適合在農村修建!
閱讀次數:411197次
農村自建房化糞池怎么做?附方案及施工過程
閱讀次數:391783次
農村一層三間平房設計圖,告別土氣養老房,讓人忍不住點贊
閱讀次數:350581次
新農村二層樓房圖片造價12萬,挑一套回家建房吧!
閱讀次數:349126次
