
|
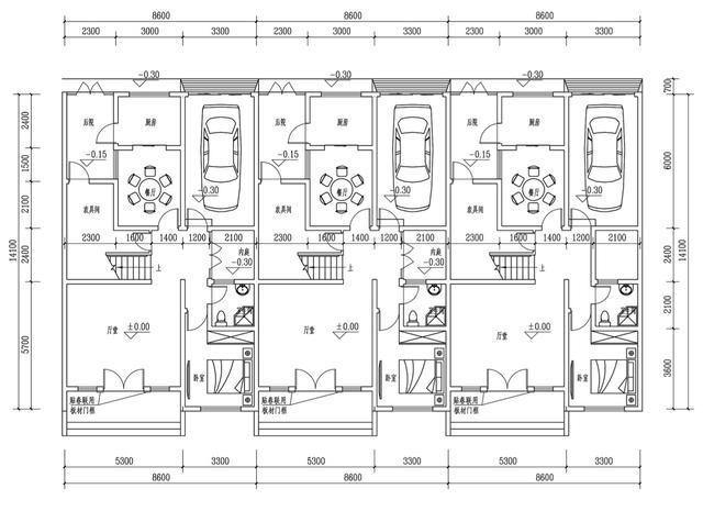
農村別墅網上獨棟戶型很多,兄弟雙拼也能找到,說到三拼戶型還真是不太常見。其實三拼戶型在圖紙設計角度來看最具代表性,戶型雖然一樣,但兩側房屋有側窗采光,中間戶型只能前后采光,覆蓋范圍比較廣。今天這套農村三拼別墅,單戶面寬8.6米,符合大多數農村宅基地尺寸。一層有庭院,有廳堂(堂屋),有車庫,有南向老人房,布局非常實用。天井的設計讓所有衛生間都變明衛,采光超好,小面寬建房值得借鑒。
一層平面圖:戶型為坐南朝北,廳堂和老人房在南側,車庫、廚房在北側,餐廳緊鄰廚房。后院有農具間,也可以當為儲藏室。內院的布置讓衛生間變為明衛,二樓以上沿內院三面采光。
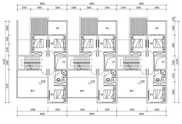
二層平面圖:三室一廳的布局,主臥朝南帶衛生間。兩個衛生間因為天井的存在,都是明衛。
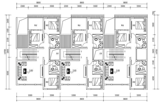
三層平面圖:三個臥室,北邊有陽臺,南邊有露臺。 圖紙之家-專注農村別墅/自建房設計18年,集合國內200余位經驗豐富的設計師,被評為口碑最好的農村建筑設計公司! |

14米乘10米農村二層別墅新款,外觀對稱設計,經久耐看!
占地:140平方米
帶車庫的一層雙拼別墅設計方案,出入方便保安全,大氣優雅還長
占地:179.7平方米
鄉村高檔四層豪華別墅自建房設計圖,一層不帶餐廳廚房戶型
占地:147平方米
占地百平農村三層戶型方案,簡約實用,獨具特色,理想新居等你
占地:105.61平方米
170平方米農村二層房屋設計施工圖,外觀圖時尚、好看
占地:172平方米
12X14米四層農村自建別墅設計圖,功能設計豐富齊全
占地:157平方米
大戶型帶車庫的兩層農村自建房設計圖,施工簡單,戶型方正
占地:236平方米
新農村兄弟合建三層雙拼房屋設計方案圖,開間18米有全套圖紙
占地:237.21平方米
鄉村二層簡歐小戶型別墅圖設計,占地90平方米左右
占地:92.12平方米
豪華復式三層別墅設計圖紙,效果圖+建筑施工圖+結構施工圖
占地:126平方米
簡單的二層樓房圖片及設計方案,自建樓房必看
占地:140平方米
一層鄉村自建別墅設計方案推薦,含外觀圖片
占地:148平方米
帶堂屋設計一層三合院設計圖,白墻黛瓦古韻悠悠,比高層舒服接
占地:179.37平方米
農村最漂亮二層歐式別墅設計圖,面寬16.5米(含車庫)
占地:180.366
陽臺封閉的簡約實用二層別墅設計圖,15x12.8米
占地:165平方米
農村自建房別再做傳統客廳!“客廳+茶室”一體設計,寬敞明亮
占地:143.73平方米
2026最新款50萬左右農村三層別墅設計圖,客廳中空
占地:160平方米
帶配房的二層農村小別墅設計圖,大方適用,耐看經濟
占地:152.28平方米
面寬13米三層新中式獨棟別墅設計圖,復式自建房戶型方案
占地:201.25平方米
新古典中式風格別墅設計圖,全套施工圖+效果圖
占地:188平方米
推薦:10套新農村自建房設計圖,2026年最新設計
閱讀次數:4825737次
100套鄉村別墅圖片大全,2026年最新設計
閱讀次數:2492203次
6款農村蓋一層平房的設計圖,10萬元就能建起來
閱讀次數:1852637次
這11個一層農村自建房別墅火爆了朋友圈!我最喜歡戶型十!你呢
閱讀次數:750268次
農村6萬元建一層小別墅圖,你敢相信嗎
閱讀次數:567686次
農村5萬塊就能自建房,6套普通房子設計圖分享,你沒看錯!
閱讀次數:419410次
8套農村漂亮三間平房圖片,非常適合在農村修建!
閱讀次數:411197次
農村自建房化糞池怎么做?附方案及施工過程
閱讀次數:391783次
農村一層三間平房設計圖,告別土氣養老房,讓人忍不住點贊
閱讀次數:350581次
新農村二層樓房圖片造價12萬,挑一套回家建房吧!
閱讀次數:349126次
