
|
農村別墅在占地面積上倒是很統一,大多數都在百平左右,當然不包括一些特別壕的富商,既然宅地面積就這么大,那蓋出來的房子也理所應當很適合咱們的農村生活才行。今天圖紙之家就給大家展示三套占地不過百來平的獨棟別墅設計,有需求的可以選擇自建。
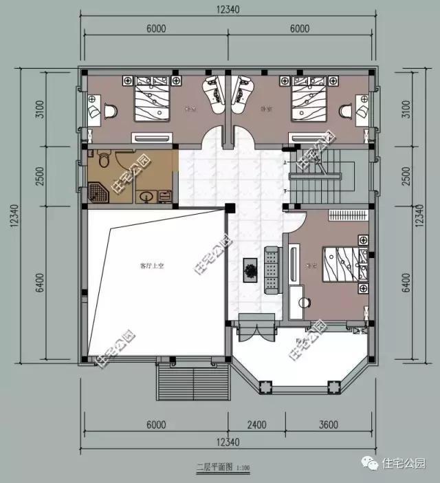
戶型一: 第一套戶型面寬12.34米,進深12.34米,占地面積154.8平方米,建筑面積368.14平方米,總高度12.6米,戶型方正,東側帶車庫。
平面布局圖: 該戶型為三層簡歐式經典鄉村別墅,挑空客廳使客廳看起來很大氣,三樓的露臺滿足您的晾曬需求,空間設計比較合理,滿足絕大多數建房者的需求。
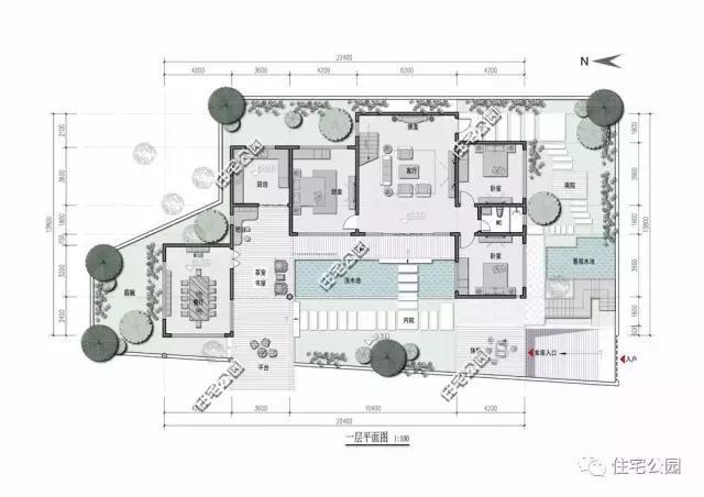
戶型二: 第二套戶型面寬22.4米,進深13.8米,占地面積184平方米,建筑面積439平方米,總高度8.24米,是一棟二層中式特色民居建筑。
建筑剖面圖:
平面布局圖:
戶型三: 第三套戶型占地面寬12米,進深10米,占地面積114平方米,建筑面積207平方米,總高度8.3米。
平面布局圖: 這最后一套戶型為二層建筑,占地也不大,因此造價要比上面兩棟低廉的多,毛坯落成只需20萬即可,同時居室平面全都按照農村人生活習性進行了周密的布置,簡單大氣,很適合農村人在此居住生活。
圖紙之家-專注農村別墅/自建房設計18年,集合國內200余位經驗豐富的設計師,被評為口碑最好的農村建筑設計公司! |

二層農村雙拼別墅帶露臺設計圖,20×11.8米,單戶110平米
占地:220平方米
140平方米農村三層復式房屋設計施工圖,開放式廚房
占地:143平方米
一層帶架空層的農村別墅設計圖,防潮、停車、放農具全都滿足
占地:163.78平方米
簡單實用的四層農村自建房屋設計圖,占地100平米左右
占地:100平方米
最新款二層半別墅圖片,占地115平米左右,帶地下室,帶露臺
占地:115平方米
農村三層復式樓房住宅設計圖,私人別墅設計
占地:165平方米
農村一層自建房子設計圖紙及效果圖,戶型方正
占地:多戶型可選
農村四間房屋設計圖經典戶型,這樣設計美觀、實用
占地:169平方米
小戶型三層別墅設計圖,戶型經典,外觀精致、美觀
占地:95平方米
2026二層農村新款別墅新式二層樓房設計圖,非常時尚
占地:多種戶型
面寬不到10米的小戶型自建房戶型圖,全套設計圖紙可施工
占地:123.2平方米左右
120平方米農村一層平房別墅設計圖紙,含外觀效果圖
占地:125平方米
新中式農村三層樓房設計圖,帶地下室,主體建筑面積110平米
占地:110平方米
南方新農村三層房屋設計圖大全,預算30萬內
占地:145平方米
徽派120平新農村住宅設計方案,帶外觀效果圖
占地:120平方米
125平方米新農村二層房屋施工設計CAD圖紙加效果圖
占地:125平方米
共用中堂雙拼兄弟三層別墅設計圖,簡歐式風格
占地:230平方米
農村二層帶車庫四合院別墅設計圖,新中式外觀圖片,戶型實用方
占地:247平方米
豪華三層別墅設計圖紙,全套施工方案帶效果圖
占地:130平方米
農村兩層半樓房設計圖,平面功能分區明確,布置合理
占地:180平方米
推薦:10套新農村自建房設計圖,2026年最新設計
閱讀次數:4825737次
100套鄉村別墅圖片大全,2026年最新設計
閱讀次數:2492203次
6款農村蓋一層平房的設計圖,10萬元就能建起來
閱讀次數:1852637次
這11個一層農村自建房別墅火爆了朋友圈!我最喜歡戶型十!你呢
閱讀次數:750268次
農村6萬元建一層小別墅圖,你敢相信嗎
閱讀次數:567686次
農村5萬塊就能自建房,6套普通房子設計圖分享,你沒看錯!
閱讀次數:419410次
8套農村漂亮三間平房圖片,非常適合在農村修建!
閱讀次數:411197次
農村自建房化糞池怎么做?附方案及施工過程
閱讀次數:391783次
農村一層三間平房設計圖,告別土氣養老房,讓人忍不住點贊
閱讀次數:350581次
新農村二層樓房圖片造價12萬,挑一套回家建房吧!
閱讀次數:349126次
