
|
想要在農村建房子但是家里的宅基地太小,左右都是鄰居,戶型不好設計,怎么辦?和鄰居商量一下建套雙拼別墅吧,建出來不僅漂亮,而且利用率高。今天給大家推薦2套新中式風格的農村二層樓房實景圖,有喜歡的可以參考建房。
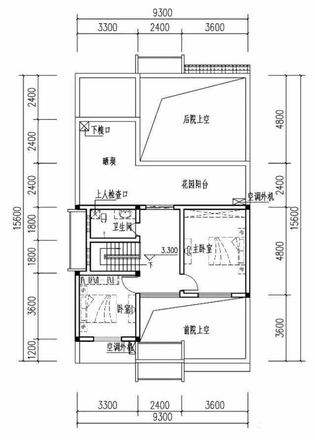
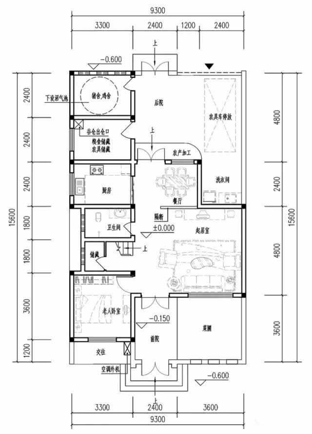
戶型一 開間15.6米,進深9.3米
這套雙拼別墅不僅帶有前院,還有后院。前院可以用來種菜,曬農用物。后院生活為主,可以用來洗曬,停放車輛,養一些家禽。在室內布局上,一層設計有老人間,客廳,餐廳、廚房、衛生間和儲藏室,二層設計有二間臥室,起居室,衛生間和屋頂花園。
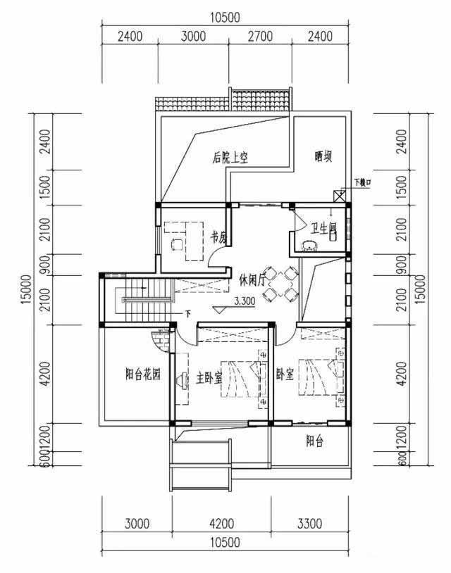
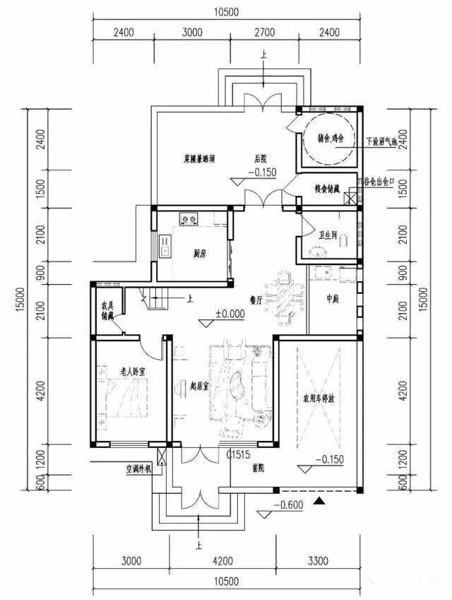
戶型二 開間15米,進深10.5米
這套別墅不僅有前院后院還有一個中庭,院子用來種菜養花,作停車場都很實用,在室內布局上也充分考慮到農村生活的基本需求,一層設計有一室二廳一廚一衛還帶有儲藏間,二層設計有三室一廳一衛還帶有空中花園,布局合理實用,住起來非常舒適。
圖紙之家-專注農村別墅/自建房設計18年,集合國內200余位經驗豐富的設計師,被評為口碑最好的農村建筑設計公司! |

造價低經濟簡單的二層農村自建房圖紙設計,簡潔實用
占地:136.08平方米
農村七字型一層別墅圖,獨立廚房設計,鄉村建房優選戶型
占地:159.76平方米
平屋頂二層自建房帶商鋪別墅設計圖紙及外觀圖
占地:225平方米
160平方米歐式一層半別墅施工設計圖紙13X13米
占地:160平方米
自建三層小洋樓設計圖紙,含效果圖,帶車庫
占地:121平方米
面寬16米方正實用二層別墅設計圖,中式風格不輸村里的別墅洋房
占地:182.82平方米
120多平米三層農村別墅設計圖,把實用做到極致,造價適中
占地:126.85平方米
100平方米左右新農村二層房屋設計建筑CAD圖紙帶外觀效果圖
占地:多戶型可選
100平方三層樓房設計圖及圖片,戶型設計簡約時尚
占地:100平方米
新中式三層歐式別墅設計圖,盡顯貴族風范,占地135平
占地:134.37平方米
面寬13米簡簡單單一層農村自建別墅設計圖,方正大氣經濟宜居
占地:126.1平方米
三層三間別墅設計圖方案,含外觀圖片,自建推薦
占地:125平方米
兄弟四間三層雙拼別墅設計圖,造價40萬左右
占地:210平方米
兩層農村自建二層樓設計圖紙,面寬12米左右
占地:131.2平方米
農村兩間兩層樓房設計圖,造價15萬左右,獨立的廚房設計,干凈
占地:95平方米
復式客廳挑空三層別墅設計圖,帶外觀效果圖片,推薦
占地:150平方米
面寬20米農村自建房設計圖一層設計圖,五開間養老戶型
占地:194平方米
帶車庫的別墅設計圖紙,外觀效果圖二層半設計,全套建筑施工圖
占地:174平方米左右
簡單實用二層自建房子設計圖,主體造價僅17萬
占地:106.387平方米
新中式二層雙拼樓房設計圖,單戶面積100平米左右,實用美觀
占地:200平方米
推薦:10套新農村自建房設計圖,2026年最新設計
閱讀次數:4825737次
100套鄉村別墅圖片大全,2026年最新設計
閱讀次數:2492203次
6款農村蓋一層平房的設計圖,10萬元就能建起來
閱讀次數:1852637次
這11個一層農村自建房別墅火爆了朋友圈!我最喜歡戶型十!你呢
閱讀次數:750268次
農村6萬元建一層小別墅圖,你敢相信嗎
閱讀次數:567686次
農村5萬塊就能自建房,6套普通房子設計圖分享,你沒看錯!
閱讀次數:419410次
8套農村漂亮三間平房圖片,非常適合在農村修建!
閱讀次數:411197次
農村自建房化糞池怎么做?附方案及施工過程
閱讀次數:391783次
農村一層三間平房設計圖,告別土氣養老房,讓人忍不住點贊
閱讀次數:350581次
新農村二層樓房圖片造價12萬,挑一套回家建房吧!
閱讀次數:349126次
