
|
現在農村蓋房子已經有所限制了,一戶家庭手里只能有一處宅基地,而且還不能私自變賣,所以這一塊宅基地就成了寶貝,一定要好好規劃設計才行,都要建房,那么就把自己能發揮的發揮到最好,蓋一棟讓所有農村人都喜歡的房子出來。今天的這套獨棟別墅設計,不知道這個價錢在各位眼里,是怎么個標準?
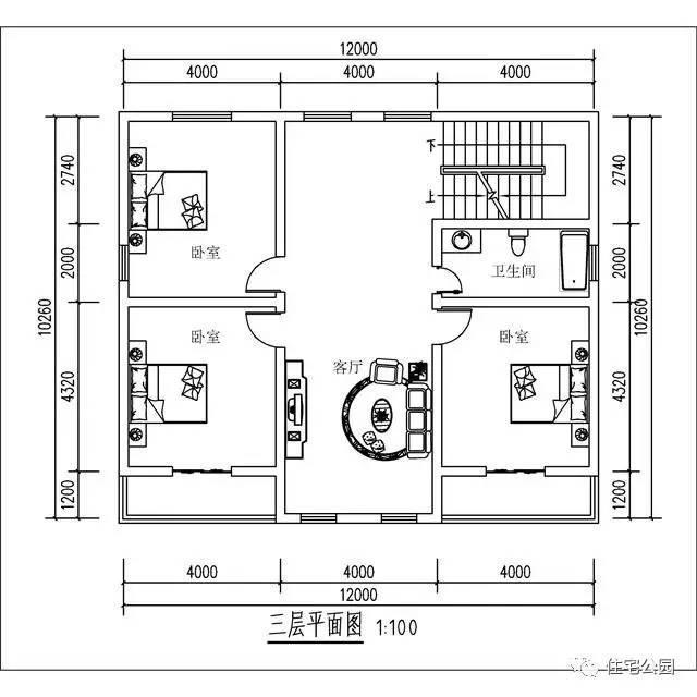
平面布局圖: 既然是咱們農村人的房子,那就沒必要設計的很精致,一切實用就可以了,臥室客廳餐廳廚房這些必備之物全都有,倒也顯得通俗與樸實。
二層與三層同樣都是相等的布局設計,房主的意思是以后要是再有需要的話可以改造,但是目前就保持這個樣子就好,整棟房子一共有七間臥室,這規格在農村,真算得上是高大上。
圖紙之家-專注農村別墅/自建房設計18年,集合國內200余位經驗豐富的設計師,被評為口碑最好的農村建筑設計公司! |

小戶型二層農村別墅設計圖,占地140平經典漂亮
占地:139.54平方米
二層復式農村豪宅別墅設計圖,挑空客廳旋轉樓梯高級感十足
占地:215.43平方米
二層農村兄弟雙拼別墅設計圖,一墻之隔互不干擾,鄰居看了都喜
占地:164.24平方米
140平三層別墅房屋設計圖,含外觀圖片,外觀現代時尚
占地:143平方米
高端豪華三層別墅住宅設計方案圖,歐式外觀風格
占地:170平方米
230平米歐式帶地下室三層自建別墅設計施工圖紙及效果圖
占地:230平米
一層雙拼別墅獨立入戶+共用墻,兄弟合建,施工隊直呼太省料
占地:269.43平方米
簡歐復式四層別墅房屋設計圖,外觀圖高端、大氣
占地:143平方米
50萬農村自建三間三層別墅設計圖,占地130平米左右
占地:135平方米
三層獨棟別墅設計圖紙帶效果圖,全套施工方案(建筑圖+結構圖
占地:144平方米
帶KTV的四開間的二層別墅設計圖,造型美觀經濟實用
占地:240.22平方米
新農村二層房屋建筑施工圖紙,廚房獨立在配房
占地:107平方米
230平(單戶115平)雙拼別墅房屋設計圖及效果圖大全
占地:230平方米
三層別墅40萬左右氣派的外觀效果圖,含全套施工設計圖
占地:161.46平方米
時尚大方的農村二層自建房屋設計圖紙,占地120平米左右
占地:120平米
占地120平米清新脫俗簡單二層別墅設計方案,含效果圖
占地:119.01平方米
農村三間兩層樓房設計圖,帶外觀效果圖
占地:140平方米
新中式復式三層別墅設計圖紙,最美的新中式別墅
占地:130平方米
巴洛克風格農村二層別墅設計圖(偏法式),對稱式設計,太講究
占地:210.25平方米
外觀高檔大氣的三層別墅房屋設計圖,高端別墅設計展示
占地:147平方米
推薦:10套新農村自建房設計圖,2026年最新設計
閱讀次數:4825737次
100套鄉村別墅圖片大全,2026年最新設計
閱讀次數:2492203次
6款農村蓋一層平房的設計圖,10萬元就能建起來
閱讀次數:1852637次
這11個一層農村自建房別墅火爆了朋友圈!我最喜歡戶型十!你呢
閱讀次數:750268次
農村6萬元建一層小別墅圖,你敢相信嗎
閱讀次數:567686次
農村5萬塊就能自建房,6套普通房子設計圖分享,你沒看錯!
閱讀次數:419410次
8套農村漂亮三間平房圖片,非常適合在農村修建!
閱讀次數:411197次
農村自建房化糞池怎么做?附方案及施工過程
閱讀次數:391783次
農村一層三間平房設計圖,告別土氣養老房,讓人忍不住點贊
閱讀次數:350581次
新農村二層樓房圖片造價12萬,挑一套回家建房吧!
閱讀次數:349126次
