
|
項目背景 1.項目名稱:新款農村三層樓房圖片 2.易蓋房區域設計機構:藝居房屋設計室
3.基地位于四川農村地區,面積足夠大,視野開闊,業主要求做簡歐風格,并且二三層要有圍繞房子的露臺,客廳做復式搭配旋轉樓梯
設計難點 露臺下面要出現梁,考慮到美觀問題,需要利用一些巧妙的手法來解決這個問題
設計構思
設計亮點 通高的大客廳,線條優美的旋轉大樓梯,盡顯主人的尊貴身份。
圖紙中心
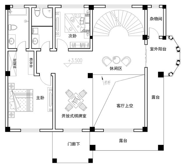
△一層平面圖
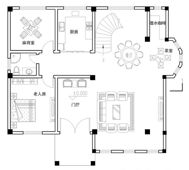
△二層平面圖
△三層平面圖
△南立面、北立面 圖紙之家-專注農村別墅/自建房設計18年,集合國內200余位經驗豐富的設計師,被評為口碑最好的農村建筑設計公司! |

進深15米新農村三層房屋設計圖紙,農村住宅設計圖集
占地:128平方米
大戶型三層別墅設計圖,高貴大氣,占地面積將近300平
占地:273.33平方米
小戶型二層農村別墅設計圖,占地140平經典漂亮
占地:139.54平方米
現代風格建房圖紙二層別墅設計方案,外觀百看不厭
占地:多戶型可選
農村超級好看的現代風格兩層小樓圖,清新優雅
占地:多種戶型
農村20萬元二層小樓房設計圖,經典新農村自建房戶型
占地:120平方米
簡單經濟一層自建養老房,12米乘9.5米,溫暖舒適施工簡單
占地:103.2平方米
地中海風格二層別墅房屋設計圖,帶外觀效果圖
占地:150平方米
鄉村典型自建房中式二層四合院別墅設計圖,左右對稱設計
占地:430平方米
一層田園風坡屋頂平房設計圖,造型漂亮時尚
占地:134.9平方米
105平方米新農村三層別墅設計圖,全套CAD建筑圖+效果圖
占地:105平方米
爆款二層自建房別墅設計圖,不追求奢華,建個溫馨實用的家
占地:100平方米
140平米二層半帶露臺別墅圖片及圖紙,戶型極佳
占地:140平方米
帶地下車庫的三層別墅設計圖,160平復式戶型
占地:159.03平方米
田園兩層半別墅新農村房屋施工設計圖,外觀清新靚麗感情色彩豐
占地:144.12平方米
新農村四層獨棟復式別墅設計圖,設計豪華時尚
占地:140平方米
三層新農村住宅設計圖及效果圖,三層樓房設計圖展示
占地:140平方米
三層帶地下室+旋轉樓梯別墅設計圖紙,復式挑空客廳
占地:多種戶型
帶地下室三層別墅設計圖紙(含外觀效果圖),別墅設計方案
占地:134平方米
樓中樓客廳挑高二層別墅設計圖,復式別墅方案推薦
占地:122平方米
推薦:10套新農村自建房設計圖,2026年最新設計
閱讀次數:4825737次
100套鄉村別墅圖片大全,2026年最新設計
閱讀次數:2492203次
6款農村蓋一層平房的設計圖,10萬元就能建起來
閱讀次數:1852637次
這11個一層農村自建房別墅火爆了朋友圈!我最喜歡戶型十!你呢
閱讀次數:750268次
農村6萬元建一層小別墅圖,你敢相信嗎
閱讀次數:567686次
農村5萬塊就能自建房,6套普通房子設計圖分享,你沒看錯!
閱讀次數:419410次
8套農村漂亮三間平房圖片,非常適合在農村修建!
閱讀次數:411197次
農村自建房化糞池怎么做?附方案及施工過程
閱讀次數:391783次
農村一層三間平房設計圖,告別土氣養老房,讓人忍不住點贊
閱讀次數:350581次
新農村二層樓房圖片造價12萬,挑一套回家建房吧!
閱讀次數:349126次
