
|
基本信息 ⊙占地尺寸:16.8米X16.8米 ⊙建筑面積:338平米 ⊙建筑戶型:農村二層樓房實景圖 ⊙功能布局:6室3廳6衛1廚2陽臺 設計說明 本案采用錯層設計,六房三廳的布局空間。主體建筑形狀豐富,外立面多采用線腳呈現出整體別墅的凹凸感。外墻采用仿磚貼面和涂料,色彩鮮明。多采用人性化設計,注重實用,搭配觀景平臺提升別墅的舒適度。 立面圖
南立面
北立面
東立面
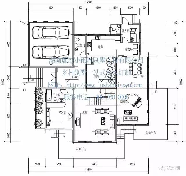
西立面 平面和空間布局圖 首層前部分為大空間布局,注重舒適性。后部分多為小空間實用性空間布局。中部為樓梯,隔開兩大功能的區分使用。前部分為大客廳、主臥和家庭室。客廳和家庭室采用錯層設計,完美區分兩個功能區間的使用性。客廳的大玻璃面與觀景平臺的搭配使室內的采光充足。主體中部為內院,栽花種草使室內添加了自然的顏色。家庭室與餐廳在同一平面,同樣配備了觀景平臺,生活,休閑兩不誤。車庫與主入口、衛生間相鄰,減少交通距離,布局緊湊合理。
一層平面布局圖
一層空間布局圖 二樓布局以樓梯為界,分為兩邊,左邊為兩個臥室和書房,右邊為主臥室。二樓空間使用完全與一樓分開,完全保留家庭的私密性。樓頂的天窗便于采光。保證二樓陽光充足。
二層平面布局圖
二層空間布局圖 造價估算
圖紙之家-專注農村別墅/自建房設計18年,集合國內200余位經驗豐富的設計師,被評為口碑最好的農村建筑設計公司! |

架空層設計的農村自建房別墅設計圖,既做車庫又做儲物間,太實
占地:230.62平方米
私人別墅房屋cad施工設計圖,造型精致、美觀
占地:105平方米
新農村兩層帶露臺自建房設計圖,造價30萬內
占地:170平方米
農村15萬元二層小樓圖,經濟實用小別墅設計圖
占地:105平方米
三層現代簡約農村雙拼小別墅圖,好看精致,開間17米
占地:187平方米
新農村自建二層樓房戶型設計圖,簡單大氣,外觀漂亮精致
占地:多種戶型
雙戶168平方米小戶型新農村雙拼樓房設計建筑圖紙帶外觀圖
占地:168平方米
180平方現代風三層別墅設計圖,經典大氣,百看不厭
占地:180.48平方米
農村自建房10萬以下兩層別墅設計圖含外觀效果圖片
占地:105平方米
農村仿古四合院設計圖自建房,外觀中式古樸典雅
占地:378平方米
農村實用三層樓房外觀圖片+全套施工設計圖
占地:106平方米
180平方米新農村自建二層小別墅設計圖及效果圖,15X13米
占地:183平方米
140平米二層半帶露臺別墅圖片及圖紙,戶型極佳
占地:140平方米
歐式二層別墅平面圖,全套cad設計圖紙和外觀效果圖
占地:202平方米
120平米農村房屋設計圖,造價20萬左右,別墅造型結構精致
占地:120平方米
適合小面寬宅基地的兩開間別墅設計圖,8.5米乘13.5米
占地:107.66平方米
120平米二層別墅樓設計圖,簡約省錢也能建的漂亮
占地:121.74平方米
新農村住宅設計圖紙含效果圖,方方正正的別墅方案
占地:134平方米左右
現代別墅設計圖紙帶效果圖,85平、100平、145平三個戶型方案
占地:多種戶型
新中式農村兄弟合建三層雙拼別墅全套設計圖紙,3款戶型方案
占地:多種戶型
推薦:10套新農村自建房設計圖,2026年最新設計
閱讀次數:4825737次
100套鄉村別墅圖片大全,2026年最新設計
閱讀次數:2492203次
6款農村蓋一層平房的設計圖,10萬元就能建起來
閱讀次數:1852637次
這11個一層農村自建房別墅火爆了朋友圈!我最喜歡戶型十!你呢
閱讀次數:750268次
農村6萬元建一層小別墅圖,你敢相信嗎
閱讀次數:567686次
農村5萬塊就能自建房,6套普通房子設計圖分享,你沒看錯!
閱讀次數:419410次
8套農村漂亮三間平房圖片,非常適合在農村修建!
閱讀次數:411197次
農村自建房化糞池怎么做?附方案及施工過程
閱讀次數:391783次
農村一層三間平房設計圖,告別土氣養老房,讓人忍不住點贊
閱讀次數:350581次
新農村二層樓房圖片造價12萬,挑一套回家建房吧!
閱讀次數:349126次
