
|
90后的王先生今年剛滿27歲,早些年間隨著大部隊去了省城干活,為了掙錢什么樣的活都干過,輕的重的全都有,累死累活掙了有30多萬,終于回鄉蓋了這套房子設計圖出來,你還別說,這樣貌真好看!
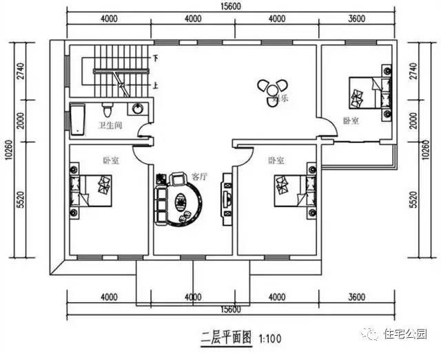
平面布局圖: 房子占地15.6X10米,300平的超大別墅,磚混結構蓋好的,花了30萬,算下來,這一平米也就僅僅1000塊錢,這可比去城里買所謂的商品房值得多,而且蓋出來的房子這么好看,真的是賺到了!
再來張遠景圖,看起來更好看,這樣式,村里恐怕是找不到第二家了!
圖紙之家-專注農村別墅/自建房設計18年,集合國內200余位經驗豐富的設計師,被評為口碑最好的農村建筑設計公司! |

歐式三層樓房設計圖,客廳中空,旋轉樓梯,帶土灶房
占地:206平方米
占地130平方米中式二層小樓房設計圖紙,農村自建戶型實用
占地:136.04平方米
180平高端歐式三層別墅圖紙設計,大戶型復式客廳
占地:182.016
小占地的農村別墅設計圖,占地僅72平米,參考造價不到15萬
占地:多戶型可選
8.5×12米四層歐式房屋設計圖紙,占地100平,落地窗中嵌入了雕花
占地:100平方米
80-90平米自建樓房設計圖,農村小別墅經典戶型圖
占地:86平方米
12x13米豪華三層農村別墅設計圖,宅基地上的貴族人生
占地:156平方米
造價15萬經濟美觀一層農村別墅設計圖,占地150平米
占地:多戶型可選
新古典中式風格別墅設計圖,全套施工圖+效果圖
占地:188平方米
簡單農村二層自建房子設計圖,主體18萬就能建好,太心動了!
占地:124.53
爆款農村兄弟雙拼自建房設計圖,占地不大舒適宜居
占地:147.2平方米
獨棟三層樓房設計圖紙及效果圖,農村蓋房推薦
占地:125平方米
兩層15萬農村自建房設計圖,農村蓋房設計大全圖
占地:130平方米
新中式三層雙拼別墅設計圖及效果圖,中式大氣風格
占地:235.26平方米
140平米一層農村自建房設計圖,好看不貴簡約耐看
占地:141.12平方米
時尚大方的農村二層自建房屋設計圖紙,占地120平米左右
占地:120平米
占地百平農村三層戶型方案,簡約實用,獨具特色,理想新居等你
占地:105.61平方米
18米寬一層中式小院設計圖,三合院戶型布局寬敞大氣
占地:232.75平方米
新農村二層自建房設計圖帶外觀圖片,自建戶型大全
占地:160平方米
16x14米三層雙拼別墅設計圖,外觀精致大氣內里實用,兄弟建房上
占地:217.28平方米
推薦:10套新農村自建房設計圖,2026年最新設計
閱讀次數:4825737次
100套鄉村別墅圖片大全,2026年最新設計
閱讀次數:2492203次
6款農村蓋一層平房的設計圖,10萬元就能建起來
閱讀次數:1852637次
這11個一層農村自建房別墅火爆了朋友圈!我最喜歡戶型十!你呢
閱讀次數:750268次
農村6萬元建一層小別墅圖,你敢相信嗎
閱讀次數:567686次
農村5萬塊就能自建房,6套普通房子設計圖分享,你沒看錯!
閱讀次數:419410次
8套農村漂亮三間平房圖片,非常適合在農村修建!
閱讀次數:411197次
農村自建房化糞池怎么做?附方案及施工過程
閱讀次數:391783次
農村一層三間平房設計圖,告別土氣養老房,讓人忍不住點贊
閱讀次數:350581次
新農村二層樓房圖片造價12萬,挑一套回家建房吧!
閱讀次數:349126次
