
|
圖紙之家-專注農村別墅/自建房設計18年,集合國內200余位經驗豐富的設計師,被評為口碑最好的農村建筑設計公司! |

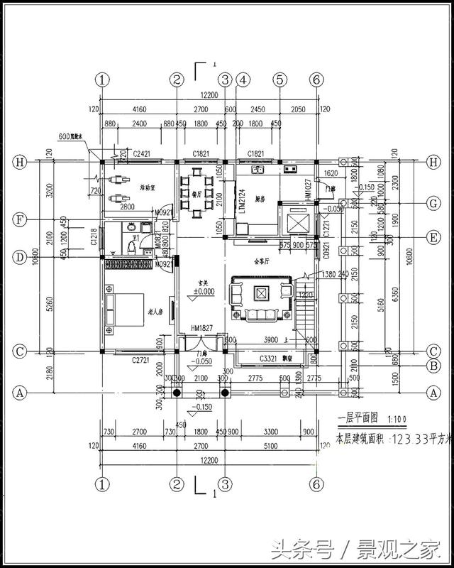
方正對稱二層農村自建別墅施工圖,經濟實用舒適大氣
占地:129.6平方米
農村四間房屋設計圖經典戶型,這樣設計美觀、實用
占地:169平方米
農村二層小洋樓設計圖,帶外觀效果圖,外觀新穎,漂亮
占地:130平方米
一層半房屋別墅設計圖,帶閣樓圖、帶露臺,外觀新穎時尚
占地:130平方米
二間二層小型別墅設計圖,美觀、經濟、實用!
占地:96平方米
農村一層四間平房設計圖方案,含外觀圖片,預算10萬
占地:190平方米
面寬13米簡簡單單一層農村自建別墅設計圖,方正大氣經濟宜居
占地:126.1平方米
經濟、不張揚!簡單二層別墅設計圖,農村建房直接抄作業
占地:198.58平方米
一層時尚農村自建別墅方案,低至10萬的造價,適合住家養老
占地:131.04平方米
六開間三層農村自建別墅設計圖,盡享豪華舒適生活
占地:341.91平方米
最好看的新款農村三層復式別墅設計圖片及設計圖,外觀高端、大
占地:160平方米
進深15米新農村三層房屋設計圖紙,農村住宅設計圖集
占地:128平方米
農村二層樓房設計圖紙,含全套設計方案(施工圖+效果圖)
占地:98平方米
2026新款二層別墅房屋設計圖,帶外觀圖片
占地:138平方米
經典農村二層小別墅設計圖紙帶露臺(含外觀效果圖)
占地:110平方米
二層復式樓房設計圖,平實接地氣的平面布局
占地:180平方米
新中式農村50萬三層別墅款式圖,占地面積160平米左右
占地:150平方米
開間8米的小戶型二層別墅設計圖,2開間占地不到60平
占地:56平方米左右
農村15萬元二層小樓圖,經濟實用小別墅設計圖
占地:105平方米
不帶廚房餐廳的二層別墅設計圖,農村建房很多人都這樣做
占地:124平方米左右
推薦:10套新農村自建房設計圖,2026年最新設計
閱讀次數:4825737次
100套鄉村別墅圖片大全,2026年最新設計
閱讀次數:2492203次
6款農村蓋一層平房的設計圖,10萬元就能建起來
閱讀次數:1852637次
這11個一層農村自建房別墅火爆了朋友圈!我最喜歡戶型十!你呢
閱讀次數:750268次
農村6萬元建一層小別墅圖,你敢相信嗎
閱讀次數:567686次
農村5萬塊就能自建房,6套普通房子設計圖分享,你沒看錯!
閱讀次數:419410次
8套農村漂亮三間平房圖片,非常適合在農村修建!
閱讀次數:411197次
農村自建房化糞池怎么做?附方案及施工過程
閱讀次數:391783次
農村一層三間平房設計圖,告別土氣養老房,讓人忍不住點贊
閱讀次數:350581次
新農村二層樓房圖片造價12萬,挑一套回家建房吧!
閱讀次數:349126次
