
|
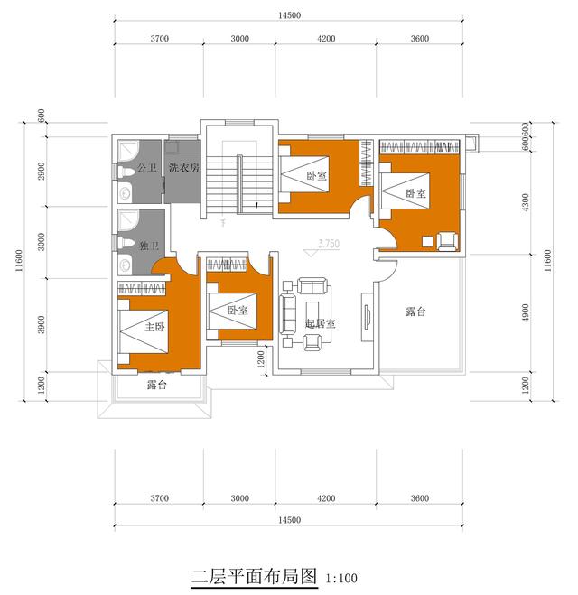
房屋基本信息 占地尺寸:14.5X11.6m 占地面積:150m2 建筑面積:280 m2 總高度:9.435m 設計團隊:雅墅名坊建筑團隊 建筑情況:6室3廳3衛1雜物間1儲藏間1廚房1洗衣房1大露臺 建筑特點:該戶型空間布局緊湊合理,動靜分離,外觀時尚,造型簡約大氣。 農村二層樓房實景圖展示:
正立面
俯視圖 說明: 1、一層入戶處設置了玄關,避免了室外視線對室內的干擾,起到室外向室內的過度的作用,也較多地在別墅上作為風水學等考慮應用。雜物間可作為日常堆放雜物之所,也可作為客房備用使用,廚房考慮廣大農村地區使用習慣設置柴火灶。
圖紙之家-專注農村別墅/自建房設計18年,集合國內200余位經驗豐富的設計師,被評為口碑最好的農村建筑設計公司! |

新農村二層帶庭院的小別墅設計圖及效果圖
占地:137平方米
農村四間二層別墅設計圖,七室二廳帶車庫,室內寬敞鄰居都羨慕
占地:217.1平方米
110平方米新農村三層房屋設計圖紙,含效果圖,帶車庫
占地:113平方米
180平方米新農村雙拼戶型別墅房屋設計圖紙帶外觀圖17X11米
占地:180平方米
11x13米兩層半現代風別墅設計圖,??看過的都后悔建早了!
占地:126.02平方米
140平方米新農村復式自建房子,三層別墅建筑圖紙及效果圖
占地:138平方米
110平米一層小別墅設計方案,布局四室兩廳一廚兩衛
占地:110.5平方米
外觀造型對稱的二層別墅設計圖,老虎窗+挑空客廳
占地:175.2平方米
農村一層中式三合院太香了!白墻黛瓦,有院有景超宜居
占地:364.72平方米
三層蓋房子歐式挑空客廳別墅設計圖,外觀漂亮戶型實用
占地:多種戶型
100平左右鄉下三層樓房設計圖,戶型方正,小面積宅基地的福音
占地:100平方米
自建一層農村別墅圖,經濟實用新選擇,建房必備參考戶型!
占地:142.88平方米
大氣豪華四層別墅設計圖紙,占地180平米左右
占地:180平方米
帶開放式車庫的二層別墅!配土灶、室外樓梯,新穎還顯品味
占地:127.2平方米
歐式三層小洋樓設計圖,外觀氣派,典雅、高貴
占地:145平方米
8.5×12米四層歐式房屋設計圖紙,占地100平,落地窗中嵌入了雕花
占地:100平方米
三層別墅40萬左右氣派的外觀效果圖,含全套施工設計圖
占地:161.46平方米
后面帶小院的農村房屋設計圖,適合鄉村自建
占地:300平方米
占地百平三層歐式別墅設計圖,回到家鄉建一棟,大氣美觀有內涵
占地:99.94平方米
簡約L型一層平房自建房設計圖,經濟實用
占地:145.283平方米
推薦:10套新農村自建房設計圖,2026年最新設計
閱讀次數:4825737次
100套鄉村別墅圖片大全,2026年最新設計
閱讀次數:2492203次
6款農村蓋一層平房的設計圖,10萬元就能建起來
閱讀次數:1852637次
這11個一層農村自建房別墅火爆了朋友圈!我最喜歡戶型十!你呢
閱讀次數:750268次
農村6萬元建一層小別墅圖,你敢相信嗎
閱讀次數:567686次
農村5萬塊就能自建房,6套普通房子設計圖分享,你沒看錯!
閱讀次數:419410次
8套農村漂亮三間平房圖片,非常適合在農村修建!
閱讀次數:411197次
農村自建房化糞池怎么做?附方案及施工過程
閱讀次數:391783次
農村一層三間平房設計圖,告別土氣養老房,讓人忍不住點贊
閱讀次數:350581次
新農村二層樓房圖片造價12萬,挑一套回家建房吧!
閱讀次數:349126次
