
|
對于資金比較充足的人來說,房子就是自己的另一張名片,要的就是豪華、霸氣!不在乎造價的高低,不僅外觀造型要做到精致美觀,其他各個方面都要盡善盡美! 下邊給大家推薦6套高質量的農村四層別墅,有需要的朋友可以參考一下。 第一套
正面效果圖
背面效果圖
鳥瞰效果圖 占地面積:11.6m*12.6m,130平方米左右; 建筑層高:四層; 建筑高度:16.4米(含屋頂); 設計功能: 一層戶型展示:客廳、餐廳、廚房、臥室、車庫、衛生間、儲藏間; 二層戶型展示:客廳上空、臥室(帶化妝間,浴室,露臺)、臥室(衛生間); 三層戶型展示:客廳、主臥(帶衛生間)、臥室(帶書房、露臺)臥室、衛生間、露臺; 四層戶型展示:客廳、主臥(帶衛生間)、臥室(帶書房、露臺)臥室、衛生間、露臺;
一層平面圖
二層平面圖
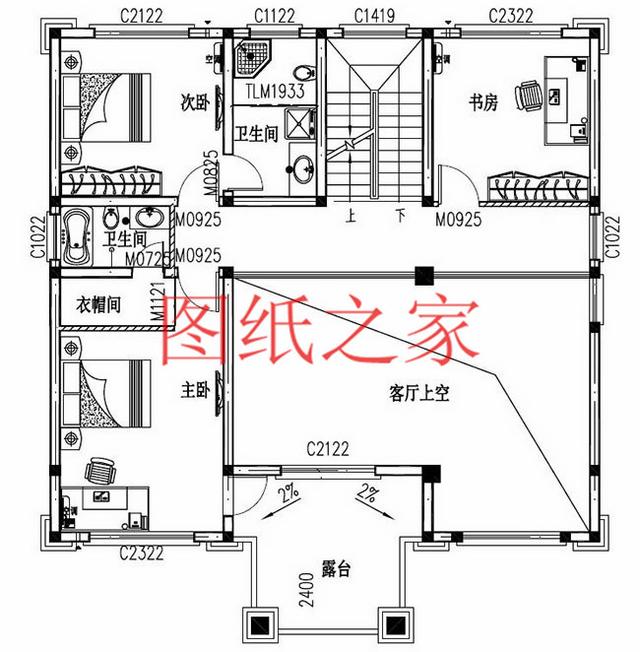
三層平面圖
四層平面圖 第二套
正面效果圖
背面效果圖
鳥瞰效果圖 占地面積:13.2m*10.2m,130平方米左右; 建筑層高:四層 建筑高度:16.5米(含屋頂); 設計功能: 一層戶型展示:客廳,廚房、餐廳、臥室(帶衛生間)、衛生間、電梯; 二層戶型展示:客廳上空、起居室、臥室(帶衛生間)、臥室(帶衣帽間、衛生間)、陽臺; 三層戶型展示:起居室、臥室(帶衛生間)、臥室(帶衣帽間、衛生間)、臥室(帶衛生間); 四層戶型展示:起居室、臥室(帶衛生間)、臥室×2、衛生間、大露臺;
一層平面圖
二層平面圖
三層平面圖
四層平面圖 第三套
正面效果圖
背面效果圖
鳥瞰效果圖 占地面積:13.5m*11.0m,140平方米左右; 建筑層高:四層; 建筑高度:15.7米(含屋頂); 設計功能: 一層戶型展示:客廳、餐廳、廚房、臥室×2、棋牌室、衛生間; 二層戶型展示:客廳、廚房、餐廳、臥室(帶衛生間)、臥室×3、衛生間、露臺,陽臺; 三層戶型展示:客廳、廚房、餐廳、臥室(帶衛生間)、臥室×3、衛生間、露臺,陽臺;(同二層一樣) 四層戶型展示:臥室x2、健身區、露臺;
一層平面圖
二層平面圖
三層平面圖
四層平面圖 第四套
正面效果圖
背面效果圖
鳥瞰效果圖 占地面積:12.4m*11.6m,143平方米左右; 建筑層高:四層; 建筑高度:16.15米(含屋頂); 設計功能: 一層戶型展示:門廳、客廳、餐廳、廚房、主臥(帶衛生間)、臥室、衛生間、儲藏間; 二層戶型展示:客廳上空、主臥(帶衛生間)、臥室、書房、衛生間(可以做公衛或主衛)、露臺; 三層戶型展示:臥室x4(其中2個帶衛生間)、書房、衛生間、陽臺x3; 四層戶型展示:家庭影院、健身房、衛生間、陽光房、露臺、換衣間(儲藏間);
一層平面圖
二層平面圖
三層平面圖
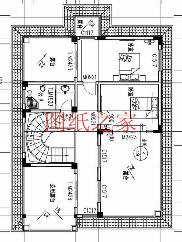
四層平面圖 第五套
別墅效果圖 占地面積:12.4m*11.6m,143平方米左右; 建筑層高:四層; 建筑高度:17.55米(含屋頂); 設計功能: 一層戶型展示:門廳、客廳、餐廳、廚房、儲藏室、衛生間、老人房、主臥(帶衣帽間、衛生間) 二層戶型展示:書房、衛生間、次臥、主臥(帶衣帽間、衛生間)、露臺; 三層戶型展示:主臥(帶衛生間)、次臥X2、衛生間、兒童房(帶衛生間)、書房、陽臺X3; 四層戶型展示:家庭影院、健身房、衛生間、衣帽間、陽光房、露臺;
一層平面圖
二層平面圖
三層平面圖
四層平面圖 第六套
別墅效果圖 占地面積:14.0m*10.0m,140平方米左右; 建筑層高:四層; 建筑高度:16.20米(含屋頂); 設計功能: 一層戶型展示:客廳、餐廳、廚房、衛生間、茶室(可以做臥室); 二層戶型展示:主臥(帶衛生間、帶衣帽間、帶大陽臺)、臥室(帶小陽臺)、衛生間; 三層戶型展示:家庭影院、主臥(帶衛生間)、臥室x2、衛生間、陽臺x3; 四層戶型展示:臥室x2,衛生間、露臺x4;
一層平面圖
二層平面圖
三層平面圖
四層平面圖
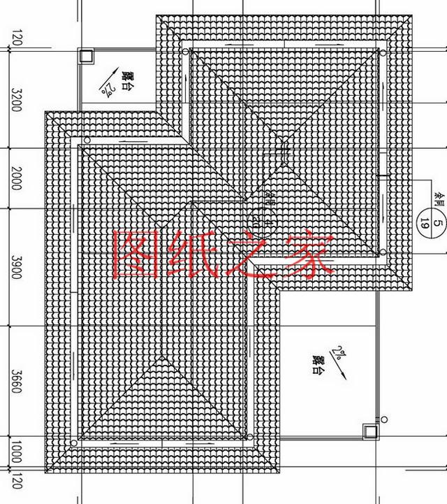
屋頂平面圖 這幾套別墅的設計圖,你最喜歡哪一套? 圖紙之家-專注農村別墅/自建房設計18年,集合國內200余位經驗豐富的設計師,被評為口碑最好的農村建筑設計公司! |

簡簡單單一層農村自建別墅方案,布局緊湊又不擁擠
占地:133.55平方米
占地180平方米二層鄉村小洋樓設計戶型圖及圖紙,外觀華麗
占地:180平方米
小占地三層現代時尚風別墅設計圖,平屋頂占地不足100平
占地:98.35平方米
新中式風格農村自建房二層設計圖,15.5米乘12米
占地:186平方米
漂亮的農村三層小樓房設計圖,簡單大氣,帶車庫
占地:150平方米
最接農村地氣的二層農村小別墅,造價30萬左右,經濟實用
占地:170平方米
二間二層小型別墅設計圖,美觀、經濟、實用!
占地:96平方米
經濟實惠一層戶型圖,農村養老房舒適至上,簡約而不失溫馨
占地:147.5平方米
農村三層帶車庫、帶露臺別墅設計圖,經典自建別墅設計方案
占地:160平方米
好看又簡單二層仿古中式四合院樓房設計圖
占地:352平方米
徽派3層農村小別墅設計圖,廣東新農村住宅設計圖集
占地:110平方米
歐式大戶型三層農村房屋設計圖紙,歐式住宅圖推薦
占地:178平方米
農村自建房鄉村超現代平屋頂二層別墅圖設計方案,造價低,施工
占地:142平方米
時尚現代的二層農村別墅設計圖,年輕人建房的不二之選
占地:131.76平方米
農村三間兩層樓房設計圖,帶外觀效果圖
占地:140平方米
最新140平米三層自建房屋設計圖紙,本戶型帶小院
占地:140平米
農村二層別墅優選設計圖,戶型小巧精致,顏值與實用并存!
占地:95.25平方米
170平米自建三層房屋別墅設計圖紙及效果圖
占地:170平米
私人別墅房屋cad施工設計圖,造型精致、美觀
占地:105平方米
簡單農村二層平屋頂房屋設計圖,外觀簡潔、大方
占地:200平方米
推薦:10套新農村自建房設計圖,2026年最新設計
閱讀次數:4825737次
100套鄉村別墅圖片大全,2026年最新設計
閱讀次數:2492203次
6款農村蓋一層平房的設計圖,10萬元就能建起來
閱讀次數:1852637次
這11個一層農村自建房別墅火爆了朋友圈!我最喜歡戶型十!你呢
閱讀次數:750268次
農村6萬元建一層小別墅圖,你敢相信嗎
閱讀次數:567686次
農村5萬塊就能自建房,6套普通房子設計圖分享,你沒看錯!
閱讀次數:419410次
8套農村漂亮三間平房圖片,非常適合在農村修建!
閱讀次數:411197次
農村自建房化糞池怎么做?附方案及施工過程
閱讀次數:391783次
農村一層三間平房設計圖,告別土氣養老房,讓人忍不住點贊
閱讀次數:350581次
新農村二層樓房圖片造價12萬,挑一套回家建房吧!
閱讀次數:349126次
