
|
本案用地尺度較大,呈L型。當地對兩層以上樓面有占地要求,所以散布一層房子較多,總面積卻不大。如果按常規孤立蓋一棟房子,這塊地將無所適從。由于客戶對江南宅院的情有獨鐘,我們為此通過建筑和院墻給基地限定了三個院子,公共區院子、后花園、菜園子,再通過空間營造整個場地即刻飽滿豐富起來。古時造園,不是在建造一座生硬的建筑群,而是在造一個天人合一的生命體。園林風物建筑雜糅了造園者的品格態度,一個園林正是體現了一個人生動真實的精神世界 別墅場景效果圖
中式別墅設計,在布局上千變萬化,整體和局部之間也不會規定從屬關系,直接來說就是無規律可循。含蓄、虛幻、弦外之音的美感,使人置身其中有撲塑離迷和不可窮盡的錯覺,這就是我們追求的境界
局部場景圖
門前是孩童嬉戲的地方,屋后可約三五好友集聚,偏院那是老人的栽植地。房子是我們印象中的,卻又是較新式的。情趣、生動、自然,這才是我們當下較富足之后至少該有的生活方式。
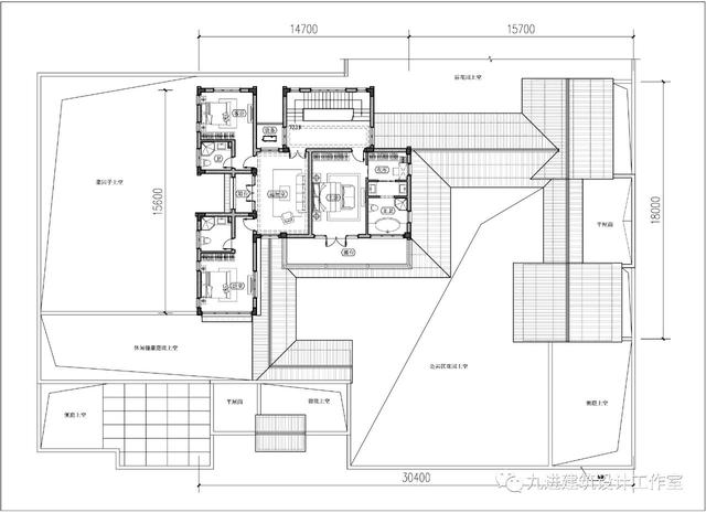
平面圖古人說:“我好像是沒有離開過自己的家一樣,因為我的家,是一座宅院。”
一層平面圖
二層平面圖 圖紙之家-專注農村別墅/自建房設計18年,集合國內200余位經驗豐富的設計師,被評為口碑最好的農村建筑設計公司! |

一二層都帶廚房餐廳的獨棟二層別墅設計圖,帶雙廚房
占地:143.68平方米
150平方米的新農村自建三層小別墅設計施工圖紙及效果圖
占地:150平方米
豪華三層歐式雙拼別墅設計圖紙,雙拼歐式別墅如何設計看這款
占地:258.294平方米
預算20萬左右三層別墅設計圖紙,新農村自建房推薦
占地:118平方米
占地120平米清新脫俗簡單二層別墅設計方案,含效果圖
占地:119.01平方米
面寬8米多的三層農村別墅設計圖,小開間宅基地推薦
占地:112.82平方米
農村200平一層別墅房屋設計圖,外觀圖片時尚、漂亮
占地:200平方米
全網都在抄的二層別墅!爆款12米面寬設計戶型太實用
占地:139.51平方米
最漂亮的農村二層小樓房自建別墅設計圖紙及效果圖
占地:168平方米
經典美式二層小別墅設計圖,回鄉建房不可不看的經典之作
占地:109.33平方米
經典三層雙拼房屋設計圖,帶效果圖,戶型好,單戶面積120
占地:240平方米
雅致的鄉下二層蓋別墅設計圖紙,造價35萬左右
占地:178平方米
地中海風格二層別墅設計圖及效果圖,外觀有格調
占地:125平方米
面寬8米也能建別墅,小面寬農村三層別墅設計圖
占地:93.83平方米
農村三層四合院別墅設計圖紙,自建房建這棟面子十足
占地:227.49平方米
面寬14米農村別墅二層別墅戶型設計,經濟實用
占地:107.1平方米
12x9米自建一層小別墅設計圖,占地不大造價低,簡單舒適人人夸
占地:108.36平方米
185平米自建三層別墅房屋施工設計圖紙及效果圖
占地:187平方米
帶架空層的兩層別墅設計圖,通透又明亮,建在農村絕對有面子
占地:106.79平方米
2026新款二層別墅房屋設計圖,帶外觀圖片
占地:138平方米
推薦:10套新農村自建房設計圖,2026年最新設計
閱讀次數:4825737次
100套鄉村別墅圖片大全,2026年最新設計
閱讀次數:2492203次
6款農村蓋一層平房的設計圖,10萬元就能建起來
閱讀次數:1852637次
這11個一層農村自建房別墅火爆了朋友圈!我最喜歡戶型十!你呢
閱讀次數:750268次
農村6萬元建一層小別墅圖,你敢相信嗎
閱讀次數:567686次
農村5萬塊就能自建房,6套普通房子設計圖分享,你沒看錯!
閱讀次數:419410次
8套農村漂亮三間平房圖片,非常適合在農村修建!
閱讀次數:411197次
農村自建房化糞池怎么做?附方案及施工過程
閱讀次數:391783次
農村一層三間平房設計圖,告別土氣養老房,讓人忍不住點贊
閱讀次數:350581次
新農村二層樓房圖片造價12萬,挑一套回家建房吧!
閱讀次數:349126次
