
|
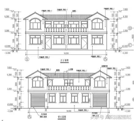
下面這個戶型,開間只有8米,進深11米多,占地不到100平,建筑面積約150平,按市場均價,磚混結構毛坯房800元左右一平,照這樣計算,有人打包票說這座房子十二三萬就能建起來。可如今物價漲的這么快,真的能建起來嗎? 別墅基本信息門面寬:8.15m 進深:11.6m 建筑面積:146平方米 建筑層數:2層 建筑高度:7.35米 結構形式:磚混結構 主體造價:13萬,僅供參考
功能設計
此戶型雖小,但是布局舒適,并設有車庫。戶型坐北朝南,主入戶門在南側,進門就是客廳,里面是廚房、餐廳和衛生間,老人房朝南設置,方便安靜,車庫開門可從室內進入,也可從北側進入,非常方便。
二層以居住為主,有3個臥室,南一臥室里有獨立的衛生間,南二臥室設有陽臺,陽臺上擺放些綠色盆栽,室內環境會更佳,北向除了一個臥室還設有一個大露臺,方便生活晾曬。
當然,這個戶型也可以兩兄弟一起建,效果也是相當漂亮呢。
特別是再配上個門前庭院,簡直不要太美了。
家有兄弟一起蓋房的,強烈推薦這一套。
雖然說這種小戶型小地基的戶型造價相對較低,也比較受到大家的歡迎, 但這個戶型建起來只要13萬,你覺得可能嗎?? 在你老家那里建一座這樣的房子又需要多少錢呢? 圖紙之家-專注農村別墅/自建房設計18年,集合國內200余位經驗豐富的設計師,被評為口碑最好的農村建筑設計公司! |

120平方米新農村四層別墅設計圖紙12X10米50萬以內
占地:120平方米
150平米二層鄉村小別墅圖,戶型合理,外觀清新淡雅
占地:150平方米
新農村三層房屋設計圖紙大全,新農村住宅圖紙
占地:108平方米
新中式二層雙拼別墅農村自建房子設計圖紙,面寬19米
占地:240平方米左右,單
100平方米左右新農村二層房屋設計建筑CAD圖紙帶外觀效果圖
占地:多戶型可選
120平方米三層歐式別墅設計圖,進門就是旋轉樓梯
占地:119.76平方米
簡單現代平屋頂兩層四間自建樓房設計圖紙施工方案,簡潔又實用
占地:192平方米
農村四間一層房屋設計圖,160平方米,用來養老正合適!
占地:160平方米
兩戶250平方米農村豪華歐式三層兄弟雙拼別墅設計圖
占地:251平方米
新農村二層自建房設計圖帶外觀圖片,自建戶型大全
占地:160平方米
南方新農村三層房屋設計圖大全,預算30萬內
占地:145平方米
最新農村三層樓房設計圖紙,客廳中空,采用暖黃色為主色
占地:160平方米
8.5×12米四層歐式房屋設計圖紙,占地100平,落地窗中嵌入了雕花
占地:100平方米
帶地下室的一層別墅設計圖,農村自建房比較合適
占地:206平方米
130平米帶小院一層自建房屋設計圖,省錢實用,養老房首選
占地:130平方米左右
帶電梯農村建房三層小洋樓,樓中樓結構,帶露臺
占地:110平方米
全新農村簡歐風格三層房屋別墅效果圖,110和210兩個戶型,帶電梯
占地:多種戶型
125平方米新農村二層房屋施工設計CAD圖紙加效果圖
占地:125平方米
80多平米二層小型自建房設計圖,經濟舒適別具一格
占地:84.48平方米
適合農村建的二層別墅設計圖,簡約美觀,讓人心動不已
占地:153平方米
推薦:10套新農村自建房設計圖,2026年最新設計
閱讀次數:4825737次
100套鄉村別墅圖片大全,2026年最新設計
閱讀次數:2492203次
6款農村蓋一層平房的設計圖,10萬元就能建起來
閱讀次數:1852637次
這11個一層農村自建房別墅火爆了朋友圈!我最喜歡戶型十!你呢
閱讀次數:750268次
農村6萬元建一層小別墅圖,你敢相信嗎
閱讀次數:567686次
農村5萬塊就能自建房,6套普通房子設計圖分享,你沒看錯!
閱讀次數:419410次
8套農村漂亮三間平房圖片,非常適合在農村修建!
閱讀次數:411197次
農村自建房化糞池怎么做?附方案及施工過程
閱讀次數:391783次
農村一層三間平房設計圖,告別土氣養老房,讓人忍不住點贊
閱讀次數:350581次
新農村二層樓房圖片造價12萬,挑一套回家建房吧!
閱讀次數:349126次
