
|
經典的田園歐式別墅,既有恢弘大氣的外觀,又有清新自然的質感。選取優質的材料建造,運用優質的工藝建筑,造就別墅非凡的品質。時尚又接地氣的房屋設計,自然深受廣大農村朋友的喜愛。今天就特別介紹一款12X14米三層田園歐式別墅戶型,一起來看下吧! 該戶型占地14米*12.5米,占地面積:165平方米,建筑面積達412平方米,共設有6室3廳3衛1雜物間1儲藏間1廚房1洗衣房1大露臺。
活潑俏皮的色調,肌理分明的文化石,西式風格的羅馬柱,經典的造型洋溢著無限的活力與朝氣。
立面圖: 外觀規整有序,開闊的弧形采光窗,不僅有利于室內采光充分,而且讓房子更加通透高挑。
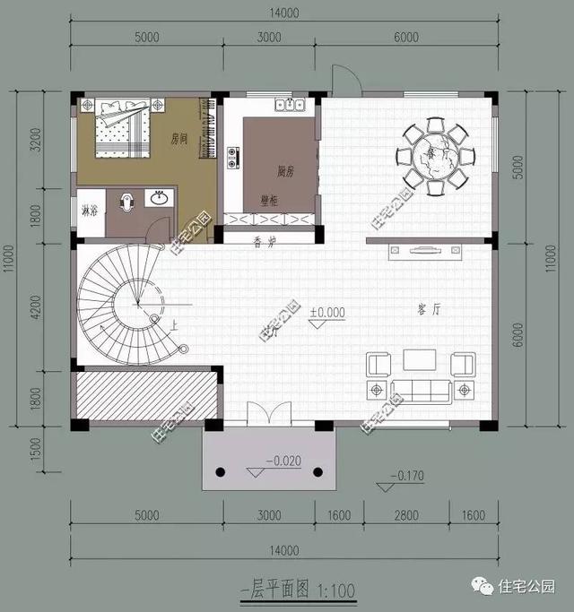
平面布局圖: 說明: 布局簡單實用,入戶即客廳,方便招待客人;廚房與餐廳相連,就餐便利。
臥室設計功能齊全,自帶獨立衛生間和淋浴,干濕分區,讓居家生活更加舒適,大臥室設計更豪華,還有衣帽間。
奢華精細的旋轉樓梯設計,讓空間更加開闊;大露臺的設計符合農村實際需求,方便日常晾曬,或是乘涼小憩。
別墅外觀清雅富麗,內里設計高端大氣,內外兼備的美令人贊嘆!看了這么好看的戶型,是不是有點小心點呢?要不照著別墅設計圖紙來一套唄? 圖紙之家-專注農村別墅/自建房設計18年,集合國內200余位經驗豐富的設計師,被評為口碑最好的農村建筑設計公司! |

新農村二層歐式別墅設計圖,外觀漂亮,主體18萬起建
占地:115.2平方米
面寬16米方正實用二層別墅設計圖,中式風格不輸村里的別墅洋房
占地:182.82平方米
新農村二層客廳挑高樓房設計圖,外觀歐式風格
占地:178平方米
歐式新農村自建三層建筑施工設計圖紙及效果圖大全
占地:106平方米
230平方米新農村二層自建別墅設計圖紙帶外觀圖,20X11米
占地:227平方米
帶小院七字形一層自建房戶型設計圖,平屋頂圖紙
占地:201.08平方米
新中式別墅一層自建房設計,戶型實用緊湊
占地:170.54平方米
廚房在前,簡約歐式二層農村自建別墅設計圖,戶型個性
占地:143.69平方米
中式徽派二層農村別墅設計圖,白墻黛瓦馬頭墻,永不過時
占地:171平方米
新中式三層雙拼別墅設計圖及效果圖,中式大氣風格
占地:235.26平方米
造價30萬左右的三層樓房設計圖,占地120平米左右
占地:120平方米
歐式大氣新農村三層別墅豪宅設計圖,外觀高端,對稱設計
占地:225平方米左右
一層帶閣樓的自建別墅設計圖,省錢又實用
占地:166平方米
三層復式別墅設計圖紙(含效果圖),復式住宅設計圖精選
占地:147.7平方米
造價65萬左右的三層歐式別墅房屋設計施工CAD圖紙及效果圖
占地:178平方米
高端三層帶地下室別墅房屋設計圖方案及效果圖
占地:135平方米
帶地下車庫的三層別墅設計圖,160平復式戶型
占地:159.03平方米
簡單平房農村自建一層別墅設計圖,時尚大氣,造價經濟
占地:166平方米
農村二層舒適好房,這款四開間別墅設計圖真的很不錯
占地:220.46平方米
歐式大戶型三層農村房屋設計圖紙,歐式住宅圖推薦
占地:178平方米
推薦:10套新農村自建房設計圖,2026年最新設計
閱讀次數:4825737次
100套鄉村別墅圖片大全,2026年最新設計
閱讀次數:2492203次
6款農村蓋一層平房的設計圖,10萬元就能建起來
閱讀次數:1852637次
這11個一層農村自建房別墅火爆了朋友圈!我最喜歡戶型十!你呢
閱讀次數:750268次
農村6萬元建一層小別墅圖,你敢相信嗎
閱讀次數:567686次
農村5萬塊就能自建房,6套普通房子設計圖分享,你沒看錯!
閱讀次數:419410次
8套農村漂亮三間平房圖片,非常適合在農村修建!
閱讀次數:411197次
農村自建房化糞池怎么做?附方案及施工過程
閱讀次數:391783次
農村一層三間平房設計圖,告別土氣養老房,讓人忍不住點贊
閱讀次數:350581次
新農村二層樓房圖片造價12萬,挑一套回家建房吧!
閱讀次數:349126次
